Prodej rodinného domu, Frýdlant nad Ostravicí, Ferdiše Duši, 144 m2 (ID: 1872174)

Ferdiše Duši, Frýdlant nad Ostravicí

8 290 000 Kč
/za nemovitost
Hypotéka od 37 051 Kč /měs. Chci hypotéku

Parametry domu

AdresaFerdiše Duši, Frýdlant nad Ostravicí
ID0668
StavbaCihlová
Stav objektuDobrý
Druh objektuSamostatný
Lokalita objektuKlidná část obce
Užitná plocha144 m2
Zastavěná plocha161 m2
Plocha pozemku800 m2
Třída energetické náročnostiG - Mimořádně nehospodárná
PlynPlynovod
OdpadVeřejná kanalizace
KomunikaceAsfaltová
VodaVodovod
Garáž
Sklep

Origo partneři v Frýdlantu nad Ostravicí

Popis

Nabízíme exkluzivně k prodeji velice prostorný rodinný dům o užitné ploše 144 m2 situovaný v klidné a vyhledávané části Frýdlantu nad Ostravicí. Nemovitost je ideální volbou pro početnou rodinu, případně vícegenerační bydlení.

Na úvodních fotografiích vidíte vizualizaci budoucí podoby domu – inspiraci pro ty, kdo hledají moderní styl. Samotná nemovitost je ale plně obyvatelná, udržovaná a může okamžitě sloužit k bydlení bez nutnosti okamžitých investic.

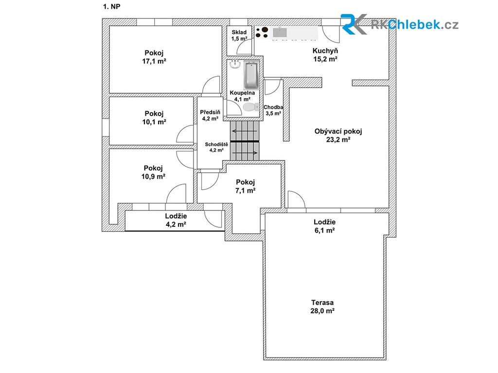
Dispozice domu:
Přízemí: vstupní hala, samostatná bytová jednotka 1+1 – ideální pro hosty nebo prarodiče
Suterén: po schodišti se dostaneme do sklepních prostor, které nabízejí dostatek místa pro skladování, technické zázemí či domácí dílnu.
Mezipatro: prostorný obývací pokoj a kuchyně se spíží, ideální pro každodenní rodinné fungování. Zde je také přístup na střešní prostory garáže, které lze přestavět na krásnou prostornou terasu s výhledem na zeleň.
Nejvyšší patro: čtyři samostatné obytné pokoje, z nichž dva mají přímý vstup na balkon s výhledem do zeleně.

Dům má plastová okna, střecha je plechová a vytápění je zajištěno plynovým kotlem. Odpad je napojen na veřejnou kanalizaci, elektřina je v měďi. Dům se nachází v bezprostřední blízkosti Beskyd, což zaručuje nejen krásné výhledy, ale i možnost aktivního odpočinku v přírodě po celý rok. Dům je situován v žádané oblasti, kde se nemovitosti prodávají jen výjimečně. Součástí nabídky je zahrada o rozloze 800 m², která poskytuje dostatek prostoru pro relaxaci, zahradničení i rodinné aktivity. Součástí prodeje je také zděný zahradní domek, který může posloužit jako praktické zázemí, pro volnočasové aktivity nebo jako dílna pro kutily.

Pokud Vás tato nabídka zaujala, neváhejte mne kontaktovat pro více informací či prohlídku.

Makléř

Máte zájem o tento dům?

Tímto, v souladu s nařízením Evropského parlamentu a Rady (EU) 2016/679, v platném znění, prohlašuji, že mi je alespoň 16 let a uděluji tak svůj souhlas se zpracováním zadaných údajů (jméno, telefon, e-mail, ip adresa) společnosti B3 Technology, s.r.o., IČ: 07330600, se sídlem Novostavby 126/23, 435 11 Lom (správce dat), za účelem předání dotazu z tohoto formuláře Vámi vybranému inzerentovi a zpětného kontaktování mé osoby. Osobní údaje bude správce zpracovávat manuálně i automaticky přímo prostřednictvím svých zaměstnanců. Informace předané tímto formulářem budou uloženy v databázi správce maximálně po dobu 10 let. Odvolání souhlasu s uložením a zpracováním poskytnutých dat lze e-mailem na info@origo-reality.cz. V případě podezření na neoprávněné použití Vámi poskytnutých údajů máte právo předat podnět k šetření Úřadu pro ochranu osobních údajů. Více informací
Chystáte se prodat nemovitost?
Pomůžeme Vám!

Přihlášení k odběru

Nenechte si ujít nejnovější nabídky prodeje rodinných domů v Frýdlantu nad Ostravicí.