Prodej rodinného domu, Veverské Knínice, 99 m2 (ID: 1870069)

Veverské Knínice

9 920 920 Kč
Hypotéka od 44 341 Kč /měs. Chci hypotéku

Parametry domu

AdresaVeverské Knínice
IDN00016
StavbaDřevěná
Stav objektuProjekt
Druh objektuSamostatný
VlastnictvíOsobní
Užitná plocha99 m2
Zastavěná plocha102 m2
Plocha pozemku800 m2
Třída energetické náročnostiA - Mimořádně úsporná

Origo partneři v Veverských Knínicích

Popis

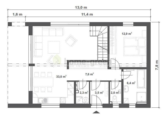
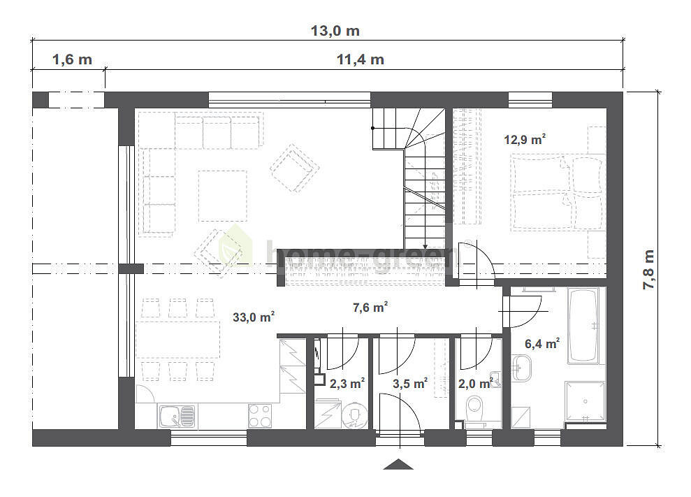
Ve výhradním zastoupení Vám zprostředkujeme prodej rodinného patrového domu Klasik 99 s užitnou plochou 99 m² k výstavbě na pozemku o velikosti 800 m² v obci Veverské Knínice. Pozemek se nachází na kraji obce ve velmi klidné části. Stavební šířka pozemku je cca 15,5 m a délka cca 51,6 m. Vjezd na pozemek vede z asfaltové hlavní silnice. Tato nabídka RD na klíč je včetně pozemku a vodovodní a kanalizační přípojky, které budou přivedeny na hranici pozemku. Elektro přípojka může být umístěna u vjezdu na pozemek.
Dům dodavatele RD Rýmařov - KLASIK 99 - moderní otevřená dispozice 4+1 s velkým prosklením otevřeným přes dvě patra se stala aktuálním hitem, která je citlivě zakomponovaná do současného rodinného domu a vznikl tak krásný otevřený prostor v obývací, jídelní a kuchyňské části domu. Skrze velké prosklené dveře lze přejít přímo na terasu před domem. V pokoji pro hosty nebo ložnici v patře s výhledem skrze obrovské prosklení bude zážitek usínat. Pokud preferujete klid, dům nabízí další dvě velké místnosti poskytující naprosté soukromí. Design domu, prosklení a exteriérové provedení je nádhernou ukázkou toho, jak sladit moderní dům s praktickými požadavky rodiny. Rozměry domu - 13,1 m x 7,8 m. Tepelné čerpadlo je v ceně domu. Čerpadlo vzduch - vzduch v zimě dům vyhřeje, v létě zase ochladí. Fotovoltaická elektrárna je v ceně domu. Systém ON GRID s akumulací do zásobníku TUV: využívá sluneční energii pro ohřev užitkové vody v 200 litrovém zásobníku. Základová deska je v ceně domu.
Veverské Knínice jsou obec v okrese Brno-venkov v Jihomoravském kraji. Leží na rozhraní Boskovické brázdy a Křižanovské vrchoviny. Krásná příroda v okolí obce poskytuje velké možnosti pro volnočasovou aktivitu v blízkosti Brněnské přehrady a hradu Veveří. V současné době je v obci 332 domů a žije tu přibližně 954 obyvatel. Obec je vzdálená cca 10 km od města Rosice a cca 20 Km západně od města Brno. Sjezd z dálnice D1 je v blízkosti 3 km u obce Ostrovačice. Uveřejněné fotografie RD k výstavbě jsou pouze ilustrativní. Nabídku doporučujeme a se zajištěním financování pomůžeme.

Makléř

Máte zájem o tento dům?

Tímto, v souladu s nařízením Evropského parlamentu a Rady (EU) 2016/679, v platném znění, prohlašuji, že mi je alespoň 16 let a uděluji tak svůj souhlas se zpracováním zadaných údajů (jméno, telefon, e-mail, ip adresa) společnosti B3 Technology, s.r.o., IČ: 07330600, se sídlem Novostavby 126/23, 435 11 Lom (správce dat), za účelem předání dotazu z tohoto formuláře Vámi vybranému inzerentovi a zpětného kontaktování mé osoby. Osobní údaje bude správce zpracovávat manuálně i automaticky přímo prostřednictvím svých zaměstnanců. Informace předané tímto formulářem budou uloženy v databázi správce maximálně po dobu 10 let. Odvolání souhlasu s uložením a zpracováním poskytnutých dat lze e-mailem na info@origo-reality.cz. V případě podezření na neoprávněné použití Vámi poskytnutých údajů máte právo předat podnět k šetření Úřadu pro ochranu osobních údajů. Více informací
Chystáte se prodat nemovitost?
Pomůžeme Vám!

Přihlášení k odběru

Nenechte si ujít nejnovější nabídky prodeje rodinných domů v Veverských Knínicích.