Prodej rodinného domu, Chotýšany, 88 m2

Chotýšany

7 900 000 Kč
/za nemovitost
cena vč. provize RK
Hypotéka od 35 308 Kč /měs. Chci hypotéku

Parametry domu

AdresaChotýšany
IDNJCE5840
StavbaCihlová
Stav objektuNovostavba
Druh objektuSamostatný
Užitná plocha88 m2
Zastavěná plocha114 m2
Podlahová plocha88 m2
Plocha pozemku1196 m2
Plocha zahrady1082 m2
Třída energetické náročnostiB - Velmi úsporná
Elektřina230V, 400V
OdpadČOV pro celý objekt
KomunikaceAsfaltová
TelekomunikaceInternet
DopravaSilnice, Autobus
VodaStudna, Retenční nádrž na dešt’ovou vodu
Topné tělesoPodlahové vytápění
Zdroj topeníTepelné čerpadlo
Zdroj teplé vodyTepelné čerpadlo
Parkování

Origo partneři v Chotýšanech

Popis

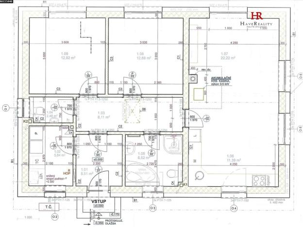
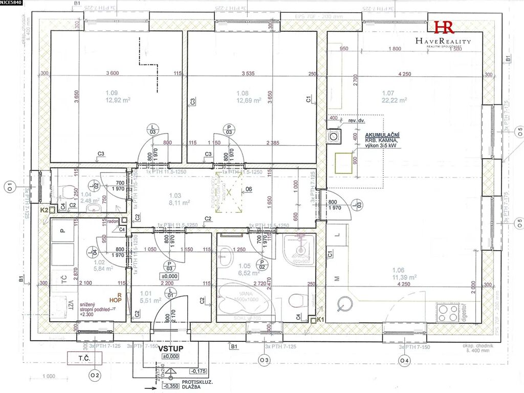
Nabízíme ke koupi novostavbu zkolaudovaného, přízemního, rodinného domu s pozemkem. Dům se nachází v Chotýšanech okr. Benešov, a je postaven na vlastním oploceném pozemku o celkové výměře parcel 1.196 m2. Zastavěná plocha a nádvoří 114 m2, podlahová plocha domu 87,68 m2, zahrada – trvalý travní porost 1.082 m2. Dům je zděný a není podsklepený. IS – vlastní vrtaná studna (30 m), elektřina 230/400 V (3x32A), ČOV (čistírna odpadních vod), na zahradě jsou osazeny dvě betonové 4 m3 jímky na vodu. Topení – v celém domě podlahové vodní vytápění. Zdroj tepla je tepelné čerpadlo LG (vzduch – voda), sloužící i k ohřevu vody. V domě je nainstalována rekuperační jednotka zajišťující přívod čerstvého vzduchu do domu s šetřením energií. V obývacím pokoji je příprava pro krbová kamna. Podlahy – dlažba, vinylová podlaha. Interiérové dveře s obložkou. Okna – plastová, trojsklo. Střecha – sedlová, betonová taška. Obvodové zdivo Porotherm 30 cm. Obvodové zdivo domu je zatepleno polystyrenem 20 cm, Strop je zateplen foukanou izolací. Dům splňuje nízkoenergetický standard, PENB – třída B – velmi úsporná budova. Dispozice domu 3kk - zádveří (předsíň) 5,51 m2, technická místnost (s přípravou pro pračku) 5,84 m2, obývací pokoj se vstupem na terasu 22,22 m2, kuchyňský kout 11,39 (kuchyňská linka není instalována), chodba 8,11 m2, koupelna se sprchovým koutem, vanou, skříňkou s umyvadlem a toaletou 6,52 m2, samostatná toaleta s umyvadlem 2,48 m2, ložnice 12,92 m2, dětský pokoj 12,69 m2. Půda neobytná – případně může sloužit jako úložný prostor. V domě jsou zhotoveny rozvody internetu. V okolí domu jsou dokončeny dlážděné chodníky, terasa, terénní úpravy a vysazen trávník. Před vjezdovou bránou je vydlážděn prostor pro parkování. Kolaudace se uskutečnila v letošním roce. Příjezdová komunikace asfaltová, obecní. Lokalita - Chotýšany se nachází cca 11 km východně od okresního města Benešov, kde je veškerá občanská vybavenost. Vzdálenost do města Vlašim je cca 9 km a do Prahy cca 50 km. Přímo v Chotýšanech naleznete obecní úřad, MŠ, ZŠ, obchod s potravinami, restauraci, poštu, sportoviště, autobusovou zastávku atd. K dispozici ihned. Možnost zprostředkování sjednání hypotéky.
V případě více zájemců o koupi této nemovitosti si prodávající vyhrazuje právo výběru kupujícího dle svých kritérií.

Makléř

Máte zájem o tento dům?

Tímto, v souladu s nařízením Evropského parlamentu a Rady (EU) 2016/679, v platném znění, prohlašuji, že mi je alespoň 16 let a uděluji tak svůj souhlas se zpracováním zadaných údajů (jméno, telefon, e-mail, ip adresa) společnosti B3 Technology, s.r.o., IČ: 07330600, se sídlem Novostavby 126/23, 435 11 Lom (správce dat), za účelem předání dotazu z tohoto formuláře Vámi vybranému inzerentovi a zpětného kontaktování mé osoby. Osobní údaje bude správce zpracovávat manuálně i automaticky přímo prostřednictvím svých zaměstnanců. Informace předané tímto formulářem budou uloženy v databázi správce maximálně po dobu 10 let. Odvolání souhlasu s uložením a zpracováním poskytnutých dat lze e-mailem na info@origo-reality.cz. V případě podezření na neoprávněné použití Vámi poskytnutých údajů máte právo předat podnět k šetření Úřadu pro ochranu osobních údajů. Více informací
Chystáte se prodat nemovitost?
Pomůžeme Vám!

Přihlášení k odběru

Nenechte si ujít nejnovější nabídky prodeje rodinných domů v Chotýšanech.