Prodej rodinného domu, Čerčany, Sokolská, 127 m2 (ID: 1914979)

Sokolská, Čerčany

Rezervováno
6 690 000 Kč
/za nemovitost
Hypotéka od 29 900 Kč /měs. Chci hypotéku

Parametry domu

StavRezervováno
AdresaSokolská, Čerčany
ID120
StavbaMontovaná
Stav objektuDobrý
VybavenoAno
Druh objektuSamostatný
Užitná plocha127 m2
Zastavěná plocha120 m2
Podlahová plocha137 m2
Plocha pozemku796 m2
Plocha zahrady676 m2
Elektřina230V, 400V
OdpadVeřejná kanalizace
TopeníLokální tuhá paliva, Lokální elektrické
KomunikaceAsfaltová
DopravaVlak, Dálnice, Silnice, Autobus
VodaVodovod, Studna
Topné tělesoPřímotop, Krb, Kamna
Zdroj topeníPřímotop, Krbová kamna, Kamna
Sklep
Bezbarierový přístup
Parkování

Origo partneři v Čerčanech

Popis

Hledáte klidné bydlení s výbornou dostupností do Prahy, prostorným zázemím a krásnou zahradou? Právě jste ho našli!

Rodinný dům 4+1 / 137 m2, se nachází na pozemku o celkové výměře 796 m2 v klidné a vyhledávané části obce Čerčany. Dům je ideálním domovem pro rodinu nebo kohokoli, kdo touží po životě mimo ruch velkoměsta.

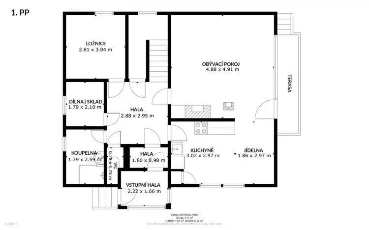
Dispozice domu
Dům má velmi praktické dispoziční řešení, rozložené do dvou nadzemních podlaží:
Přízemí (81 m2) zahrnuje prostorný obývací pokoj 24 m2 , na který navazuje jídelní kout a kuchyně 14,5 m2, samostatnou ložnici 8,50 m2, koupelnu, samostatné WC a vstupní halu s chodbami. Praktickou součástí je také menší místnost využitelná jako sklad nebo dílna.
V patře (56 m2) se nachází dvě prostorné ložnice 20 m2 a 15 m2, druhé WC, hala a půdní prostor, který lze využít k dalšímu rozšíření obytné plochy nebo jako úložný prostor.

Dům je z větší části podsklepený, napojený na obecní vodovod i kanalizaci a připravený k okamžitému nastěhování.

Technické informace
Typ stavby: montovaná
Fasáda: zateplená
Okna: plastová výborné termoizolační vlastnosti
Vytápění: kombinace přímotopů a vytápění tuhými palivy
Stav domu: dobrý, dům je ihned obyvatelný
Voda a kanalizace: napojení na obecní řad
Elektřina: 230/400 V
Orientace: zahrada a terasa orientovány na jihozápad

Na pozemku se dále nachází samostatná dílna a kůlna, které nabízí široké možnosti využití ať už pro kutily, skladování sportovního vybavení, nebo jako menší domácí dílna.
Zahrada je svažitá, plně oplocená, udržovaná, se vzrostlými stromy a keři. K dispozici je i zpevněná terasa ideální pro letní grilování nebo odpočinek.

Lokalita, kterou si zamilujete
Čerčany jsou malebnou středočeskou obcí rozkládající se přímo u řeky Sázavy. Okolí je vyhledávané pro rybaření, vodní sporty, turistiku i cykloturistiku. Lesy, louky a říční zákoutí v okolí nabízí nespočet příležitostí k aktivnímu i pasivnímu odpočinku.

Obec je zároveň plně občansky vybavená najdete zde např.:
Zdravotní středisko a lékárnu
Mateřskou i základní školu
Obchody, restaurace, kavárny
Poštu, knihovnu, kino
Výborné vlakové spojení do Prahy každých 30 minut
Rychlé napojení na D1 (exit Mirošovice) do Prahy autem cca 25 minut

Tento dům je ideální volbou pro rodinu, která hledá prostorné a klidné bydlení v přírodě, a přitom s výbornou dostupností do hlavního města.

Makléř

Máte zájem o tento dům?

Tímto, v souladu s nařízením Evropského parlamentu a Rady (EU) 2016/679, v platném znění, prohlašuji, že mi je alespoň 16 let a uděluji tak svůj souhlas se zpracováním zadaných údajů (jméno, telefon, e-mail, ip adresa) společnosti B3 Technology, s.r.o., IČ: 07330600, se sídlem Novostavby 126/23, 435 11 Lom (správce dat), za účelem předání dotazu z tohoto formuláře Vámi vybranému inzerentovi a zpětného kontaktování mé osoby. Osobní údaje bude správce zpracovávat manuálně i automaticky přímo prostřednictvím svých zaměstnanců. Informace předané tímto formulářem budou uloženy v databázi správce maximálně po dobu 10 let. Odvolání souhlasu s uložením a zpracováním poskytnutých dat lze e-mailem na info@origo-reality.cz. V případě podezření na neoprávněné použití Vámi poskytnutých údajů máte právo předat podnět k šetření Úřadu pro ochranu osobních údajů. Více informací
Chystáte se prodat nemovitost?
Pomůžeme Vám!

Přihlášení k odběru

Nenechte si ujít nejnovější nabídky prodeje rodinných domů v Čerčanech.