Prodej bytu 4+1, Trutnov, Lesní, 93 m2

Lesní, Kryblice

7 950 000 Kč
/za nemovitost
Včetně provize RK a právních služeb.
Hypotéka od 35 532 Kč /měs. Chci hypotéku

Parametry bytu

AdresaLesní, Kryblice
ID24706
StavbaCihlová
Stav objektuPo rekonstrukci
Patro1. z 3
VybavenoČástečně
Typ objektuPatrový
VlastnictvíOsobní
Užitná plocha93 m2
Podlahová plocha93 m2
Plocha zahrady325 m2
Třída energetické náročnostiE - Nehospodárná
Elektřina230V
OdpadVeřejná kanalizace
TopeníÚstřední dálkové
KomunikaceAsfaltová
TelekomunikaceInternet, Kabelové rozvody
DopravaVlak, Silnice, MHD, Autobus
VodaVodovod
Sklep
Terasa
Bezbarierový přístup
Parkování

Origo partneři v Trutnově

Popis

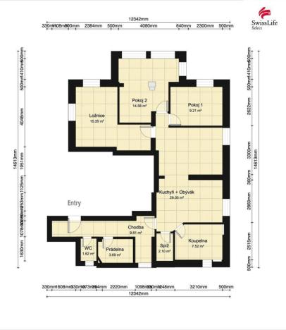
Nabízíme k prodeji moderní byt 4+1 po kompletní rekonstrukci s vlastní zahradou, který se nachází v jedné z nejžádanějších částí Trutnova Kryblice. Nachází se v přízemí zděného domu. Byt je v osobním vlastnictví a podlahová plocha je 93,25 m.

Dispozice: vstupní chodba, obývací pokoj, kuchyň s kuchyňskou linkou a vestavnými spotřebiči, tři samostatné pokoje, technická místnost, koupelna s wc a samostatné wc. K bytu náleží sklep a vlastní zahrada o výměře 325 m, která je přístupná přímo z bytu.

Byt prošel kompletní rekonstrukcí - nové rozvody elektřiny, vody a odpady, nová kuchyňská linka se spotřebiči, modernizována koupelna, plastová okna, nové stropy a omítky, nové vinylové podlahy. Dům je nově zateplený. Vytápění je řešeno podlahovým topením napojeným na horkovod. Ohřev vody el. bojler. PENB zatím třídy E probíhá finalizace rekonstrukce (zateplení fasády, střechy a nová okna). Po dokončení bude nový energetický štítek s nižší energetickou třídou.

Výborná lokalita - v pěší vzdálenosti základní a mateřská škola, obchod s potravinami, zastávka MHD, nemocnice ad.. Centrum města a náměstí je vzdálené 5 min. chůze.

Pro více informací nebo sjednání prohlídky nás neváhejte kontaktovat. Rádi Vám zajistíme financování koupě tohoto bytu. Budeme se těšit u prohlídky.

Makléř

Máte zájem o tento byt?

Tímto, v souladu s nařízením Evropského parlamentu a Rady (EU) 2016/679, v platném znění, prohlašuji, že mi je alespoň 16 let a uděluji tak svůj souhlas se zpracováním zadaných údajů (jméno, telefon, e-mail, ip adresa) společnosti B3 Technology, s.r.o., IČ: 07330600, se sídlem Novostavby 126/23, 435 11 Lom (správce dat), za účelem předání dotazu z tohoto formuláře Vámi vybranému inzerentovi a zpětného kontaktování mé osoby. Osobní údaje bude správce zpracovávat manuálně i automaticky přímo prostřednictvím svých zaměstnanců. Informace předané tímto formulářem budou uloženy v databázi správce maximálně po dobu 10 let. Odvolání souhlasu s uložením a zpracováním poskytnutých dat lze e-mailem na info@origo-reality.cz. V případě podezření na neoprávněné použití Vámi poskytnutých údajů máte právo předat podnět k šetření Úřadu pro ochranu osobních údajů. Více informací
Chystáte se prodat nemovitost?
Pomůžeme Vám!

Přihlášení k odběru

Nenechte si ujít nejnovější nabídky prodeje bytů 4+1 v Trutnově.