Prodej rodinného domu, Hrotovice, Manž. Orlových, 179 m2

Manž. Orlových, Hrotovice

12 000 000 Kč
/za nemovitost
včetně DPH, včetně poplatků, včetně provize, včetně právního servisu
Hypotéka od 53 633 Kč /měs. Chci hypotéku

Parametry domu

AdresaManž. Orlových, Hrotovice
ID01891
StavbaCihlová
Stav objektuVelmi dobrý
VybavenoNe
Typ objektuPřízemní
Druh objektuSamostatný
Lokalita objektuKlidná část obce
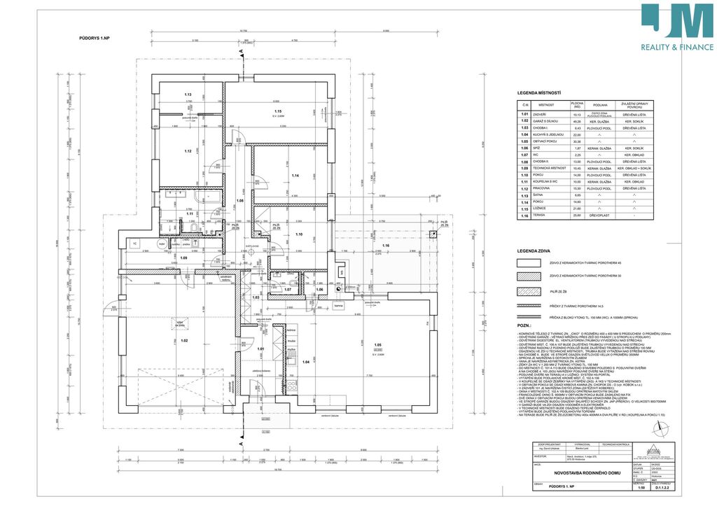
Užitná plocha179 m2
Plocha pozemku899 m2
Třída energetické náročnostiG - Mimořádně nehospodárná
Elektřina230V
OdpadVeřejná kanalizace
TopeníÚstřední elektrické
KomunikaceAsfaltová
DopravaSilnice, Autobus
VodaVodovod
Garáž
Terasa
Výtah
Bezbarierový přístup

Origo partneři v Hrotovicích

Popis

Rád Vám zprostředkuji prodej krásné prostorné novostavby v klidné části Hrotovic (10 minut od Dukovan). V domě naleznete ložnici s šatnou, pracovnu, dva pokoje, prostorný obývací pokoj propojený s kuchyní a vstupem na zastřešenou terasu. Z kuchyně je vstup do komory. V domě je také koupelna s prostorem pro vanu, sprchový kout a toaletu, dále v domě naleznete samostatnou toaletu. Vedle vstupu do domu se nachází garáž pro dvě auta o rozloze 49 m². Za garáží je technická místnost. Zdi domu tvoří Heluz, střecha Tondach. Okna, dveře a posuvné dveře jsou z plastu. V domě bude kompletní rozvod elektriky (měď), příprava na předokenní žaluzie a také příprava pro fotovoltaiku a vallbox. Součástí je podlahové topení v celém domě, tepelné čerpadlo De Ditrich Alezio v200 r32.
V ceně není: vybavení domu (zařizovací předměty, vnitřní dveře, koupelna, toalety, kuchyň), finální podlahy (např vinyl, dlažba), oplocení pozemku a dokončovací práce na pozemku.
Jedná se o velice krásný a praktický dům s pozemkem 899 m².
Pro více informací mě neváhejte kontaktovat

Makléř

Máte zájem o tento dům?

Tímto, v souladu s nařízením Evropského parlamentu a Rady (EU) 2016/679, v platném znění, prohlašuji, že mi je alespoň 16 let a uděluji tak svůj souhlas se zpracováním zadaných údajů (jméno, telefon, e-mail, ip adresa) společnosti B3 Technology, s.r.o., IČ: 07330600, se sídlem Novostavby 126/23, 435 11 Lom (správce dat), za účelem předání dotazu z tohoto formuláře Vámi vybranému inzerentovi a zpětného kontaktování mé osoby. Osobní údaje bude správce zpracovávat manuálně i automaticky přímo prostřednictvím svých zaměstnanců. Informace předané tímto formulářem budou uloženy v databázi správce maximálně po dobu 10 let. Odvolání souhlasu s uložením a zpracováním poskytnutých dat lze e-mailem na info@origo-reality.cz. V případě podezření na neoprávněné použití Vámi poskytnutých údajů máte právo předat podnět k šetření Úřadu pro ochranu osobních údajů. Více informací
Chystáte se prodat nemovitost?
Pomůžeme Vám!

Přihlášení k odběru

Nenechte si ujít nejnovější nabídky prodeje rodinných domů v Hrotovicích.