Pronájem kanceláře, Zlín, třída Tomáše Bati, 108 m2

třída Tomáše Bati, Zlín

29 900 Kč
/za měsíc
+ zálohy na energie a služby 2.800,- Kč + DPH/měs. NEPLATÍTE PROVIZI RK!
Získejte výhodnou HYPOTÉKU Chci hypotéku

Parametry nemovitosti

Adresatřída Tomáše Bati, Zlín
ID133716
StavbaCihlová
Stav objektuVelmi dobrý
Typ objektuPatrový
Lokalita objektuCentrum obce
Užitná plocha108 m2
Třída energetické náročnostiE - Nehospodárná
Elektřina230V
OdpadVeřejná kanalizace
TopeníÚstřední dálkové
DopravaVlak, Dálnice, Silnice, MHD, Autobus
VodaVodovod
Parkování

Origo partneři v Zlíně

Popis

Hledáte reprezentativní prostory pro své podnikání v srdci Zlína s možností soukromého zázemí? Máme pro vás exkluzivní nabídku!

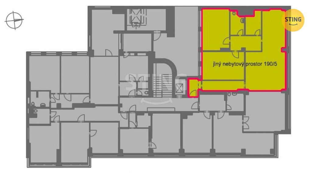
K pronájmu nabízíme atraktivní prostory o celkové užitné ploše 108 m2, umístěné ve 3. nadzemním podlaží budovy s výtahem. Součástí jsou 3 samostatné místnosti, z toho jedna s velkým kuchyňským koutem, koupelna se sprchovým koutem a toaletou, technická místnost, ideální kombinace pro kancelářské, poradenské či kreativní využití s případným zázemím pro bydlení.

Prostory budou k dispozici po rekonstrukci od 1.2.2026 - bude zde nová koupelna, kuchyňská linka vč. vestavných spotřebičů - viz vizualizace kuchyně ve fotogalerii.
Rekonstrukci lze přizpůsobit požadavkům budoucího nájemce!

Lokalita, která pracuje za vás

Budova se nachází přímo v centru města, naproti divadlu, na hlavní tepně s vysokou frekvencí chodců i automobilové dopravy – ideální místo pro setkávání s klienty.

Jedná se o jednu z nejvýznamnějších funkcionalistických staveb nebaťovské architektury, jejímž autorem je ak. arch. Miroslav Lorenc, projektant budov pro Tomáše Baťu.

Stav budovy a služby

- reprezentativní nemovitost ve velmi dobrém stavu
- pravidelně udržovaná a rekonstruovaná
- veškerý provoz zajišťuje správce budovy
- možnost vyhrazeného parkovacího místa přímo u domu za cenu 2.480,- Kč + DPH

Informace k nabízeným prostorům

- 2 místnosti jsou klimatizovány
- prostory (jsou vedeny jako samostatná nebytová jednotka) mají vlastní hlavní elektroměr
- jsou osazeny podružnými měřidly s dálkovým odečtem vodoměru i tepelných indikátorů
- teplo je řízeno termostaty v jednotlivých místnostech
- radiátory jsou osazeny elektronickými hlavicemi s účelem optimalizace nákladů na vytápění (mobilní aplikace pro automatické či ruční nastaveni teploty)


Finanční podmínky

nájemné: 29.900 Kč + 21 % DPH/měsíc
zálohy na služby: 2.800 Kč + DPH (teplo, vodné, stočné, spol. elektřina aj.)
elektřina: vlastní spotřeba – samostatné měření
kauce: 1× měsíční nájem
provize: Neplatíte provizi RK

Prostory jsou vhodné pro plátce DPH.

Tato nabídka kombinuje prestižní adresu, komfort a flexibilitu – ideální pro vaše podnikání.
Pro více informací nebo sjednání prohlídky kontaktujte realitní kancelář.

Makléř

Máte zájem o tuto nemovistost?

Tímto, v souladu s nařízením Evropského parlamentu a Rady (EU) 2016/679, v platném znění, prohlašuji, že mi je alespoň 16 let a uděluji tak svůj souhlas se zpracováním zadaných údajů (jméno, telefon, e-mail, ip adresa) společnosti B3 Technology, s.r.o., IČ: 07330600, se sídlem Novostavby 126/23, 435 11 Lom (správce dat), za účelem předání dotazu z tohoto formuláře Vámi vybranému inzerentovi a zpětného kontaktování mé osoby. Osobní údaje bude správce zpracovávat manuálně i automaticky přímo prostřednictvím svých zaměstnanců. Informace předané tímto formulářem budou uloženy v databázi správce maximálně po dobu 10 let. Odvolání souhlasu s uložením a zpracováním poskytnutých dat lze e-mailem na info@origo-reality.cz. V případě podezření na neoprávněné použití Vámi poskytnutých údajů máte právo předat podnět k šetření Úřadu pro ochranu osobních údajů. Více informací
Chystáte se prodat nemovitost?
Pomůžeme Vám!

Přihlášení k odběru

Nenechte si ujít nejnovější nabídky pronájmu kanceláří v Zlíně.