Prodej bytu 3+kk, Havlíčkův Brod, Stromovka, 91 m2 (ID: 1860518)

Stromovka, Havlíčkův Brod

6 590 000 Kč
/za nemovitost
včetně provize RK a právního servisu
Hypotéka od 29 453 Kč /měs. Chci hypotéku

Parametry bytu

Náklady na bydlení7500 Kč
AdresaStromovka, Havlíčkův Brod
ID5162
StavbaCihlová
Stav objektuVelmi dobrý
Patro2. z 3
VybavenoAno
Lokalita objektuOkraj obce
VlastnictvíOsobní
Užitná plocha91 m2
Podlahová plocha91 m2
Třída energetické náročnostiC - Úsporná
Elektřina230V, 400V
OdpadVeřejná kanalizace
TopeníÚstřední dálkové
TelekomunikaceInternet
DopravaVlak, Dálnice, MHD, Autobus
VodaVodovod
Garáž
Sklep
Lodžie
Parkování

Origo partneři v Havlíčkově Brodě

Popis

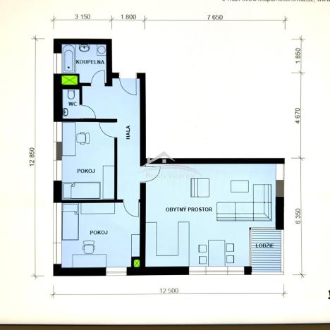
Ve výhradním zastoupení nabízíme velmi pěkný zděný byt 3+kk o podlahové ploše 91 m², který byl dokončen v roce 2019 a nachází se ve 2. nadzemním podlaží zatepleného a moderně vybaveného bytového domu.

Dispozice bytu zahrnuje prostornou předsíň a chodbu, koupelnu s vanou, umyvadlem a místem pro pračku se sušičkou. Samostatné WC je umístěno hned vedle koupelny. Dominantou bytu je velkorysý obývací pokoj s kuchyní o ploše přibližně 45 m², orientovaný na jižní stranu směrem do ulice. Z této místnosti je přímý vstup na lodžii. Kuchyňská linka je plně vybavena vestavěnými spotřebiči – elektrickou varnou deskou, horkovzdušnou troubou, digestoří, myčkou a novou lednicí s mrazákem. Celý byt byl nově vymalován bílou barvou.

Topení je dálkové s dálkovými odečty, v koupelně je navíc podlahové topení pro vyšší komfort. V bytě jsou plovoucí podlahy, v koupelně a na WC keramická dlažba. Jádro je zděné, voda i teplo jsou zajištěny dálkovým odečtem.

Součástí nabídky je také uzamykatelná sklepní kóje o velikosti cca 3 m² a možnost pronájmu krytého parkovacího stání (2.000 Kč/měsíc), které se nachází ve stejném podlaží jako sklep. Vstup do domu je zabezpečen čipovým systémem a garážová vrata se ovládají pohodlně přes mobilní telefon.

Velkou výhodou je možnost dokoupit stávající pronajaté i sousední parkovací místo, které je aktuálně do konce roku 2025 v pronájmu – ideální řešení pro dvouvozidlovou domácnost.

Byt je ve výborném technickém stavu, ihned k nastěhování. Bytový dům je čistý a pravidelně udržovaný, úklid zajišťuje profesionální firma. Díky osobnímu vlastnictví lze koupi financovat hypotečním úvěrem nebo stavebním spořením – s vyřízením vám ochotně pomůže náš hypoteční specialista.

Makléř

Máte zájem o tento byt?

Tímto, v souladu s nařízením Evropského parlamentu a Rady (EU) 2016/679, v platném znění, prohlašuji, že mi je alespoň 16 let a uděluji tak svůj souhlas se zpracováním zadaných údajů (jméno, telefon, e-mail, ip adresa) společnosti B3 Technology, s.r.o., IČ: 07330600, se sídlem Novostavby 126/23, 435 11 Lom (správce dat), za účelem předání dotazu z tohoto formuláře Vámi vybranému inzerentovi a zpětného kontaktování mé osoby. Osobní údaje bude správce zpracovávat manuálně i automaticky přímo prostřednictvím svých zaměstnanců. Informace předané tímto formulářem budou uloženy v databázi správce maximálně po dobu 10 let. Odvolání souhlasu s uložením a zpracováním poskytnutých dat lze e-mailem na info@origo-reality.cz. V případě podezření na neoprávněné použití Vámi poskytnutých údajů máte právo předat podnět k šetření Úřadu pro ochranu osobních údajů. Více informací
Chystáte se prodat nemovitost?
Pomůžeme Vám!

Přihlášení k odběru

Nenechte si ujít nejnovější nabídky prodeje bytů 3+kk v Havlíčkově Brodě.