Prodej ubytování, Zákupy, Mimoňská, 250 m2

Mimoňská, Zákupy

3 800 000 Kč
/za nemovitost
Hypotéka od 16 984 Kč /měs. Chci hypotéku

Parametry nemovitosti

AdresaMimoňská, Zákupy
ID11683
StavbaCihlová
Stav objektuPřed rekonstrukcí
VybavenoNe
Typ objektuPatrový
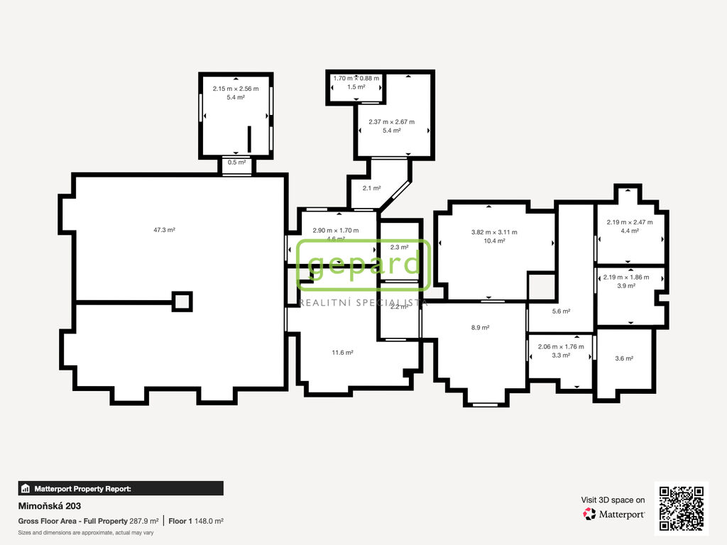
Užitná plocha250 m2
Zastavěná plocha159 m2
Plocha pozemku747 m2
Třída energetické náročnostiG - Mimořádně nehospodárná
Elektřina230V, 400V
OdpadVeřejná kanalizace
KomunikaceAsfaltová
DopravaVlak, Silnice, Autobus
VodaVodovod
Převod do OV

Origo partneři v Zákupech

Rekonstrukce

Úklidové služby

Popis

Ve výhradním zastoupení majitele nabízíme k prodeji zcela výjimečný dům v Zákupech.
Jedná se o dvoupatrový dům kde užitná plocha v přízemí činí 154 m2 dle stavební dokumentace a v prvním patře je celkem 7 velkých místností a 3 malé, které sloužili jako koupena a toaleta. Užitná plocha v patře je přibližně 125 m2.
V přízemí domu jsou měněná dřevěná okna, funkční vodovod i kanalizace a několik samostatných toalet. K vytápění slouží kromě kotle na tuhá paliva i tepelné čerpadlo.
V přízemí se nachází technické prostory domu jako je kotelna a skladovací prostory. Přízemí domu sloužilo jako restaurace a nyní je pronajato neziskové organizaci, která se zabývá volnočasovou aktivitou dětí, kde nájemní smlouva je platná do konce roku 2025.
Horní patro je určeno k celkové rekonstrukci interiéru a svou velikostí nabízí nesčetné možnosti využití, od klasického penzionu, přes prostory k Airbnb pronájmu
až, po splnění zákonných povinností, k možnosti přestavby domu na rodinné bydlení s možností zbudování klidně tří bytových jednotek.
Dům je určen k rekonstrukci, ale celkově je v dobrém stavu, v nedávné době zde proběhla rekonstrukce 240 m2 střechy s použitím kvalitní plechové krytiny. Pouze na přístavku je střecha původní cca 70 m2.
Město Zákupy leží v srdci Libereckého kraje a jeho okolí je obklopeno překrásnou přírodou se spoustou turistických a cyklistických tras.
Je zde velkolepý zámek s bohatou královskou historií a i milovníci sportovních aktivit si zde přijdou na své především díky stadionu Emila Zátopka s nespočtem různých sportovišť.
Nenechte si ujít tuto jedinečnou příležitost, která se nebude opakovat každý den.
Nyní se pohodlně usaďte a užijte si virtuální prohlídku a v případě jakýchkoli dotazů se na mě neváhejte obrátit.
Díky letitým zkušenostem vám moc rádi pomůžeme s financováním koupě tohoto domu, případně i rekonstrukce.

Makléř

Máte zájem o tuto nemovistost?

Tímto, v souladu s nařízením Evropského parlamentu a Rady (EU) 2016/679, v platném znění, prohlašuji, že mi je alespoň 16 let a uděluji tak svůj souhlas se zpracováním zadaných údajů (jméno, telefon, e-mail, ip adresa) společnosti B3 Technology, s.r.o., IČ: 07330600, se sídlem Novostavby 126/23, 435 11 Lom (správce dat), za účelem předání dotazu z tohoto formuláře Vámi vybranému inzerentovi a zpětného kontaktování mé osoby. Osobní údaje bude správce zpracovávat manuálně i automaticky přímo prostřednictvím svých zaměstnanců. Informace předané tímto formulářem budou uloženy v databázi správce maximálně po dobu 10 let. Odvolání souhlasu s uložením a zpracováním poskytnutých dat lze e-mailem na info@origo-reality.cz. V případě podezření na neoprávněné použití Vámi poskytnutých údajů máte právo předat podnět k šetření Úřadu pro ochranu osobních údajů. Více informací
Chystáte se prodat nemovitost?
Pomůžeme Vám!

Přihlášení k odběru

Nenechte si ujít nejnovější nabídky prodeje ubytování v Zákupech.