Prodej rodinného domu, Radějovice, 218 m2 (ID: 1860056)

Radějovice, Olešky

19 900 000 Kč
/za nemovitost
Dům je dokončený včetně finálních podlah a výplně otvorů a bez nábytku. Podrobnější informace u makléře.
Hypotéka od 88 941 Kč /měs. Chci hypotéku

Parametry domu

AdresaRadějovice, Olešky
ID17682
StavbaCihlová
Stav objektuNovostavba
VybavenoNe
Typ objektuPřízemní
Druh objektuSamostatný
Lokalita objektuKlidná část obce
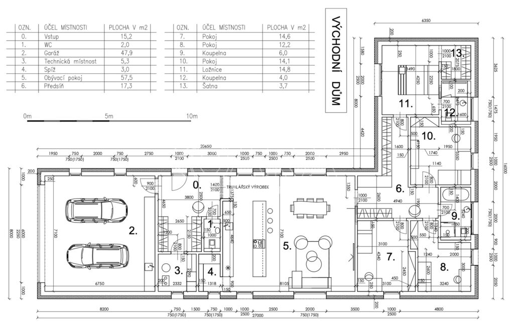
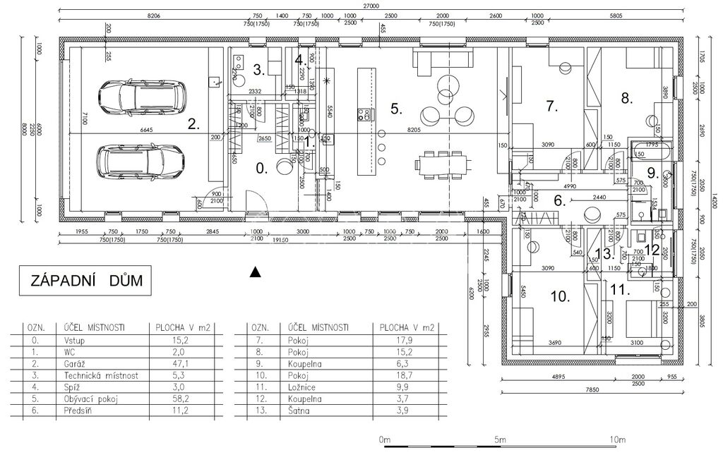
Užitná plocha218 m2
Zastavěná plocha265 m2
Podlahová plocha218 m2
Plocha pozemku1000 m2
Plocha zahrady735 m2
Třída energetické náročnostiA - Mimořádně úsporná
Elektřina230V, 400V
PlynPlynovod
OdpadVeřejná kanalizace
KomunikaceAsfaltová
TelekomunikaceInternet, Kabelové rozvody
DopravaDálnice, MHD, Autobus
VodaVodovod, Studna
Garáž
Bezbarierový přístup
Převod do OV
Parkování
Nízkoenergetický

Origo partneři v Radějovicích

Popis

✨ NOVÁ CENA! Moderní pasivní dům u Prahy – Radějovice–Olešky

Hledáte komfortní a úsporné rodinné bydlení v klidné lokalitě u Prahy?
Nově nabízíme designový dům v Radějovicích–Oleškách za zvýhodněnou cenu 19 990 000 Kč včetně DPH – pod hranicí 20 mil. Kč.
Kombinace moderní architektury, špičkových technologií a výborné dostupnosti dělá z této nabídky mimořádnou příležitost pro rodinu, která nechce dělat kompromisy.

✨ Nízkoenergetický domov bez kompromisů
✔️ Dům je postaven v pasivním standardu (energetická třída A) a vybaven technologiemi, které zaručují minimální provozní náklady i maximální komfort v každém ročním období:
✔️ Tepelné čerpadlo vzduch–voda (vytápění i chlazení)
✔️ Rekuperace pro zdravé vnitřní klima
✔️ Fotovoltaická elektrárna 10 kWp s hybridním střídačem
✔️ Wallbox pro nabíjení elektromobilu
✔️ Kvalitní zateplení, masivní zděná konstrukce a trojskla
✔️ Podlahové vytápění a bezbariérový přístup

✨ Promyšlený design a špičkové materiály
✔️ Interiér i exteriér jsou laděny do moderního, nadčasového stylu:
✔️ Designové obklady Lea Ceramiche – řada Masterpiece
✔️ Sanitární prvky Vigour
✔️ Prémiová venkovní dlažba Diton
✔️ Garáž s vraty Hörmann
✔️ Předokenní žaluzie, optický internet, příprava na plyn
✔️ Napojení na vodovod, kanalizaci i vlastní studnu

✨ Lokalita: Radějovice–Olešky
Vyhledávaná obec s rychlou dostupností do Prahy (cca 25 minut).
V blízkém okolí naleznete školky, školy, obchody, restaurace i přírodu – ideální místo pro klidný rodinný život s městem na dosah.

✨ Proč právě tento dům
✔️ Nová cena pod 20 mil. Kč
✔️ Dům je již zkolaudovaný – připravený k okamžitému nastěhování
✔️ Pasivní standard = minimální provozní náklady
✔️ Kvalitní, klidná lokalita bez rušivého provozu
✔️ Hotová novostavba – bez čekání, bez starostí

✨ Zavolejte si o prohlídku
Takových domů se na trhu příliš neobjevuje – moderní, úsporný, hotový a nyní i za férovou cenu.

Makléř

Máte zájem o tento dům?

Tímto, v souladu s nařízením Evropského parlamentu a Rady (EU) 2016/679, v platném znění, prohlašuji, že mi je alespoň 16 let a uděluji tak svůj souhlas se zpracováním zadaných údajů (jméno, telefon, e-mail, ip adresa) společnosti B3 Technology, s.r.o., IČ: 07330600, se sídlem Novostavby 126/23, 435 11 Lom (správce dat), za účelem předání dotazu z tohoto formuláře Vámi vybranému inzerentovi a zpětného kontaktování mé osoby. Osobní údaje bude správce zpracovávat manuálně i automaticky přímo prostřednictvím svých zaměstnanců. Informace předané tímto formulářem budou uloženy v databázi správce maximálně po dobu 10 let. Odvolání souhlasu s uložením a zpracováním poskytnutých dat lze e-mailem na info@origo-reality.cz. V případě podezření na neoprávněné použití Vámi poskytnutých údajů máte právo předat podnět k šetření Úřadu pro ochranu osobních údajů. Více informací
Chystáte se prodat nemovitost?
Pomůžeme Vám!

Přihlášení k odběru

Nenechte si ujít nejnovější nabídky prodeje rodinných domů v Radějovicích (okr. Praha-východ).