Pronájem kanceláře, Ostrava, Kralická, 128 m2

Kralická, Ostrava, Mariánské Hory a Hulváky

29 400 Kč
/za měsíc
Získejte výhodnou HYPOTÉKU Chci hypotéku

Parametry nemovitosti

AdresaKralická, Ostrava, Mariánské Hory a Hulváky
ID1639
StavbaCihlová
Stav objektuVelmi dobrý
Patro1. z 3
VybavenoNe
Typ objektuPřízemní
Lokalita objektuCentrum obce
Užitná plocha128 m2
Zastavěná plocha264 m2
Podlahová plocha128 m2
Třída energetické náročnostiG - Mimořádně nehospodárná
PlynPlynovod
OdpadVeřejná kanalizace
TelekomunikaceInternet
DopravaVlak, Silnice, MHD, Autobus
Převod do OV

Origo partneři v Ostravě

Popis

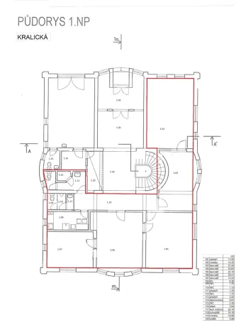
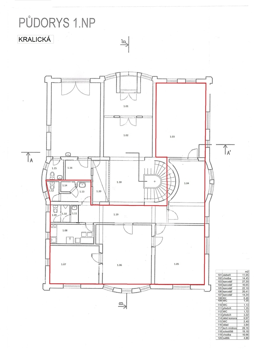
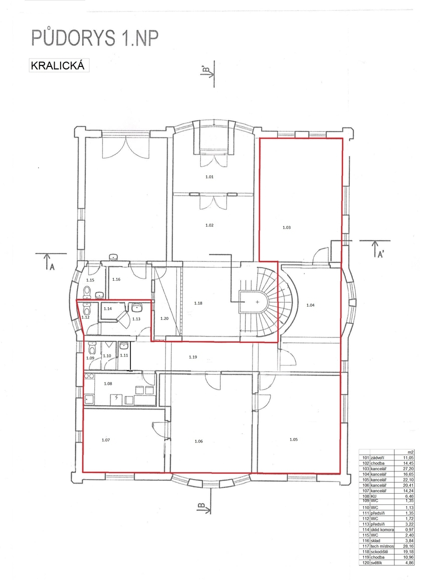
Nabízíme reprezentativní kancelářské prostory, nacházející se v přízemí budovy na ulici Kralická v Ostravě–Mariánských Horách, v klidné a dobře dostupné lokalitě.
Budova, ve které se tyto kanceláře nacházejí, byla zkolaudována v roce 2011 a je ve výborném stavu.

Tyto prostory poskytují profesionální zázemí pro vaše podnikání a zároveň nabízejí dostatek soukromí i pohodlí.

Prostory tvoří pět samostatných kanceláří o velikosti od 14 m² až po 27 m², propojených vlastní chodbou. Součástí je kuchyňka a oddělené dámské a pánské toalety, určené výhradně pro tyto prostory.

Kanceláře jsou nově vymalované a mají nové koberce, takže působí velmi čistě a upraveně.

Je zde možnost parkování na ulici, případně za poplatek v uzavřeném dvoře.
Samozřejmostí je klimatizace, ústřední topení, kamerový systém uvnitř i vně budovy, elektronické zabezpečení a dálkové ovládání vstupu.
Nechybí rozvody datové sítě, centrální vysavač ani eurookna s trojsklem, která zajišťují klid a tepelný komfort. Nájemci mohou využít také úschovnu kol.

Podlahy v kancelářích pokrývají koberce, v ostatních částech je dlažba.
Budova se nachází v klidné, avšak výborně dostupné části Mariánských Hor, v blízkosti tramvajové, trolejbusové i autobusové zastávky.

Prostory jsou k dispozici ihned.

Tyto prostory jsou ideální pro menší firmu, která hledá reprezentativní, bezpečné a pohodlné zázemí v klidné lokalitě s výbornou dostupností.

Pro více informací nebo sjednání prohlídky mě neváhejte kontaktovat.

Makléř

Máte zájem o tuto nemovistost?

Tímto, v souladu s nařízením Evropského parlamentu a Rady (EU) 2016/679, v platném znění, prohlašuji, že mi je alespoň 16 let a uděluji tak svůj souhlas se zpracováním zadaných údajů (jméno, telefon, e-mail, ip adresa) společnosti B3 Technology, s.r.o., IČ: 07330600, se sídlem Novostavby 126/23, 435 11 Lom (správce dat), za účelem předání dotazu z tohoto formuláře Vámi vybranému inzerentovi a zpětného kontaktování mé osoby. Osobní údaje bude správce zpracovávat manuálně i automaticky přímo prostřednictvím svých zaměstnanců. Informace předané tímto formulářem budou uloženy v databázi správce maximálně po dobu 10 let. Odvolání souhlasu s uložením a zpracováním poskytnutých dat lze e-mailem na info@origo-reality.cz. V případě podezření na neoprávněné použití Vámi poskytnutých údajů máte právo předat podnět k šetření Úřadu pro ochranu osobních údajů. Více informací
Chystáte se prodat nemovitost?
Pomůžeme Vám!

Přihlášení k odběru

Nenechte si ujít nejnovější nabídky pronájmu kanceláří v Ostravě.