Pronájem kanceláře, Ostrava - Moravská Ostrava, Pohraniční, 90 m2 (ID: 1912339)

Pohraniční, Ostrava - Moravská Ostrava

9 800 Kč
/za měsíc
měsíční poplatky Nájemné 9.800 Kč + zálohy za služby 1.515 Kč + zálohy za energie 3.730 Kč + elektřina
Získejte výhodnou HYPOTÉKU Chci hypotéku

Parametry nemovitosti

AdresaPohraniční, Ostrava - Moravská Ostrava
ID143
VlastnictvíOsobní
Užitná plocha90 m2
Třída energetické náročnostiG - Mimořádně nehospodárná

Origo partneři v Ostravě

Popis

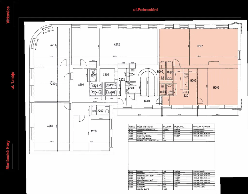
Nabízíme k pronájmu příjemné kancelářské prostory na ulici Pohraniční v Ostravě-Vítkovicích. Kanceláře se nacházejí v budově s výtahem, vlastním parkovištěm a blízko tramvajové zastávky. Zároveň možnost pronájmu dalších kanceláří o různých velikostech v této budově. Volné ihned.

Kanceláře jsou umístěny v 2NP a mají bezpečnostní hlídací systém. K dispozici budete mít soukromý, uzavřený prostor se 2 kancelářemi (60 m² a 30 m²), zázemí s kuchyňkou, sprchou a WC. Kanceláře je možno využít na různé účely - projekční kanceláře, internetové obchody, IT firmy a další firmy poskytující rozlišné služby v oblasti nemovitostí, školení apod.

Lokalita je velmi snadno dopravně dostupná. V rámci nájmu jsou zahrnuta i parkovací stání na soukromém, uzavřeném parkovišti přímo u bodovy. V blízkosti se nachází tramvajová zastávka.

Celkové měsíční náklady za tyto prostory činí cca 15.000,- Kč + elektřina (nájem 9.800,- Kč + zálohy za služby 1.515,- Kč + zálohy za energie 3.730,- Kč + elektřina). Cena je uvedena bez DPH. Na začátku se platí vratná kauce ve výši 2 měsíčních nájmů + provize RK jeden měsíční nájem.

Možnost pronájmu dalších kanceláří o různých velikostech v této budově.

Pro bližší informace či domluvení prohlídky mě neváhejte kontaktovat.

Makléř

Máte zájem o tuto nemovistost?

Tímto, v souladu s nařízením Evropského parlamentu a Rady (EU) 2016/679, v platném znění, prohlašuji, že mi je alespoň 16 let a uděluji tak svůj souhlas se zpracováním zadaných údajů (jméno, telefon, e-mail, ip adresa) společnosti B3 Technology, s.r.o., IČ: 07330600, se sídlem Novostavby 126/23, 435 11 Lom (správce dat), za účelem předání dotazu z tohoto formuláře Vámi vybranému inzerentovi a zpětného kontaktování mé osoby. Osobní údaje bude správce zpracovávat manuálně i automaticky přímo prostřednictvím svých zaměstnanců. Informace předané tímto formulářem budou uloženy v databázi správce maximálně po dobu 10 let. Odvolání souhlasu s uložením a zpracováním poskytnutých dat lze e-mailem na info@origo-reality.cz. V případě podezření na neoprávněné použití Vámi poskytnutých údajů máte právo předat podnět k šetření Úřadu pro ochranu osobních údajů. Více informací
Chystáte se prodat nemovitost?
Pomůžeme Vám!