Prodej bytu 3+1, Praha - Hlubočepy, Pražského, 76 m2 (ID: 1858553)

Pražského, Praha, Hlubočepy

8 800 000 Kč
/za nemovitost
Hypotéka od 39 331 Kč /měs. Chci hypotéku

Parametry bytu

AdresaPražského, Praha, Hlubočepy
ID967093
StavbaPanelová
Stav objektuVelmi dobrý
Patro7. z 9
VybavenoČástečně
VlastnictvíOsobní
Užitná plocha76 m2
Podlahová plocha81 m2
Třída energetické náročnostiB - Velmi úsporná
Ukazatel energetické náročnosti81 kWh/m2 za rok
DopravaSilnice, MHD
Sklep
Lodžie
Výtah

Origo partneři v Praze 5

Stěhovací služby

Výkup a prodej starého nábytku

Popis

Stojíte před skvělou příležitostí stát se vlastníkem bytu s výhledem na panorama Prahy ve vyhledávané části Hlubočepy sídliště Barrandov.
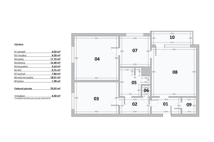
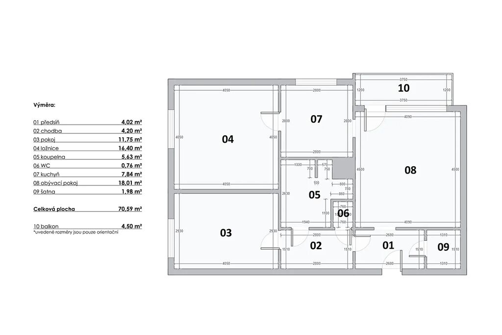
Nabízíme k prodeji útulný a světlý byt 3+1 s užitnou plochou 76 metrů čtverečních, nacházející se na šestém patře, sedmipatrového domu s výtahem na adrese Pražského 636/34. Dům je situován v klidné části s výbornou dostupností veřejné dopravy, obchodů a služeb.

Byt se pyšní nejen skvělým rozložením, ale světlostí díky jihozápadní orientaci. Dispozice bytu zahrnuje obývací pokoj, dvě neprůchozí ložnice, koupelnu, samostatné WC a praktickou komoru. Z obývacího pokoje je přístup na zasklenou lodžii o velikosti 4,5 metru čtverečního, která umožňuje pohodlné posezení s nádherným výhledem na okolí bez ohledu na počasí.

Interiér bytu je částečně zařízen. Součástí vybavení jsou spotřebiče včetně pračky. Bezpečnostní prvek je zajištěn vchodem na čip a domovním telefonem. Byt je ideální volbou jak pro rodiny s dětmi kvůli blízkosti škol, školek a parků, tak pro jednotlivce či páry, kteří ocení blízkost kultury a zábavních možností, jež nabízí metropole.

Nový majitel má možnost si na tento byt vzít hypotéku, což může proces koupi usnadnit.

Cena tohoto bytu je stanovena na 8 800 000 CZK a zahrnuje také sklep. Tato nemovitost je ideální volbou pro ty, kteří hledají komfortní bydlení v Praze s vynikajícím spojením do centra a zároveň si potrpí na klid a soukromí.

Nejenže je lokalita Hlubočepy známá svou kompletní občanskou vybaveností včetně širokého výběru škol, zdravotnických zařízení, obchodů a míst pro volný čas, ale také vyniká skvělou dopravní dostupností. Veřejná doprava včetně autobusu a metra je na dosah, stejně jako hlavní dopravní tepny, které umožní snadné a rychlé spojení s ostatními částmi Prahy i okolím.

Pokud tedy hledáte byt v Praze, který kombinuje moderní bydlení s přístupem k zeleni a zároveň nabízí výhody městského života, tento byt by rozhodně měl být ve vašem úvahu. Navštívit tento byt a prožít pocit domova je něco, co si zaslouží každý zájemce o kvalitní bydlení.

Makléř

Máte zájem o tento byt?

Tímto, v souladu s nařízením Evropského parlamentu a Rady (EU) 2016/679, v platném znění, prohlašuji, že mi je alespoň 16 let a uděluji tak svůj souhlas se zpracováním zadaných údajů (jméno, telefon, e-mail, ip adresa) společnosti B3 Technology, s.r.o., IČ: 07330600, se sídlem Novostavby 126/23, 435 11 Lom (správce dat), za účelem předání dotazu z tohoto formuláře Vámi vybranému inzerentovi a zpětného kontaktování mé osoby. Osobní údaje bude správce zpracovávat manuálně i automaticky přímo prostřednictvím svých zaměstnanců. Informace předané tímto formulářem budou uloženy v databázi správce maximálně po dobu 10 let. Odvolání souhlasu s uložením a zpracováním poskytnutých dat lze e-mailem na info@origo-reality.cz. V případě podezření na neoprávněné použití Vámi poskytnutých údajů máte právo předat podnět k šetření Úřadu pro ochranu osobních údajů. Více informací
Chystáte se prodat nemovitost?
Pomůžeme Vám!

Přihlášení k odběru

Nenechte si ujít nejnovější nabídky prodeje bytů 3+1 v Praze 5.