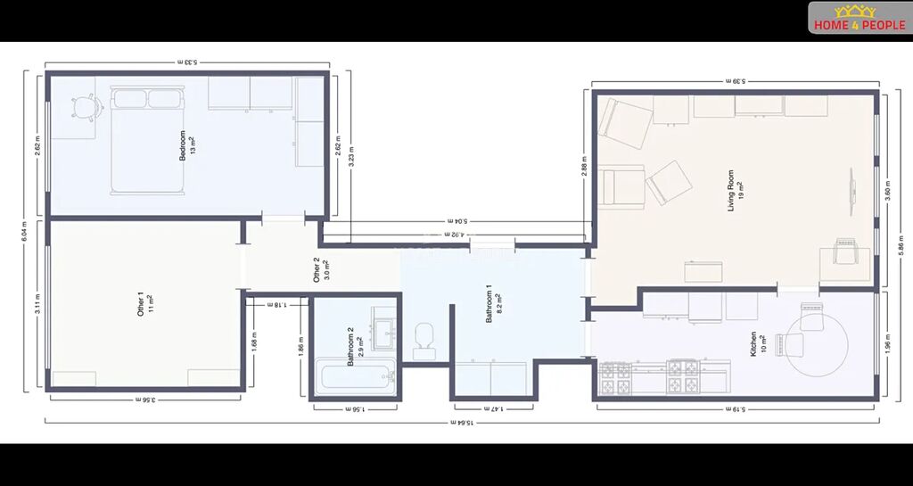
Prodej bytu 3+1, Praha - Stodůlky, Kurzova, 75 m2 (ID: 1852369)

Kurzova, Praha, Stodůlky

7 199 900 Kč
/za nemovitost
vč. provize a právního servisu.
Hypotéka od 32 179 Kč /měs. Chci hypotéku

Parametry bytu

AdresaKurzova, Praha, Stodůlky
ID31959
StavbaPanelová
Stav objektuVelmi dobrý
Patro4. z 7
VybavenoNe
VlastnictvíDružstevní
Užitná plocha75 m2
Podlahová plocha75 m2
Třída energetické náročnostiD - Méně úsporná
TopeníJiné
Sklep
Lodžie
Převod do OV

Origo partneři v Praze 5

Stěhovací služby

Výkup a prodej starého nábytku

Popis

Nabízíme k prodeji prostorný byt 3+1 o celkové výměře 75 m² s lodžií 7 m² ve vyhledávané lokalitě Praha 13 – Stodůlky, v ulici Kurzova.
Byt se nachází ve 4. nadzemním podlaží udržovaného panelového domu s klidnými sousedy.

Byt je určen k rekonstrukci, což umožňuje novému majiteli vytvořit si domov přesně podle svých představ.
Nedávno byly provedeny nové hlavní rozvody elektřiny a rekonstrukce kuchyně (cca 1 rok stará).

Z jedné strany bytu je příjemný výhled do klidného vnitrobloku, ve kterém se nachází malé náměstí s uměleckou instalací z kamene – několik kamenů rozmístěných vedle sebe vytváří zajímavý a odpočinkový prostor.

Lodžie je orientována do ulice a je vybavena ochrannou sítí proti holubům.
K bytu náleží sklep o velikosti 5 m². Dům je po částečných úpravách, pravidelně udržovaný.

Finanční informace
Družstevní vlastnictví - nelze převést do osobního vlastnictví

Částka při převodu družstevního podílu 6.229.000 Kč
Zbývající anuita: cca 970.000 Kč

Měsíční náklady:
Splátka anuity: 5.323 Kč
Ostatní platby družstvu (fond oprav, společné prostory, ohřev vody): 3.626 Kč
Dále se platí zálohy na elektřinu (individuální)

Lokalita – Stodůlky, Kurzova
Velmi žádaná a klidná lokalita s kompletní občanskou vybaveností a výbornou dopravní dostupností.

Sídliště Velká Ohrada je v blízkosti Prokopského a Dalejského údolí.
Pěšky cca 5 min. na autobus směr metro Luka nebo Nové Butovice.
Stanice metra Lužiny je cca 10 min. pěšky
Přímo ve vnitrobloku s uměleckými kameny je OC Velká Ohrada, kde je Albert, vinárna, Pepco, atd. V docházkové vzálenosti pekárna a Lidl. V blízkosti jsou také základní a mateřské školy.

Byt je ideální pro rekonstrukci dle vlastních představ nebo jako investiční příležitost v atraktivní lokalitě s veškerou infrastrukturou a výbornou dostupností do centra Prahy. Ev. číslo: 31959.

Makléř

Máte zájem o tento byt?

Tímto, v souladu s nařízením Evropského parlamentu a Rady (EU) 2016/679, v platném znění, prohlašuji, že mi je alespoň 16 let a uděluji tak svůj souhlas se zpracováním zadaných údajů (jméno, telefon, e-mail, ip adresa) společnosti B3 Technology, s.r.o., IČ: 07330600, se sídlem Novostavby 126/23, 435 11 Lom (správce dat), za účelem předání dotazu z tohoto formuláře Vámi vybranému inzerentovi a zpětného kontaktování mé osoby. Osobní údaje bude správce zpracovávat manuálně i automaticky přímo prostřednictvím svých zaměstnanců. Informace předané tímto formulářem budou uloženy v databázi správce maximálně po dobu 10 let. Odvolání souhlasu s uložením a zpracováním poskytnutých dat lze e-mailem na info@origo-reality.cz. V případě podezření na neoprávněné použití Vámi poskytnutých údajů máte právo předat podnět k šetření Úřadu pro ochranu osobních údajů. Více informací
Chystáte se prodat nemovitost?
Pomůžeme Vám!

Přihlášení k odběru

Nenechte si ujít nejnovější nabídky prodeje bytů 3+1 v Praze 5.