Prodej vícegeneračního domu, Velké Přítočno, Krátká, 180 m2 (ID: 1857718)

Krátká, Velké Přítočno

12 990 000 Kč
/za nemovitost
Hypotéka od 58 057 Kč /měs. Chci hypotéku

Parametry domu

AdresaKrátká, Velké Přítočno
ID0030
StavbaSmíšená
Stav objektuVelmi dobrý
VybavenoČástečně
Druh objektuSamostatný
Lokalita objektuKlidná část obce
Užitná plocha180 m2
Zastavěná plocha148 m2
Podlahová plocha296 m2
Plocha pozemku558 m2
Plocha zahrady252 m2
Třída energetické náročnostiE - Nehospodárná
Ukazatel energetické náročnosti296 kWh/m2 za rok
Elektřina230V, 400V
PlynIndividuální
OdpadVeřejná kanalizace
KomunikaceAsfaltová
TelekomunikaceInternet
DopravaSilnice, Autobus
VodaVodovod
Topné tělesoRadiátory
Zdroj topeníPlynový kotel
Zdroj teplé vodyPlynový kotel
Garáž
Sklep

Origo partneři v Velkém Přítočně

Popis

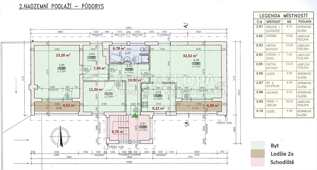
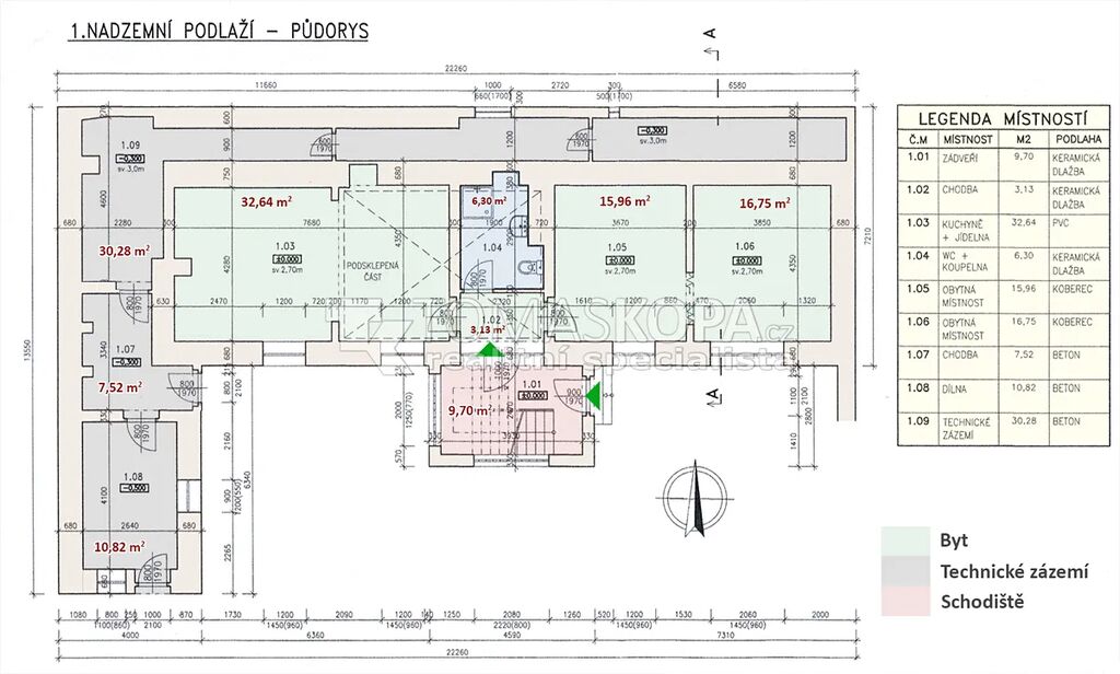
Prodej rodinného domu (dvougenerační) se 2 bytovými jednotkami (3+1 – 74,78 m2 v 1.NP domu a 3+1 – 104,62 m2 ve 2.NP domu) obě bytové jednotky jsou rozděleny prohlášením vlastníka (půdorysy naleznete v přiložených fotografiích), kdy spoluvlastnický podíl na zahradě, garáži (27 m2) a společných částech domu tvoří ½. Ve výlučném užívání má byt v 1.NP sklep a byt ve 2.NP 2 lodžie (viz. přiložené půdorysy). Každá bytová jednotka je vytápěna vlastním plynovým kotlem (s bojlerem na TÚV). U domu je dále zahrada 252 m2 s přístřeškem, kdy ve spodní části je garáž (27 m2) s přímým výjezdem na ulici. Celková plocha pozemku činní 558 m2. Vjezd na pozemek tvoří 2 v brány. IS – elektřina, voda, kanalizace, plynová přípojka na domě. Fotografie přízemního bytu zašlu na vyžádání. Obec Velké Přítočno je obec se základní občanskou vybaveností, kdy je zde ale skvělá dostupnost do Kladna a Prahy. Nájezd na dálnici D6 ( cca 2 minuty), Praha – Zličín (15 minut), zastávka MHD a PID 250 m.

Makléř

Máte zájem o tento dům?

Tímto, v souladu s nařízením Evropského parlamentu a Rady (EU) 2016/679, v platném znění, prohlašuji, že mi je alespoň 16 let a uděluji tak svůj souhlas se zpracováním zadaných údajů (jméno, telefon, e-mail, ip adresa) společnosti B3 Technology, s.r.o., IČ: 07330600, se sídlem Novostavby 126/23, 435 11 Lom (správce dat), za účelem předání dotazu z tohoto formuláře Vámi vybranému inzerentovi a zpětného kontaktování mé osoby. Osobní údaje bude správce zpracovávat manuálně i automaticky přímo prostřednictvím svých zaměstnanců. Informace předané tímto formulářem budou uloženy v databázi správce maximálně po dobu 10 let. Odvolání souhlasu s uložením a zpracováním poskytnutých dat lze e-mailem na info@origo-reality.cz. V případě podezření na neoprávněné použití Vámi poskytnutých údajů máte právo předat podnět k šetření Úřadu pro ochranu osobních údajů. Více informací
Chystáte se prodat nemovitost?
Pomůžeme Vám!

Přihlášení k odběru

Nenechte si ujít nejnovější nabídky prodeje vícegeneračních domů v Velkém Přítočně.