Prodej skladu, Skorošice, 1220 m2

Skorošice

Cena na vyžádání
/za nemovitost
včetně provize a právního servisu spojeného s převodem nemovitosti
Získejte výhodnou HYPOTÉKU Chci hypotéku

Parametry nemovitosti

AdresaSkorošice
ID211-NP04492
StavbaCihlová
Stav objektuDobrý
Typ objektuPatrový
Lokalita objektuOkraj obce
Užitná plocha1220 m2
Zastavěná plocha869 m2
Plocha zahrady2442 m2
Elektřina230V, 400V
OdpadVeřejná kanalizace
KomunikaceAsfaltová
VodaVodovod
Převod do OV

Origo partneři v Skorošicích

Popis

Ve výhradním zastoupení společností RE/MAX Future, Vám tímto nabízíme ke koupi výrobně skladovací areál se 2 bytovými jednotkami a pozemkem o celkové výměře včetně zastavěných ploch 2 442 m², který díky své poloze a velikosti nabízí širokou škálu možného využití.

Dvoupodlažní budova s celkovou užitnou plochou 1 220 m², je aktuálně v 1. nadzemním podlaží dispozičně rozdělena na prostory výrobní, skladové a administrativní s odpovídajícím sociálním zázemím. Dominantním prostorem je 148 m² veliká dílna s výsuvnými vraty, která byla využívána pro servisování nákladních automobilů. K dispozici jsou rovněž 2 dvojgaráže.

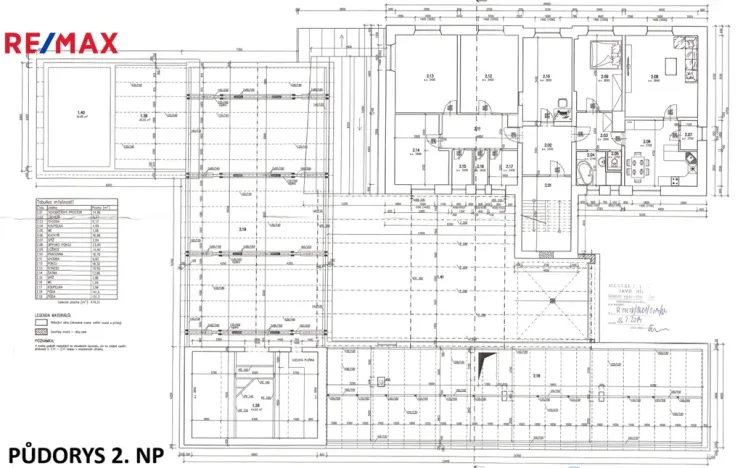
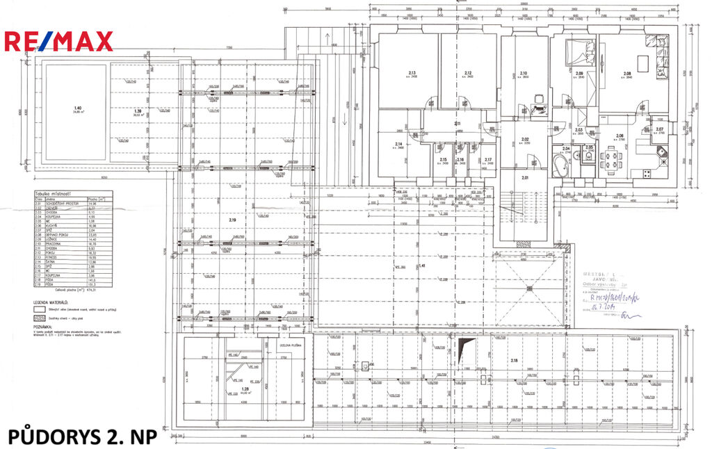
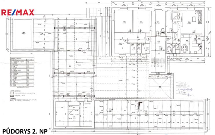
Druhé nadzemní podlaží, do kterého se dostanete pohodlně skrze široké schodiště, nabízí 2 bytové jednotky. První byt o dispozici 2+1 a výměře 70 m² je rozdělen na obývací pokoj, ložnici, kuchyň s jídelnou, spíž, koupelnu s vanou a sprchovým koutem, toaletu, chodbu. Byt je připraven k užívání. Druhý byt o dispozici 3+1 a výměře 87 m² nabízí 3 samostatné pokoje, přípravu pro kuchyň, spíž, přípravu pro koupelnu, přípravu pro toaletu, chodbu.

Další prostory s možností budoucího užívání představuje prostorná půda a sklep.

Areál se nachází u silnice I. třídy I/60, která vede z Jeseníku přes Žulovou a Javorník až do Polska. Jedná se o výborně dopravně dostupnou lokalitu.

Vzhledem k užitné ploše, velikosti pozemku a celkovému objemu budovy, tuto nabídku za naši kancelář hodnotíme jako vysoce zajímavou.

V případě zájmu o bližší informace mě prosím kontaktujte pomocí e-mailu nebo telefonicky.

Jiří Samek - výhradní prodejce Prodávající si vyhrazuje právo vybrat kupujícího na základě jím zvolených kritérií.

Makléř

Máte zájem o tuto nemovistost?

Tímto, v souladu s nařízením Evropského parlamentu a Rady (EU) 2016/679, v platném znění, prohlašuji, že mi je alespoň 16 let a uděluji tak svůj souhlas se zpracováním zadaných údajů (jméno, telefon, e-mail, ip adresa) společnosti B3 Technology, s.r.o., IČ: 07330600, se sídlem Novostavby 126/23, 435 11 Lom (správce dat), za účelem předání dotazu z tohoto formuláře Vámi vybranému inzerentovi a zpětného kontaktování mé osoby. Osobní údaje bude správce zpracovávat manuálně i automaticky přímo prostřednictvím svých zaměstnanců. Informace předané tímto formulářem budou uloženy v databázi správce maximálně po dobu 10 let. Odvolání souhlasu s uložením a zpracováním poskytnutých dat lze e-mailem na info@origo-reality.cz. V případě podezření na neoprávněné použití Vámi poskytnutých údajů máte právo předat podnět k šetření Úřadu pro ochranu osobních údajů. Více informací
Chystáte se prodat nemovitost?
Pomůžeme Vám!

Přihlášení k odběru

Nenechte si ujít nejnovější nabídky prodeje skladů v Skorošicích.

Podobné nabídky