Pronájem obchodního prostoru, Nymburk, Drahelická, 110 m2

Drahelická, Nymburk

15 000 Kč
/za měsíc
+ zálohy na energie, vratná kauce 20.000 Kč, provize RK 15.000 Kč
Získejte výhodnou HYPOTÉKU Chci hypotéku

Parametry nemovitosti

AdresaDrahelická, Nymburk
ID0059-NP07694
StavbaSmíšená
Stav objektuVelmi dobrý
Patro1.
VybavenoNe
Užitná plocha110 m2
Podlahová plocha110 m2
Třída energetické náročnostiG - Mimořádně nehospodárná
Elektřina230V
PlynPlynovod
OdpadVeřejná kanalizace
VodaVodovod

Origo partneři v Nymburku

Popis

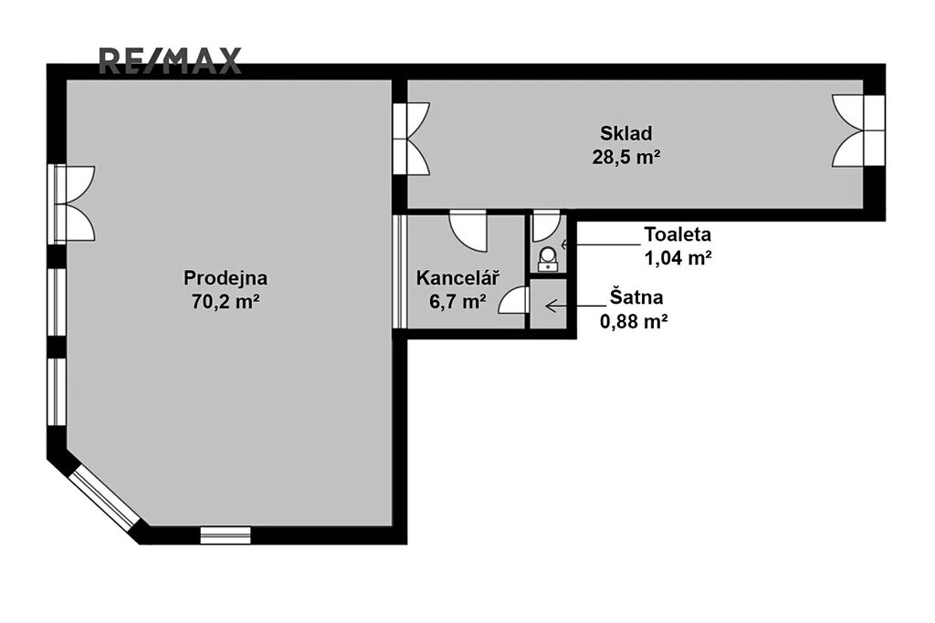
Nabízíme pronájem obchodních prostor o celkové velikosti 110 m2, v ulici Drahelická v Nymburce. Obchodní prostory s výlohou se nachází u frekventované silnice. Dispozice: hlavní prostor (prodejna) 70 m2, 2 místnosti - vhodné jako sklad 28,5 m2, a kancelář 7 m2 či zázemí (případně možné i rozšíření prodejny), WC s umyvadlem.
Prostory jsou vhodné například pro prodejnu, sídlo společnosti, kontaktní místo, kosmetické či kadeřnické služby apod.
K dispozici od 1.12.2025
Měsíční nájemné 15 000 Kč. Zálohy celkem cca 2.500 Kč (elektřinu a plyn si nájemce převede na sebe).
PENB štítek se zpracovává.
V případě zájmu o více informací či prohlídku kontaktujte makléřku nabídky.

Makléř

Máte zájem o tuto nemovistost?

Tímto, v souladu s nařízením Evropského parlamentu a Rady (EU) 2016/679, v platném znění, prohlašuji, že mi je alespoň 16 let a uděluji tak svůj souhlas se zpracováním zadaných údajů (jméno, telefon, e-mail, ip adresa) společnosti B3 Technology, s.r.o., IČ: 07330600, se sídlem Novostavby 126/23, 435 11 Lom (správce dat), za účelem předání dotazu z tohoto formuláře Vámi vybranému inzerentovi a zpětného kontaktování mé osoby. Osobní údaje bude správce zpracovávat manuálně i automaticky přímo prostřednictvím svých zaměstnanců. Informace předané tímto formulářem budou uloženy v databázi správce maximálně po dobu 10 let. Odvolání souhlasu s uložením a zpracováním poskytnutých dat lze e-mailem na info@origo-reality.cz. V případě podezření na neoprávněné použití Vámi poskytnutých údajů máte právo předat podnět k šetření Úřadu pro ochranu osobních údajů. Více informací
Chystáte se prodat nemovitost?
Pomůžeme Vám!

Přihlášení k odběru

Nenechte si ujít nejnovější nabídky pronájmu obchodních prostor v Nymburku.