Pronájem obchodního prostoru, Poděbrady, Hakenova, 53 m2

Hakenova, Poděbrady III

16 125 Kč
/za měsíc
Získejte výhodnou HYPOTÉKU Chci hypotéku

Parametry nemovitosti

AdresaHakenova, Poděbrady III
ID948
StavbaCihlová
Stav objektuPo rekonstrukci
Užitná plocha53 m2
Elektřina230V, 400V
OdpadVeřejná kanalizace
TopeníLokální elektrické
DopravaVlak, Dálnice, Silnice, MHD, Autobus
VodaVodovod
Topné tělesoPodlahové vytápění, Přímotop
Zdroj topeníPřímotop
Bezbarierový přístup

Origo partneři v Poděbradech

Popis

Dobrý den.

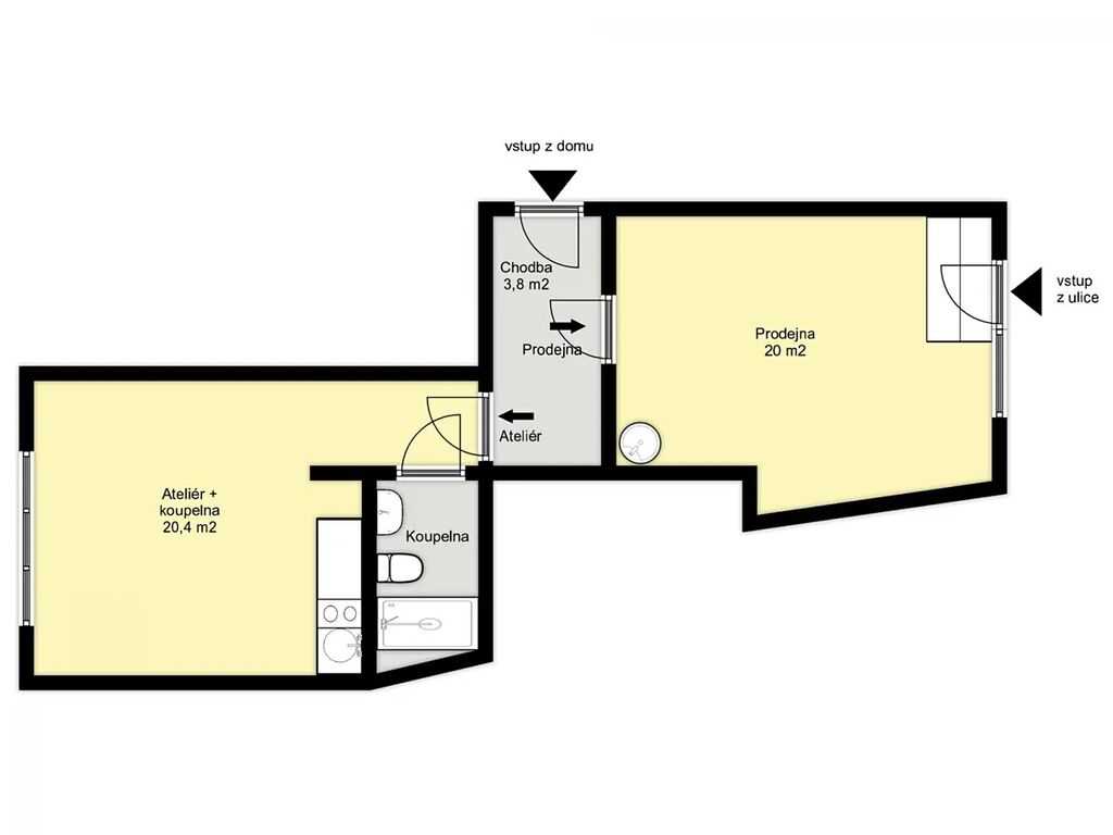
Nabízím Vám nové komerční prostory o velikosti 53 m2 na adrese Hakenova 722, Poděbrady.
Jedná s o prostory v těsné blízkosti kolonády, které byly navrženy tak, aby měly co nejširší možnost využití.

Mohou zde být kanceláře, prodejna a vzhledem k tomu, že je zde příprava na vodu a odpady, tak i kadeřnický salón.
Prostor se skládá ze dvou samostatných místností a každá z nich má své sociální zázemí a dokonce i samostatné měření elektřiny a vody.
Proto je možné tyto prostory využívat i samostatně.
Je zde plnohodnotná kuchyňská linka, sprchový kout, 2x wc a úložné prostory.
Výloha do ul. Hakenova je opatřena roletou a vstupní dveře jsou chráněny uzamykatelnou mříží.
Měsíční nájem činí 16.125 Kč a při podpisu nájemní smlouvy se skládá vratná kauce 30.000 Kč.

Makléř

Máte zájem o tuto nemovistost?

Tímto, v souladu s nařízením Evropského parlamentu a Rady (EU) 2016/679, v platném znění, prohlašuji, že mi je alespoň 16 let a uděluji tak svůj souhlas se zpracováním zadaných údajů (jméno, telefon, e-mail, ip adresa) společnosti B3 Technology, s.r.o., IČ: 07330600, se sídlem Novostavby 126/23, 435 11 Lom (správce dat), za účelem předání dotazu z tohoto formuláře Vámi vybranému inzerentovi a zpětného kontaktování mé osoby. Osobní údaje bude správce zpracovávat manuálně i automaticky přímo prostřednictvím svých zaměstnanců. Informace předané tímto formulářem budou uloženy v databázi správce maximálně po dobu 10 let. Odvolání souhlasu s uložením a zpracováním poskytnutých dat lze e-mailem na info@origo-reality.cz. V případě podezření na neoprávněné použití Vámi poskytnutých údajů máte právo předat podnět k šetření Úřadu pro ochranu osobních údajů. Více informací
Chystáte se prodat nemovitost?
Pomůžeme Vám!