Prodej bytu 3+kk, Praha - Hostivař, náměstí Přátelství, 89 m2 (ID: 1854397)

náměstí Přátelství, Praha, Hostivař

12 480 000 Kč
/za nemovitost
Hypotéka od 55 778 Kč /měs. Chci hypotéku

Parametry bytu

Adresanáměstí Přátelství, Praha, Hostivař
IDNáměstí přátelství
StavbaCihlová
Stav objektuVelmi dobrý
Patro4.
VlastnictvíOsobní
Užitná plocha89 m2
Třída energetické náročnostiC - Úsporná
Balkon
Garáž
Sklep

Origo partneři v Praze 10

Stěhovací služby

Výkup a prodej starého nábytku

Popis

- prostorné 3+kk s praktickou dispozicí
- 2 balkony, každý orientován na opačnou stranu
- garáž v ceně
- sklep v ceně

Prodám krásný a zrekonstruovaný byt 3+kk v osobním vlastnictví, v cihlovém domě, navíc s vlastním parkovacím stáním v podzemních garážích a sklepem – obojí je již zahrnuto v ceně.

Byt prošel čerstvou modernizací a zatím v něm nikdo nebydlel.
Vypadá přesně tak, jak vidíte na fotografiích – nejsou to vizualizace.

Nachází se ve 3. patře s výtahem.

Na nového majitele čeká nová kuchyňská linka na míru od českého truhláře, včetně spotřebičů (značková elektrická trouba, indukční deska, digestoř, osvětlení). Dominantou kuchyně je prostorný ostrůvek přístupný z obou stran.

Součástí rekonstrukce je:
- nové obklady z velkoformátového italského obkladu,
- nová sanita (vana, umyvadlo, toaleta),
- elektrické podlahové topení v koupelně,
- kompletní výmalba stěn,
- nová vinylová podlahová krytina,
- kuchyňská linka na míru.

Před domem lze pohodlně zaparkovat, hlavní výhodou je však vlastní parkovací stání v podzemním podlaží.
Kousek od domu se nachází veškerá občanská vybavenost – školy, školky, kavárna i supermarket Albert.

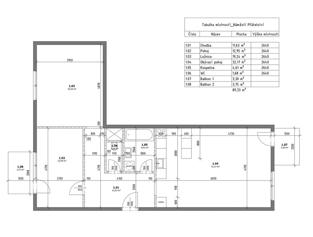
Dispozice bytu 3+kk:
- obývací pokoj s kuchyňským koutem (32,17 m²)
- ložnice (19,24 m²)
- pokoj (12,95 m²)
- vstupní chodba (11,63 m²)
- koupelna s vanou a prostorem pro pračku (4,6 m²)
- WC (1,6 m²)
- 2× balkon
- sklep (2,35 m²)

Charakteristika bytového domu:
- dům je velmi dobře spravován SVJ s důrazem na klidné a bezpečné bydlení
- dům má výtah
- nízké provozní náklady

Budu se těšit na osobní setkání při prohlídce.
Neváhejte mi také zavolat nebo napsat s jakýmkoli doplňujícím dotazem.

Byt prodávám jako přímý majitel, takže neplatíte žádnou provizi realitní kanceláři.

Makléř

Máte zájem o tento byt?

Tímto, v souladu s nařízením Evropského parlamentu a Rady (EU) 2016/679, v platném znění, prohlašuji, že mi je alespoň 16 let a uděluji tak svůj souhlas se zpracováním zadaných údajů (jméno, telefon, e-mail, ip adresa) společnosti B3 Technology, s.r.o., IČ: 07330600, se sídlem Novostavby 126/23, 435 11 Lom (správce dat), za účelem předání dotazu z tohoto formuláře Vámi vybranému inzerentovi a zpětného kontaktování mé osoby. Osobní údaje bude správce zpracovávat manuálně i automaticky přímo prostřednictvím svých zaměstnanců. Informace předané tímto formulářem budou uloženy v databázi správce maximálně po dobu 10 let. Odvolání souhlasu s uložením a zpracováním poskytnutých dat lze e-mailem na info@origo-reality.cz. V případě podezření na neoprávněné použití Vámi poskytnutých údajů máte právo předat podnět k šetření Úřadu pro ochranu osobních údajů. Více informací
Chystáte se prodat nemovitost?
Pomůžeme Vám!

Přihlášení k odběru

Nenechte si ujít nejnovější nabídky prodeje bytů 3+kk v Praze 10.