Prodej rodinného domu, Vrchlabí, 429 m2 (ID: 1851728)

Hořejší Vrchlabí

25 000 000 Kč
/za nemovitost
Hypotéka od 111 735 Kč /měs. Chci hypotéku

Parametry domu

AdresaHořejší Vrchlabí
IDOP-25-00018
StavbaSmíšená
Stav objektuVelmi dobrý
VybavenoAno
Druh objektuSamostatný
Lokalita objektuPolosamota
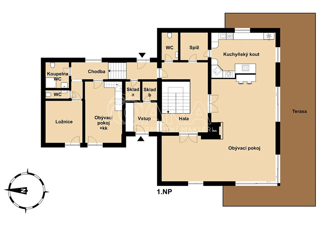
Užitná plocha429 m2
Zastavěná plocha314 m2
Podlahová plocha568 m2
Plocha pozemku4087 m2
Plocha zahrady3773 m2
Třída energetické náročnostiG - Mimořádně nehospodárná
Elektřina230V
OdpadVeřejná kanalizace
KomunikaceZpevněná
TelekomunikaceInternet
Topné tělesoKrbová kamna, Kotel na tuhá paliva
Zdroj topeníKrbová kamna
Zdroj teplé vodyKotel na tuhá paliva
Garáž

Origo partneři v Vrchlabí

Popis

Nabízíme ke koupi exkluzivní horskou rezidenci ve vyhledávané lokalitě Vrchlabí, přímo mezi skiareály Bubákov a Herlíkovice. Dům o dispozici 7+kk je doplněn o samostatný apartmán 2+1 a nabízí celkovou užitnou plochu 568 m². Nachází se na prostorném pozemku o rozloze 4 087 m² a je nabízen kompletně vybavený, připravený k okamžitému užívání. Co na této nemovitosti oceníte nejvíce je naprosté soukromí, klid a nádherné výhledy.

Interiér je řešen velkoryse s důrazem na komfort a prostor, k dispozici je vnitřní i venkovní wellness zóna se saunou a vířivkou, prostorná terasa s posezením, venkovní ohniště a praktické zázemí šatny a lyžárny.

Parkování je možné přímo na pozemku. V zimní sezóně je smluvně zajištěno parkování níže pod rezidencí naproti penzionu Ranč (2 parkovací místa) a k dispozici na residenci je i sněžný skútr, který je součástí prodeje.

Vrchlabí, často nazývané branou do Krkonoš, nabízí ideální kombinaci městské občanské vybavenosti a přímého kontaktu s přírodou. V zimě oceníte blízkost sjezdovek, v létě zase nespočet turistických a cyklistických tras v okolí.

Pro více informací nebo domluvu prohlídky nás neváhejte kontaktovat.

Makléř

Máte zájem o tento dům?

Tímto, v souladu s nařízením Evropského parlamentu a Rady (EU) 2016/679, v platném znění, prohlašuji, že mi je alespoň 16 let a uděluji tak svůj souhlas se zpracováním zadaných údajů (jméno, telefon, e-mail, ip adresa) společnosti B3 Technology, s.r.o., IČ: 07330600, se sídlem Novostavby 126/23, 435 11 Lom (správce dat), za účelem předání dotazu z tohoto formuláře Vámi vybranému inzerentovi a zpětného kontaktování mé osoby. Osobní údaje bude správce zpracovávat manuálně i automaticky přímo prostřednictvím svých zaměstnanců. Informace předané tímto formulářem budou uloženy v databázi správce maximálně po dobu 10 let. Odvolání souhlasu s uložením a zpracováním poskytnutých dat lze e-mailem na info@origo-reality.cz. V případě podezření na neoprávněné použití Vámi poskytnutých údajů máte právo předat podnět k šetření Úřadu pro ochranu osobních údajů. Více informací
Chystáte se prodat nemovitost?
Pomůžeme Vám!

Přihlášení k odběru

Nenechte si ujít nejnovější nabídky prodeje rodinných domů v Vrchlabí.