Pronájem bytu 3+kk, Praha - Nové Město, Václavské náměstí, 70 m2 (ID: 1850008)

Václavské náměstí, Praha, Nové Město

34 900 Kč
/za měsíc
Poplatky za služby a energie se hradí zvlášť
Získejte výhodnou HYPOTÉKU Chci hypotéku

Parametry bytu

AdresaVáclavské náměstí, Praha, Nové Město
ID953963
StavbaCihlová
Stav objektuPo rekonstrukci
Patro2.
VybavenoČástečně
VlastnictvíOsobní
Užitná plocha70 m2
Podlahová plocha69 m2
Třída energetické náročnostiG - Mimořádně nehospodárná
PlynPlynovod
OdpadVeřejná kanalizace
DopravaSilnice, MHD
VodaVodovod
Topné tělesoPodlahové vytápění
Garáž
Sklep
Výtah

Origo partneři v Praze 1

Stěhovací služby

Výkup a prodej starého nábytku

Popis

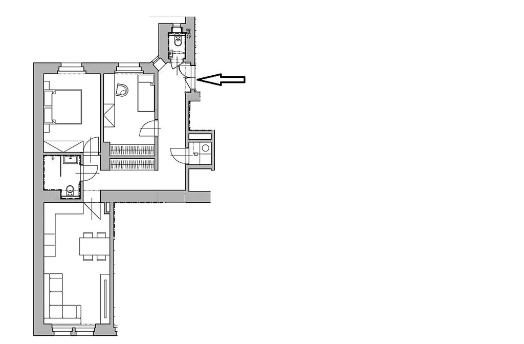
Stylový, nově zrekonstruovaný byt 3+kk ( 2 ložnice, 1 koupelna), o celkové ploše 69,84m2, je situovaný ve 2.NP s výtahem, v budově v klidném vnitrobloku, která se nachází se ve vyhledávané lokalitě v Praze 1, na Václavském náměstí.

Interiér bytu je částečně zařízený a dispozičně nabízí prostornou chodbu (17,69m2) s vestavěnou šatní skříní, světlý obývací pokoj (22,17m2) spojený s kuchyňskou částí s novou kuchyňskou linkou vybavenou moderními spotřebiči ( varná deska, trouba, vestavěná lednice s mrazákem a myčka). Dále byt nabízí dvě samostatné ložnice (12,21m2; 11,08m2) a moderní koupelnu (4,02m2) s komfortním sprchovým koutem a toaletou, další samostatnou toaletu a komoru (1,40m2). Součást vybavení: vestavěné šatní skříně také v ložnicích. Každá místnost má samostatný vstup z chodby. Možnost dodat pračku/sušičku. Podlahy: vinylová a keramická dlažba. Topení v bytě: podlahové. K bytu náleží sklep. K dispozici je i kolárna a kočárkárna.

Interiér bytu poskytuje přívětivou atmosféru, která ocení především ti, kteří hledají pohodlí ve středu městského ruchu. Díky velkým oknům je zde dostatek denního světla. Celkový stav bytu je po rekonstrukci, což zaručuje moderní vzhled a funkčnost vybavení. Poloha bytu je ideální pro ty, kteří hledají život v centru metropole. Václavské náměstí nabízí množství možností kulturního vyžití, obchodů, restaurací a kaváren. Z hlediska dopravní dostupnosti je lokalita naprosto ideální, v blízkosti se nachází stanice metra i množství tramvajových a autobusových linek, které vám umožní pohodlný přístup do různých částí Prahy.

Zálohové poplatky za služby a energie (včetně topení) činí 6.500, Kč/měsíčně. Elektřinu za byt hradí nájemce přímo dodavateli. Vratná kauce 2 platby nájmů. Provize RK.
Možnost pronájmu parkovacího stání v garážích, v blízkém okolí formou zakladače za poplatek, dle volných kapacit.
Pozn.: použité jsou ilustrační fotky identického bytu v budově. Plán odpovídá bytu.

Byt nelze pronajímat na krátkodobý pronájem, ani za účelem Airbnb, Booking, nebo dalším podpronajímaním.

Makléř

Máte zájem o tento byt?

Tímto, v souladu s nařízením Evropského parlamentu a Rady (EU) 2016/679, v platném znění, prohlašuji, že mi je alespoň 16 let a uděluji tak svůj souhlas se zpracováním zadaných údajů (jméno, telefon, e-mail, ip adresa) společnosti B3 Technology, s.r.o., IČ: 07330600, se sídlem Novostavby 126/23, 435 11 Lom (správce dat), za účelem předání dotazu z tohoto formuláře Vámi vybranému inzerentovi a zpětného kontaktování mé osoby. Osobní údaje bude správce zpracovávat manuálně i automaticky přímo prostřednictvím svých zaměstnanců. Informace předané tímto formulářem budou uloženy v databázi správce maximálně po dobu 10 let. Odvolání souhlasu s uložením a zpracováním poskytnutých dat lze e-mailem na info@origo-reality.cz. V případě podezření na neoprávněné použití Vámi poskytnutých údajů máte právo předat podnět k šetření Úřadu pro ochranu osobních údajů. Více informací
Chystáte se prodat nemovitost?
Pomůžeme Vám!