Prodej bytu 3+1, Hostouň, 95 m2 (ID: 1849945)
Hostouň
/za nemovitost
Parametry bytu
| Adresa | Hostouň | 
|---|---|
| ID | 442522 | 
| Stavba | Cihlová | 
| Stav objektu | Velmi dobrý | 
| Patro | 2. z 2 | 
| Vlastnictví | Osobní | 
| Užitná plocha | 95 m2 | 
| Podlahová plocha | 70 m2 | 
| Třída energetické náročnosti | G - Mimořádně nehospodárná | 
| Odpad | Veřejná kanalizace | 
| Topení | Ústřední elektrické | 
| Komunikace | Asfaltová | 
| Topné těleso | Radiátory | 
| Zdroj topení | Elektrokotel | 
| Sklep | |
| Bezbarierový přístup | 
Popis
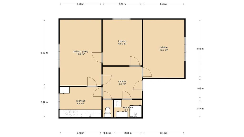
Nabízím k prodeji bytovou jednotku o podlahové ploše 70 m2 v cihlovém domě na velice klidném místě v obci Hostouň u Prahy. 
Byt se nachází v prvním patře bytového domu s pouze čtyřmi bytovými jednotkami a prošel kompletní rekonstrukcí. Má nová plastová okna, omítky, interiérové dveře, kuchyňskou linku, koupelnu se sprchovým koutem. Dispozice sestává z velkého obývacího pokoje o výměře 19 m2, kuchyně o výměře 9 m2, dvou ložnic (13 m2, 17 m2), chodby s velkou vestavěnou skříní 9 m2, koupelny 3,5 m2 a toalety se samotným vstupem. V chodbě je umístěn nový elektrokotel, který vytápí byt.
K jednotce náleží dva velké sklepy (12 m2 a 13 m2). Na patře je velká lodžie společná pro dva byty.  
Pozemek pod domem je aktuálně v pronájmu, odkup do osobního vlastnictví je v řešení. Financování lze řešit hypotečním úvěrem.
 
V obci Hostouň je základní občanská vybavenost a skvělý dojezd do hlavního města, mateřská školka je přímo pod okny. Pozemek kolem domu se vzrostlými stromy je užíván vlastníky. Je zde možnost venkovního posezení, zahrádky i pohodlného parkování. 
V případě dalších dotazů mě neváhejte kontaktovat.
Přihlášení k odběru
Nenechte si ujít nejnovější nabídky prodeje bytů 3+1 v Hostouni (okr. Kladno).
 
                                                                                     
                                                                                     
                                                                                     
                                                                                     
                                                                                     
                                                                                     
                                                                                     
                                                                                     
                                                                                     
                                                                                     
                                                                                     
                                                                                     
                                                                                     
                                                                                     
                                                                                     
                                                                                     
                                                                                     
                                                                                     
                                                                                     
                         
         
         
         
         
         
        