Prodej ubytování, Svratka, Libušina, 135 m2 (ID: 1849408)

Libušina, Svratka

1 700 000 Kč
/za nemovitost
včetně právních nákladů a provize
Hypotéka od 7 598 Kč /měs. Chci hypotéku

Parametry nemovitosti

AdresaLibušina, Svratka
StavbaSmíšená
Stav objektuPřed rekonstrukcí
Užitná plocha135 m2
Elektřina230V
PlynPlynovod
OdpadVeřejná kanalizace
KomunikaceAsfaltová
VodaMístní zdroj vody, Vodovod
Parkování

Origo partneři v Svratce

Popis

Hledáte investici? Nabízíme objekt s potenciálem v městě Svratka, ul. Libušina,
Vhodné na ubytování, kanceláře, provozovnu služeb, trvalé bydlení, spojení bydlení s podnikáním, rekreaci.

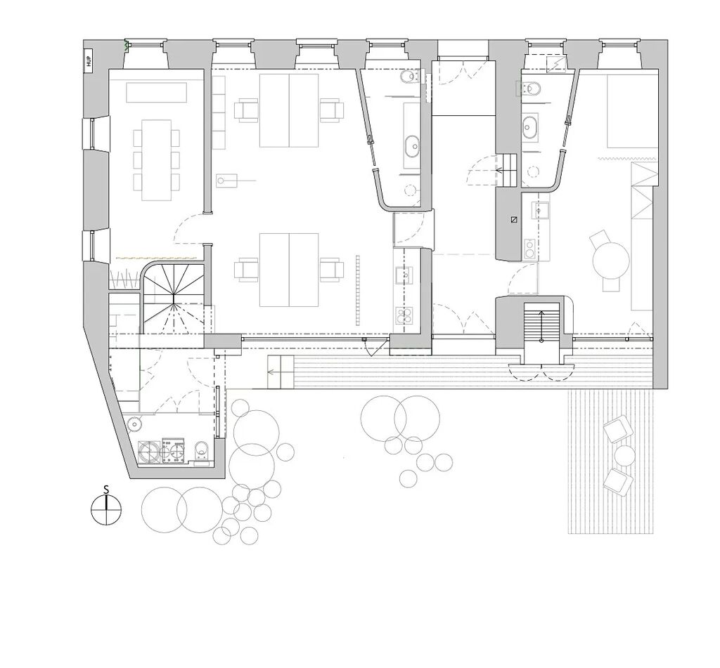
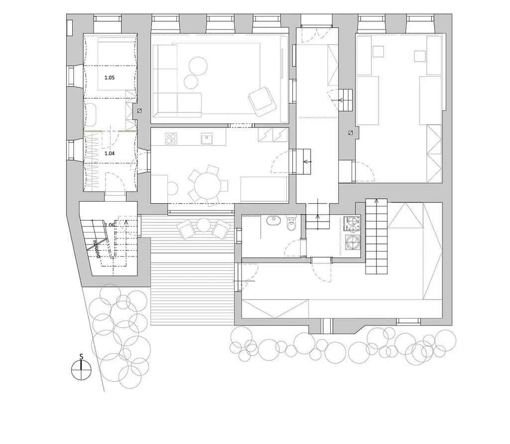
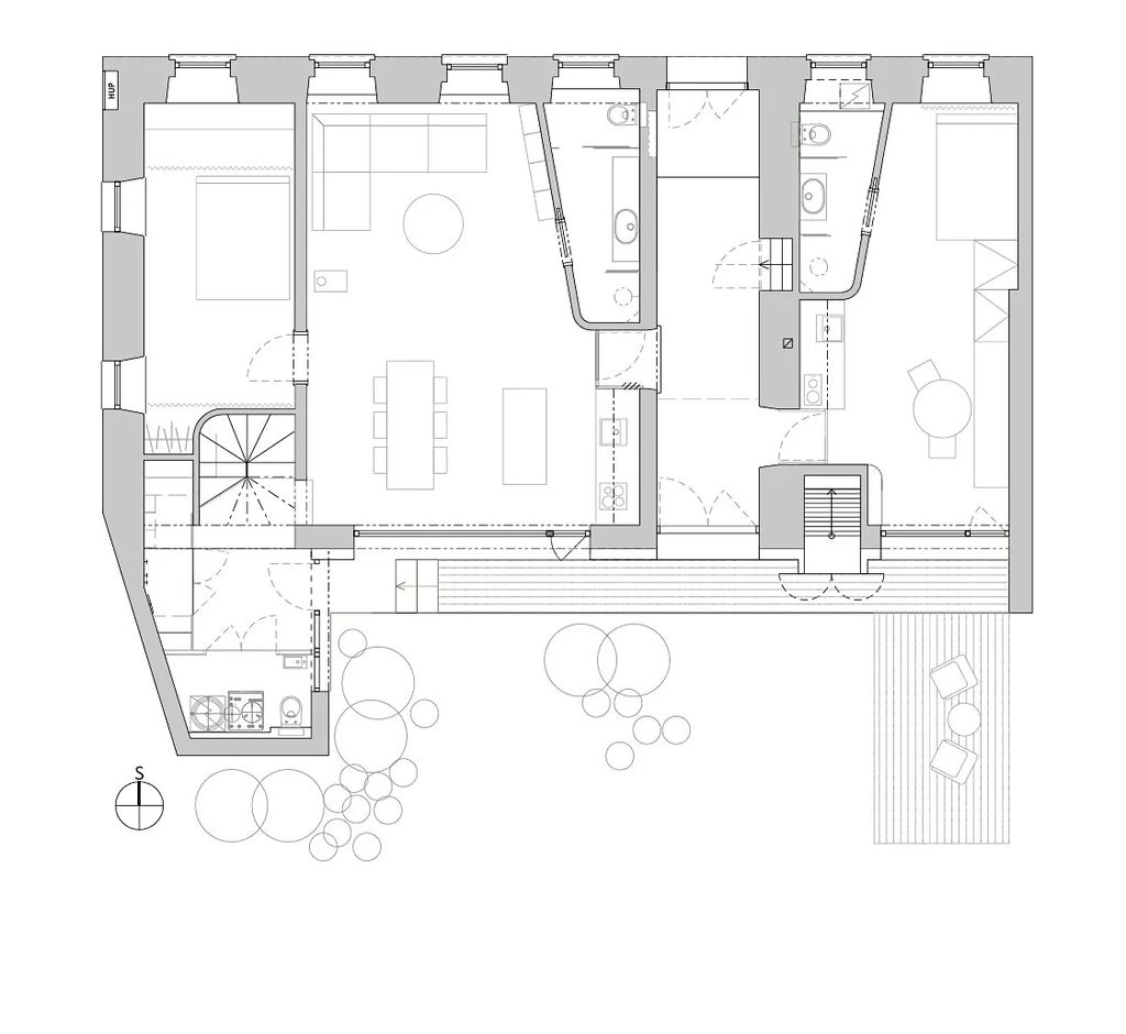
Zastavěná plocha 185m2, plocha pozemku 335m2, na pozemek, zahradu orientovanou na Jih je vjezd a vstup z ulice Dopravní.

Dům je převážně z kamenného zdiva, je připojen na všechny inženýrské sítě: elektřina, plyn, voda, kanalizace (splašková a dešťová), studna ve sklepě. Dům lze nenáročnou rekonstrukcí zprovoznit.

Stávající dispozice 4+1, vstupní chodba 13m2, pokoje 22 + 23 + 9, podkrovní pokoj 12 m2, kuchyně 18m2, chodba 6+15m2, koupelna 4m2, WC 2m2, dílna 10m2, sklep 9m2, na zahradě kůlna.

Možné využití domu: pronájem apartmánů, sídlo firmy, rodinný dům, rekreační chalupa.

Je vydáno platné stavební povolení na stavební úpravy domu pro podnikatelské účely (kanceláře, sklad, studio) s parkovacími místy. Dále je zpracován návrh několika variant účelu využití: RD s kanceláří/provozovnou, kanceláře s možností přespání/bydlení, apartmány k pronájmu. Projektová dokumentace v RK.
K dispozici a prohlídkám ihned

Makléř

Máte zájem o tuto nemovistost?

Tímto, v souladu s nařízením Evropského parlamentu a Rady (EU) 2016/679, v platném znění, prohlašuji, že mi je alespoň 16 let a uděluji tak svůj souhlas se zpracováním zadaných údajů (jméno, telefon, e-mail, ip adresa) společnosti B3 Technology, s.r.o., IČ: 07330600, se sídlem Novostavby 126/23, 435 11 Lom (správce dat), za účelem předání dotazu z tohoto formuláře Vámi vybranému inzerentovi a zpětného kontaktování mé osoby. Osobní údaje bude správce zpracovávat manuálně i automaticky přímo prostřednictvím svých zaměstnanců. Informace předané tímto formulářem budou uloženy v databázi správce maximálně po dobu 10 let. Odvolání souhlasu s uložením a zpracováním poskytnutých dat lze e-mailem na info@origo-reality.cz. V případě podezření na neoprávněné použití Vámi poskytnutých údajů máte právo předat podnět k šetření Úřadu pro ochranu osobních údajů. Více informací
Chystáte se prodat nemovitost?
Pomůžeme Vám!

Přihlášení k odběru

Nenechte si ujít nejnovější nabídky prodeje ubytování v Svratce.