Prodej bytu 3+kk, Teplice, Vrchlického, 57 m2

Vrchlického, Teplice

4 200 000 Kč
/za nemovitost
Hypotéka od 18 771 Kč /měs. Chci hypotéku

Parametry bytu

AdresaVrchlického, Teplice
IDN1557
StavbaCihlová
Stav objektuDobrý
Patro2. z 4
VybavenoČástečně
Typ objektuPatrový
Lokalita objektuCentrum obce
VlastnictvíOsobní
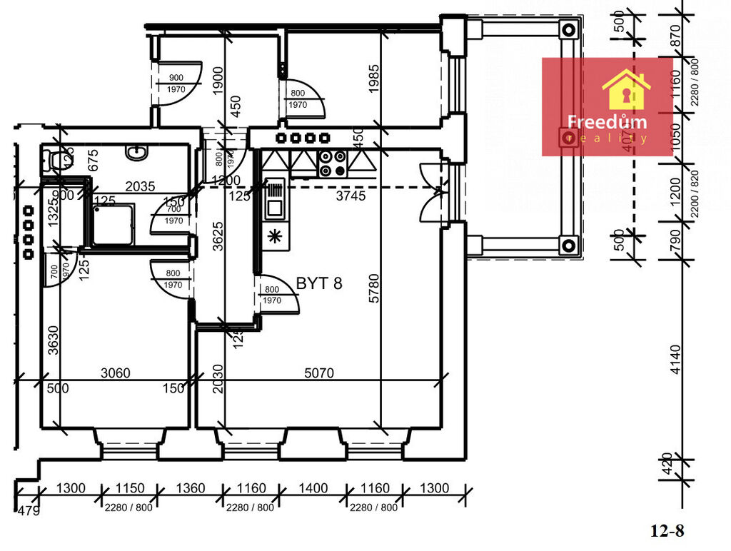
Užitná plocha57 m2
Podlahová plocha62 m2
Třída energetické náročnostiF - Velmi nehospodárná
Ukazatel energetické náročnosti239 kWh/m2 za rok
Elektřina230V
TopeníLokální elektrické
DopravaVlak, Dálnice, Silnice, MHD, Autobus
VodaVodovod
Sklep
Terasa
Výtah
Bezbarierový přístup
Parkování

Origo partneři v Teplicích

Okna a dveře

Rekonstrukce

Zámečnické práce

Popis

Prostorný byt s terasou, osobní vlastnictví. Vila se nachází v lázeňské části města Teplice, v blízkosti parku, zdravotního střediska a dětského hřiště. Možnost parkovaní ve dvoře, společná zahrada, místo pro grilovaní a odpočinek. Dopravní dostupnost jak pěšky, tak i MHD, blízko vlakové nádraží. Byt je bezbariérový. Sklep o velikosti 4.38 m2 náleží k bytu. Financování zajistíme. Voláte přímo makléři.

Makléř

Máte zájem o tento byt?

Tímto, v souladu s nařízením Evropského parlamentu a Rady (EU) 2016/679, v platném znění, prohlašuji, že mi je alespoň 16 let a uděluji tak svůj souhlas se zpracováním zadaných údajů (jméno, telefon, e-mail, ip adresa) společnosti B3 Technology, s.r.o., IČ: 07330600, se sídlem Novostavby 126/23, 435 11 Lom (správce dat), za účelem předání dotazu z tohoto formuláře Vámi vybranému inzerentovi a zpětného kontaktování mé osoby. Osobní údaje bude správce zpracovávat manuálně i automaticky přímo prostřednictvím svých zaměstnanců. Informace předané tímto formulářem budou uloženy v databázi správce maximálně po dobu 10 let. Odvolání souhlasu s uložením a zpracováním poskytnutých dat lze e-mailem na info@origo-reality.cz. V případě podezření na neoprávněné použití Vámi poskytnutých údajů máte právo předat podnět k šetření Úřadu pro ochranu osobních údajů. Více informací
Chystáte se prodat nemovitost?
Pomůžeme Vám!

Přihlášení k odběru

Nenechte si ujít nejnovější nabídky prodeje bytů 3+kk v Teplicích.