Prodej bytu 3+kk, Náchod, Bílá, 70 m2

Bílá, Náchod, Staré Město nad Metují

4 560 000 Kč
/za nemovitost
včetně DPH, včetně provize
Hypotéka od 20 380 Kč /měs. Chci hypotéku

Parametry bytu

AdresaBílá, Náchod, Staré Město nad Metují
ID00519
StavbaPanelová
Stav objektuPo rekonstrukci
Patro5.
VybavenoAno
Lokalita objektuKlidná část obce
VlastnictvíDružstevní
Užitná plocha70 m2
Podlahová plocha79 m2
Třída energetické náročnostiB - Velmi úsporná
Ukazatel energetické náročnosti60 kWh/m2 za rok
Elektřina230V
OdpadVeřejná kanalizace
KomunikaceAsfaltová
TelekomunikaceInternet
DopravaVlak, Silnice, Autobus
VodaVodovod
Zdroj topeníÚstřední dálkové
Zdroj teplé vodyJiné
Balkon
Sklep
Výtah
Bezbarierový přístup
Převod do OV

Origo partneři v Náchodě

Popis

Dobrý den,
pokud hledáte moderní a světlé bydlení v Náchodě, mám pro vás byt, který vás zaujme hned na první pohled. Místo, kde se spojuje funkčnost, komfort a příjemná atmosféra domova.
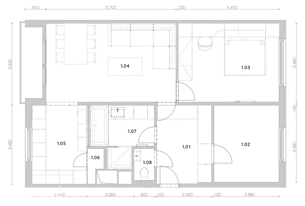
Byt o dispozici 3+kk se nachází v 5. nadzemním podlaží panelového domu s výtahem, který prošel kompletní rekonstrukcí v roce 2019. Tady je opravdu vše promyšlené do detailu – od vestavěných skříní, skryté komory až po elegantní koupelnu, kde najdete vanu i sprchový kout.
Obývací pokoj je propojený s moderní, plně vybavenou kuchyní, která nabízí dostatek prostoru i přirozeného světla.
Z obývací části je vstup na balkon (2,3 m²) s krásným výhledem do okolí.
Ložnice má prakticky řešený pracovní kout, dětský pokoj působí útulně a chodba poskytuje množství úložného prostoru. Je zde kombinace vinylové podlahy a dlažby.
K bytu náleží také sklepní kóje v suterénu domu. Ten je kompletně zateplený, udržovaný a po výměně původních oken za plastová.

Užitná plocha činí 70 m². Prodej bytu včetně vybavení, kam se stačí pouze nastěhovat.
Dispozici místností najdete na přiloženém půdorysu ve fotogalerii.
Energetická náročnost budovy: B – velmi úsporná
Družstevní vlastnictví bez možnosti převodu do OV.
Vytápění a ohřev vody jsou dálkové.

Pokud hledáte pohodlné a moderní bydlení s výbornou dostupností skvěle občansky vybaveného Náchoda, a kde nechcete už nic víc řešit, rád vám byt osobně představím.
Těším se na viděnou.

Makléř

Máte zájem o tento byt?

Tímto, v souladu s nařízením Evropského parlamentu a Rady (EU) 2016/679, v platném znění, prohlašuji, že mi je alespoň 16 let a uděluji tak svůj souhlas se zpracováním zadaných údajů (jméno, telefon, e-mail, ip adresa) společnosti B3 Technology, s.r.o., IČ: 07330600, se sídlem Novostavby 126/23, 435 11 Lom (správce dat), za účelem předání dotazu z tohoto formuláře Vámi vybranému inzerentovi a zpětného kontaktování mé osoby. Osobní údaje bude správce zpracovávat manuálně i automaticky přímo prostřednictvím svých zaměstnanců. Informace předané tímto formulářem budou uloženy v databázi správce maximálně po dobu 10 let. Odvolání souhlasu s uložením a zpracováním poskytnutých dat lze e-mailem na info@origo-reality.cz. V případě podezření na neoprávněné použití Vámi poskytnutých údajů máte právo předat podnět k šetření Úřadu pro ochranu osobních údajů. Více informací
Chystáte se prodat nemovitost?
Pomůžeme Vám!

Přihlášení k odběru

Nenechte si ujít nejnovější nabídky prodeje bytů 3+kk v Náchodě.