Prodej bytu 3+kk, Praha - Holešovice, Poupětova, 63 m2

Poupětova, Praha, Holešovice

11 500 000 Kč
/za nemovitost
včetně všech služeb RK
Hypotéka od 51 398 Kč /měs. Chci hypotéku

Parametry bytu

AdresaPoupětova, Praha, Holešovice
ID1889
StavbaCihlová
Stav objektuVelmi dobrý
Patro2. z 9
VybavenoČástečně
VlastnictvíOsobní
Užitná plocha63 m2
Třída energetické náročnostiC - Úsporná
Elektřina230V
PlynPlynovod
OdpadVeřejná kanalizace
KomunikaceAsfaltová
TelekomunikaceInternet
DopravaMHD
VodaVodovod
Topné tělesoRadiátory
Zdroj topeníCentrální dálkové
Garáž
Výtah
Bezbarierový přístup

Origo partneři v Praze 7

Stěhovací služby

Výkup a prodej starého nábytku

Popis

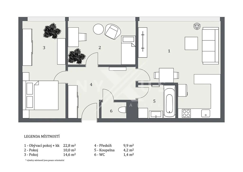
Nabízíme k prodeji světlý a prostorný byt 3+kk v prvním patře moderního domu z roku 2007, který je ve výborném stavu a disponuje garážovým stáním přímo v suterénu domu.
Byt se nachází v klidné ulici Poupětova, jen pár minut chůze od parku Stromovka a Vltavské náplavky. Díky blízkosti tramvajové zastávky a stanice metra C – Vltavská je centrum města skvěle dostupné během několika minut.

Byt nabízí praktické uspořádání:
• obývací pokoj s kuchyňským koutem, ideální pro rodinné chvíle i posezení s přáteli,
• dvě samostatné ložnice,
• koupelnu s vanou,
• samostatnou toaletu,
• prostornou vstupní chodbu s místem pro vestavěné úložné prostory.

Dům je moderní a pečlivě udržovaný, s výtahem a vstupem na čip.

Proč právě tento byt:
• dům z roku 2007 ve velmi dobrém stavu,
• garážové stání v ceně,
• klidná lokalita v širším centru Prahy,
• výborná dopravní dostupnost,
• chůzí dostupný park Stromovka i nábřeží Vltavy.

Hledáte pohodlné bydlení v moderním domě a atraktivní lokalitě? Zavolejte a domluvte si prohlídku.

Nemovitost je v osobním vlastnictví a lze ji tedy financovat hypotečním úvěrem, který Vám zdarma pomůžeme vyřídit za nejvýhodnějších podmínek na trhu.

Průkaz energetické náročnosti C.

Makléř

Máte zájem o tento byt?

Tímto, v souladu s nařízením Evropského parlamentu a Rady (EU) 2016/679, v platném znění, prohlašuji, že mi je alespoň 16 let a uděluji tak svůj souhlas se zpracováním zadaných údajů (jméno, telefon, e-mail, ip adresa) společnosti B3 Technology, s.r.o., IČ: 07330600, se sídlem Novostavby 126/23, 435 11 Lom (správce dat), za účelem předání dotazu z tohoto formuláře Vámi vybranému inzerentovi a zpětného kontaktování mé osoby. Osobní údaje bude správce zpracovávat manuálně i automaticky přímo prostřednictvím svých zaměstnanců. Informace předané tímto formulářem budou uloženy v databázi správce maximálně po dobu 10 let. Odvolání souhlasu s uložením a zpracováním poskytnutých dat lze e-mailem na info@origo-reality.cz. V případě podezření na neoprávněné použití Vámi poskytnutých údajů máte právo předat podnět k šetření Úřadu pro ochranu osobních údajů. Více informací
Chystáte se prodat nemovitost?
Pomůžeme Vám!

Přihlášení k odběru

Nenechte si ujít nejnovější nabídky prodeje bytů 3+kk v Praze 7.