Prodej bytu 4+kk, Třeboň, 85 m2

Třeboň II

6 890 000 Kč
/za nemovitost
Vč.provize RK
Hypotéka od 30 794 Kč /měs. Chci hypotéku

Parametry bytu

AdresaTřeboň II
ID279/VL
StavbaCihlová
Stav objektuVelmi dobrý
Patro3. z 4
VybavenoČástečně
VlastnictvíOsobní
Užitná plocha85 m2
Podlahová plocha85 m2
Třída energetické náročnostiD - Méně úsporná
Elektřina230V, 400V
PlynPlynovod
OdpadVeřejná kanalizace
TopeníLokální plynové
KomunikaceAsfaltová
DopravaVlak, Dálnice, Silnice, Autobus
VodaVodovod
Topné tělesoRadiátory
Zdroj topeníPlynový kondenzační kotel
Zdroj teplé vodyPlynový kondenzační kotel
Balkon
Sklep
Bezbarierový přístup

Origo partneři v Třeboni

Popis

Nabízíme k prodeji prostorný dvougenerační byt o výměře 85 m, situovaný ve vyhledávané části Třeboně v blízkosti lázní Aurora, rybníka Svět, lázeňských parků, pláží i vyhlášených restaurací (Šupina a Šupinka), Schwarzenberské hrobky a dalších atraktivních míst.

Lokalita nabízí kompletní občanskou vybavenost, v docházkové vzdálenosti najdete mateřskou i základní školu, obchody, lékárnu, restaurace, dětská hřiště i zastávku MHD. Historické centrum města s lázeňskou atmosférou a cyklostezkami je vzdáleno jen pár minut chůze.

Byt je umístěn ve 2. patře komorního třípodlažního cihlového domu s celkem 10 bytovými jednotkami. Budova je zateplena 10 cm izolací, vybavena plastovými okny se speciálním těsněním a celkově odpovídá vysokým energetickým standardům.

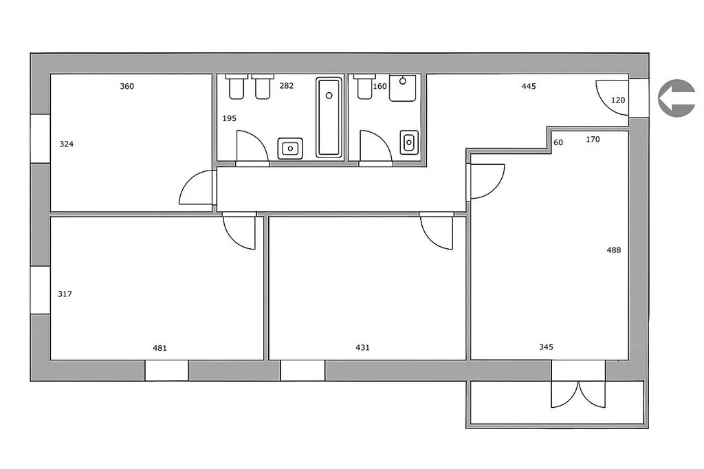
Dispozice bytu:

- 4 pokoje rozdělené do dvou částí,
- 2 kuchyňské kouty (každý plně vybaven),
- 2 koupelny (jedna s vanou, WC, bidetem a koupelnovou skříňkou; druhá se sprchovým koutem a WC),
- prostorná vstupní chodba s místem pro úložné skříně,
- velký balkón.

Každá bytová část je oddělená prosklenými dveřmi, což umožňuje využití bytu jako dvougeneračního nebo k pronajímání (např. krátkodobé ubytování v lázeňském městě, ale i dlouhodobé).

Vybavení:

- kuchyňské linky se spotřebiči: lednice s mrazákem, indukční varná deska, horkovzdušná trouba, digestoř, myčka,
- vytápění a ohřev vody zajišťuje kombinovaný plynový kondenzační kotel.

Parkování je možné před domem i v jeho bezprostředním okolí parkovacích míst je dostatek.

Tato nemovitost představuje skvělou investiční příležitost díky své poloze, dispozici i možnosti okamžitého pronájmu. Zároveň je ideální pro větší rodinu či dvougenerační bydlení v klidné a krásné lokalitě obklopené přírodou.

Nízké náklady na bydlení, poplatky vč.fondu oprav činí 1130,- Kč /měs.

Poznámka: Některé z použitých fotografií jsou vizualizace, které slouží k ilustraci možného uspořádání a vybavení interiéru.

Makléř

Máte zájem o tento byt?

Tímto, v souladu s nařízením Evropského parlamentu a Rady (EU) 2016/679, v platném znění, prohlašuji, že mi je alespoň 16 let a uděluji tak svůj souhlas se zpracováním zadaných údajů (jméno, telefon, e-mail, ip adresa) společnosti B3 Technology, s.r.o., IČ: 07330600, se sídlem Novostavby 126/23, 435 11 Lom (správce dat), za účelem předání dotazu z tohoto formuláře Vámi vybranému inzerentovi a zpětného kontaktování mé osoby. Osobní údaje bude správce zpracovávat manuálně i automaticky přímo prostřednictvím svých zaměstnanců. Informace předané tímto formulářem budou uloženy v databázi správce maximálně po dobu 10 let. Odvolání souhlasu s uložením a zpracováním poskytnutých dat lze e-mailem na info@origo-reality.cz. V případě podezření na neoprávněné použití Vámi poskytnutých údajů máte právo předat podnět k šetření Úřadu pro ochranu osobních údajů. Více informací
Chystáte se prodat nemovitost?
Pomůžeme Vám!

Přihlášení k odběru

Nenechte si ujít nejnovější nabídky prodeje bytů 4+kk v Třeboni.