Prodej komerčního pozemku, Tišnov, 7348 m2 (ID: 1839768)

Tišnov

Cena na vyžádání
/za nemovitost
Získejte výhodnou HYPOTÉKU Chci hypotéku

Parametry pozemku

AdresaTišnov
Plocha pozemku7348 m2

Origo partneři v Tišnově

Popis

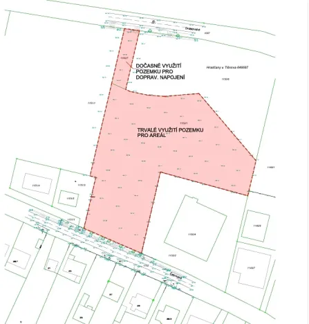
Předmětem prodeje jsou pozemky o celkové rozloze 7.348 m², určené dle územního plánu pro výstavbu výrobních a skladovacích hal. Nemovitost se nachází v obci Hradčany u Brna, v Jihomoravském kraji, v blízkosti města Tišnov. Jedná se o strategickou lokalitu s výbornou dopravní dostupností a plánovaným obchvatem, který dále zlepší přístup do oblasti.

Pozemky jsou ideální pro výstavbu lehké průmyslové výroby nebo skladovacích prostor. V rámci projektu je již navržena výstavba tří hal o celkové čisté podlahové ploše 2.990 m². Územní plán umožňuje širokou škálu využití, včetně lehké výroby, skladování, administrativních staveb, parkovacích ploch a doplňkové zeleně.

Velkou výhodou je možnost napojení na místní komunikační síť a veřejnou technickou infrastrukturu, což významně usnadňuje realizaci nového záměru. Lokalita nabízí také klidné prostředí s rekreačními možnostmi, což přispívá k celkové atraktivitě této nabídky.

Makléř

Máte zájem o tento pozemek?

Tímto, v souladu s nařízením Evropského parlamentu a Rady (EU) 2016/679, v platném znění, prohlašuji, že mi je alespoň 16 let a uděluji tak svůj souhlas se zpracováním zadaných údajů (jméno, telefon, e-mail, ip adresa) společnosti B3 Technology, s.r.o., IČ: 07330600, se sídlem Novostavby 126/23, 435 11 Lom (správce dat), za účelem předání dotazu z tohoto formuláře Vámi vybranému inzerentovi a zpětného kontaktování mé osoby. Osobní údaje bude správce zpracovávat manuálně i automaticky přímo prostřednictvím svých zaměstnanců. Informace předané tímto formulářem budou uloženy v databázi správce maximálně po dobu 10 let. Odvolání souhlasu s uložením a zpracováním poskytnutých dat lze e-mailem na info@origo-reality.cz. V případě podezření na neoprávněné použití Vámi poskytnutých údajů máte právo předat podnět k šetření Úřadu pro ochranu osobních údajů. Více informací
Chystáte se prodat nemovitost?
Pomůžeme Vám!

Přihlášení k odběru

Nenechte si ujít nejnovější nabídky prodeje komerčních pozemků v Tišnově.