Prodej bytu 4+kk, Praha - Smíchov, U Santošky, 81 m2 (ID: 1839234)

U Santošky, Praha, Smíchov

8 990 000 Kč
/za nemovitost
včetně provize, včetně právního servisu
Hypotéka od 40 180 Kč /měs. Chci hypotéku

Parametry bytu

AdresaU Santošky, Praha, Smíchov
ID28059-1
StavbaCihlová
Stav objektuDobrý
Patro1. z 7
VybavenoAno
Lokalita objektuCentrum obce
VlastnictvíOsobní
Užitná plocha81 m2
Třída energetické náročnostiG - Mimořádně nehospodárná
Elektřina230V
PlynPlynovod
OdpadVeřejná kanalizace
KomunikaceAsfaltová
DopravaSilnice, MHD, Autobus
VodaVodovod
Topné tělesoRadiátory
Zdroj topeníPlynový kotel
Zdroj teplé vodyPlynový kotel
Výtah

Origo partneři v Praze 5

Stěhovací služby

Výkup a prodej starého nábytku

Popis

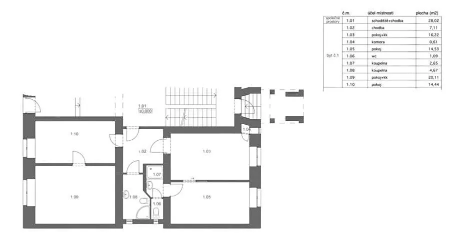
Byt 4 kk vhodný na investici, s dvěmi bytovými jednotkami – ideální až pro 4 studenty

Nabízíme kompletně zařízený byt o ploše 81 m² v 1. patře domu s výtahem na Smíchově, jen pár minut chůze od metra Anděl. Byt vznikl spojením dvou jednotek 2+kk a disponuje čtyřmi pokoji, dvěmi koupelnami, dvěmi kuchyněmi a komorou. Ideální řešení pro spolubydlení např. až čtyř studentů. K dispozici je také klidná společná zahrada ve vnitrobloku. Byt se prodává včetně kompletního vybavení a je připravený k okamžitému pronájmu.

Smíchov je ideálním místem pro aktivní život – v docházkové vzdálenosti naleznete OC Nový Smíchov, množství kaváren, restaurací a služeb, stejně jako stanici metra Anděl. Milovníci zeleně ocení blízkost parků Santoška a Sady Na Skalce, stejně jako nově vznikající čtvrť Smíchoff, která lokalitě dodává moderní tvář.

Některé z přiložených fotografií jsou vizualizace, které slouží pro představu možného uspořádání prostoru.

Makléř

Máte zájem o tento byt?

Tímto, v souladu s nařízením Evropského parlamentu a Rady (EU) 2016/679, v platném znění, prohlašuji, že mi je alespoň 16 let a uděluji tak svůj souhlas se zpracováním zadaných údajů (jméno, telefon, e-mail, ip adresa) společnosti B3 Technology, s.r.o., IČ: 07330600, se sídlem Novostavby 126/23, 435 11 Lom (správce dat), za účelem předání dotazu z tohoto formuláře Vámi vybranému inzerentovi a zpětného kontaktování mé osoby. Osobní údaje bude správce zpracovávat manuálně i automaticky přímo prostřednictvím svých zaměstnanců. Informace předané tímto formulářem budou uloženy v databázi správce maximálně po dobu 10 let. Odvolání souhlasu s uložením a zpracováním poskytnutých dat lze e-mailem na info@origo-reality.cz. V případě podezření na neoprávněné použití Vámi poskytnutých údajů máte právo předat podnět k šetření Úřadu pro ochranu osobních údajů. Více informací
Chystáte se prodat nemovitost?
Pomůžeme Vám!

Přihlášení k odběru

Nenechte si ujít nejnovější nabídky prodeje bytů 4+kk v Praze 5.