Prodej rodinného domu, Líně, Družstevní, 100 m2 (ID: 1836674)

Družstevní, Líně

9 950 000 Kč
/za nemovitost
Hypotéka od 44 470 Kč /měs. Chci hypotéku

Parametry domu

AdresaDružstevní, Líně
StavbaSmíšená
Stav objektuNovostavba
Druh objektuSamostatný
Lokalita objektuKlidná část obce
Užitná plocha100 m2
Zastavěná plocha125 m2
Plocha pozemku398 m2
Třída energetické náročnostiB - Velmi úsporná
Elektřina230V
OdpadVeřejná kanalizace
DopravaSilnice, Autobus
VodaVodovod
Topné tělesoPodlahové vytápění
Zdroj topeníTepelné čerpadlo
Parkování

Origo partneři v Líních

Podlahy

Stěhovací služby

Popis

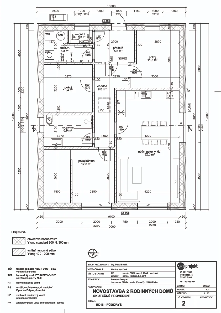
Nabízíme Vám k prodeji novostavbu dobře dispozičně řešeného, jednopodlažního, samostatně stojícího rodinného domu 4+kk, který se nachází na velmi klidném místě v obci Líně, okres Plzeň – sever.

V rodinném domu se nachází zádveří (5,8 m2), na které navazuje chodba (9,0 m2), obývací pokoj s kuchyňským koutem (32,0 m2), ložnice se šatnou (17 m2), další dva samostatné pokoje (11,8 m2 a 10,4 m2), koupelna se sprchovým koutem a WC (6,9 m2), další samostatné WC (1,3 m2) a technická místnost (5,3 m2), ve které je umístěna jednotka tepelného čerpadla, el. bojler a je zde i prostor pro umístění pračky. Objekt není podsklepen.

Dům je připojen na elektřinu, veřejný vodovod a kanalizaci. Vytápění domu je pomocí tepelného čerpadla formou podlahového vytápění, ohřev vody je el. bojlerem, na střeše jsou k dispozici solární panely sloužící k ohřevu vody.

Vedle domu je k dispozici plocha pro parkování vozidla. Kolem domu je k dispozici menší pozemek.

Celková plocha pozemku včetně zastavěné části je 385 m2

Zastavěná plocha domu je 125 m2, užitková plocha je 99,5 m2.

Dům se nachází na velmi klidném místě na konci Družstevní ulice.

V Líních je k dispozici velmi dobrá občanská vybavenost včetně mateřské školy a základní školy, kompletní občanská vybavenost se potom nachází v blízké Plzni, jejíž okraj je ve vzdálenosti 6 km od Líní. Z Líní je výborná dopravní dostupnost na dálnici D5. Koupi lze financovat prostřednictvím hypotéčního úvěru nebo úvěru ze stavebního spoření.

Makléř

Máte zájem o tento dům?

Tímto, v souladu s nařízením Evropského parlamentu a Rady (EU) 2016/679, v platném znění, prohlašuji, že mi je alespoň 16 let a uděluji tak svůj souhlas se zpracováním zadaných údajů (jméno, telefon, e-mail, ip adresa) společnosti B3 Technology, s.r.o., IČ: 07330600, se sídlem Novostavby 126/23, 435 11 Lom (správce dat), za účelem předání dotazu z tohoto formuláře Vámi vybranému inzerentovi a zpětného kontaktování mé osoby. Osobní údaje bude správce zpracovávat manuálně i automaticky přímo prostřednictvím svých zaměstnanců. Informace předané tímto formulářem budou uloženy v databázi správce maximálně po dobu 10 let. Odvolání souhlasu s uložením a zpracováním poskytnutých dat lze e-mailem na info@origo-reality.cz. V případě podezření na neoprávněné použití Vámi poskytnutých údajů máte právo předat podnět k šetření Úřadu pro ochranu osobních údajů. Více informací
Chystáte se prodat nemovitost?
Pomůžeme Vám!

Přihlášení k odběru

Nenechte si ujít nejnovější nabídky prodeje rodinných domů v Líních.