Prodej bytu 2+kk, Ostrava, Na Burni, 56 m2 (ID: 1832470)

Na Burni, Ostrava

7 073 000 Kč
/za nemovitost
Hypotéka od 31 612 Kč /měs. Chci hypotéku

Parametry bytu

AdresaNa Burni, Ostrava
ID133504
StavbaSmíšená
Stav objektuVelmi dobrý
Patro3. z 4
VlastnictvíOsobní
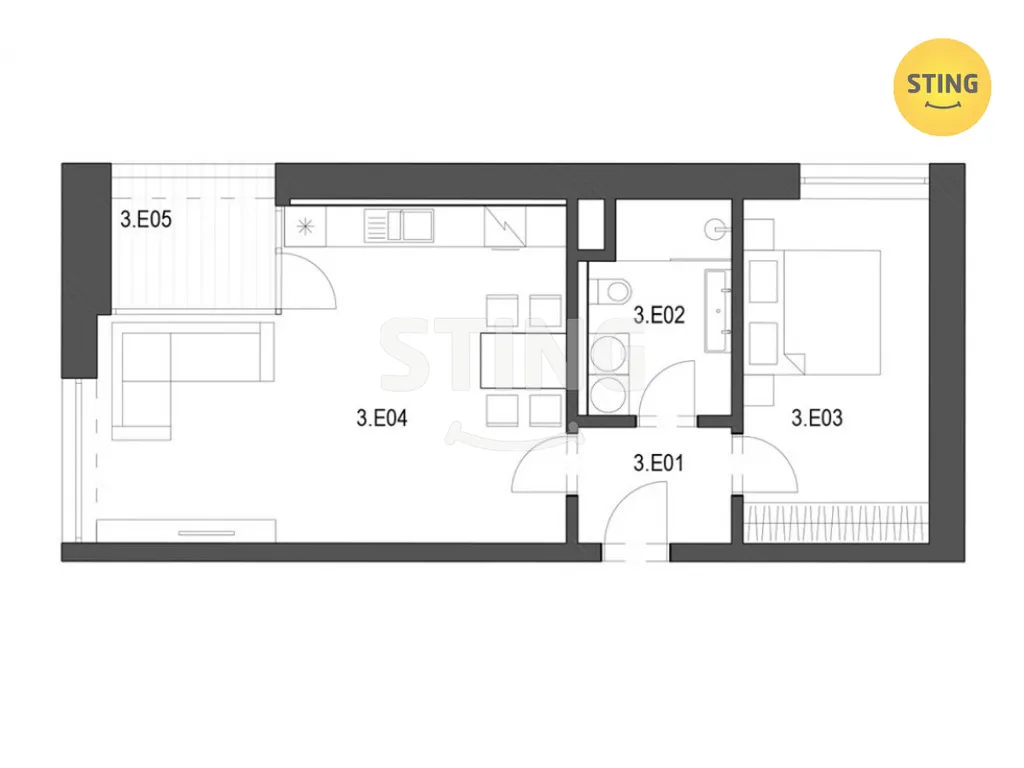
Užitná plocha56 m2
Podlahová plocha61 m2
Třída energetické náročnostiB - Velmi úsporná
OdpadVeřejná kanalizace
VodaVodovod
Garáž
Sklep
Lodžie
Výtah
Bezbarierový přístup
Parkování

Origo partneři v Ostravě

Pojištění a finance

Popis

Nabízíme ke koupi moderní byt ve vyhledávané lokalitě Slezská Ostrava.

Tento byt se nachází v jednom ze dvou třípodlažních domů uzavřeného rezidenčního areálu, který je vkusně začleněn do klidné okolní zástavby.

Byt nabízí moderní dispoziční řešení a je vybaven kvalitními materiály ve vysokém standardu, který je již zahrnut v ceně – např. klimatizace, venkovní žaluzie, podlahové vytápění a další. Interiér je navržen s důrazem na praktické, pohodlné a stylové bydlení.

Součástí areálu je podzemní garáž s přímým vstupem do domu s výtahem. Uzavřený komplex nabízí také dva vnitřní dvory – jeden s vjezdem a parkováním pro návštěvy, druhý jako klidovou zónu se zahradou, stromy, dětským hřištěm a relaxační zónou.

Výborná poloha:
Rezidence je umístěna v tiché části Slezské Ostravy, přitom v docházkové vzdálenosti od obchodů, škol, zdravotnických zařízení, restaurací i centra města. V blízkosti jsou rovněž lesy, řeka, cyklostezky a místa pro relaxaci i sport.

Podlahová plocha bytu je 56,5 m2 a lodžie 4,8 m2, celková podlahová plocha bytu - 61,5 m2.

K bytu je možné zakoupit venkovní parkovací stání nebo parkovací stání v 1. podzemním podlaží budovy. K dispozici jsou rovněž sklepní kóje. Parkovací stání a sklepní kóje nejsou součástí ceny bytu.

Předpokládaný termín kolaudace - červen 2026.

Neváhejte mě kontaktovat pro více informací – ráda vám zodpovím veškeré dotazy. Do konce dubna 2026 nabízíme prostřednictvím našeho partnera úrokové sazby od 4,69 % p.a. Více informací Vám sdělí náš specialista na prohlídce.

Makléř

Máte zájem o tento byt?

Tímto, v souladu s nařízením Evropského parlamentu a Rady (EU) 2016/679, v platném znění, prohlašuji, že mi je alespoň 16 let a uděluji tak svůj souhlas se zpracováním zadaných údajů (jméno, telefon, e-mail, ip adresa) společnosti B3 Technology, s.r.o., IČ: 07330600, se sídlem Novostavby 126/23, 435 11 Lom (správce dat), za účelem předání dotazu z tohoto formuláře Vámi vybranému inzerentovi a zpětného kontaktování mé osoby. Osobní údaje bude správce zpracovávat manuálně i automaticky přímo prostřednictvím svých zaměstnanců. Informace předané tímto formulářem budou uloženy v databázi správce maximálně po dobu 10 let. Odvolání souhlasu s uložením a zpracováním poskytnutých dat lze e-mailem na info@origo-reality.cz. V případě podezření na neoprávněné použití Vámi poskytnutých údajů máte právo předat podnět k šetření Úřadu pro ochranu osobních údajů. Více informací
Chystáte se prodat nemovitost?
Pomůžeme Vám!
Theleadway banner

Přihlášení k odběru

Nenechte si ujít nejnovější nabídky prodeje bytů 2+kk v Ostravě.