Prodej vícegeneračního domu, Roudnice nad Labem, Špindlerova třída, 210 m2

Špindlerova třída, Roudnice nad Labem

6 500 000 Kč
/za nemovitost
včetně provize a daní
Hypotéka od 29 051 Kč /měs. Chci hypotéku

Parametry domu

AdresaŠpindlerova třída, Roudnice nad Labem
ID907
StavbaSmíšená
Stav objektuPřed rekonstrukcí
Typ objektuPatrový
Druh objektuŘadový
Užitná plocha210 m2
Zastavěná plocha201 m2
Podlahová plocha250 m2
Plocha pozemku543 m2
Plocha zahrady342 m2
Třída energetické náročnostiG - Mimořádně nehospodárná
PlynPlynovod
OdpadVeřejná kanalizace
TopeníÚstřední plynové
DopravaVlak, Dálnice, MHD, Autobus
VodaVodovod
Balkon
Garáž
Sklep
Bezbarierový přístup
Parkování

Origo partneři v Roudnici nad Labem

Okna a dveře

Rekonstrukce

Zámečnické práce

Popis

Exkluzivně nabízíme prodej vícegeneračního rodinného domu v Roudnici nad Labem, Špindlerova třída. Je ideální pro rodinné či vícegenerační bydlení nebo bydlení spojené s podnikáním. Dům je před kompletní rekonstrukcí, můžete si ho tedy upravit přesně dle Vašich představ!

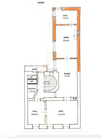
Dispozice:
- 2 samostatné oddělené bytové jednotky 4+kk (přízemí 74,5 m, patro 109 m)
- Dvůr 67 m, zahrada 342 m
- Velký půdní prostor vhodný k vestavbě
- Malý sklep pod schody
- Chodba/vjezd 26 m vhodný pro parkování 1 vozidla

Vybavení:
- Plynové nebo elektrické vytápění
- Městská voda a kanalizace
- Samostatné měření plynu a elektřiny pro každou jednotku

Zahrada
- ve vnitrobloku - prostorná, tichá a slunná
- s ovocnými a okrasnými stromy

Lokalita:
- Klidná lokalita poblíž centra, naproti VOŠ a SOŠ
- 3x základní škola v dochozí vzdálenosti
- Výborná občanská vybavenost
- Rychlé spojení do Prahy: cca 35 min. po D8, 50 min vlakem
- v roce 2031v plánu terminál vysokorychlostní železnice VTR- jízdní doma mezi Roudnicí a Prahou se zkrátí na 19 minut

Průkaz energetické náročnosti se právě zpracovává, uvádíme třídu G.

Dům je ihned volný, prohlídky jsou možné po telefonické dohodě. Uvedená cena je včetně provize, daní a právních služeb. Nemovitost lze financovat hypotékou, s vyřízením Vám rádi pomůžeme.

Makléř

Máte zájem o tento dům?

Tímto, v souladu s nařízením Evropského parlamentu a Rady (EU) 2016/679, v platném znění, prohlašuji, že mi je alespoň 16 let a uděluji tak svůj souhlas se zpracováním zadaných údajů (jméno, telefon, e-mail, ip adresa) společnosti B3 Technology, s.r.o., IČ: 07330600, se sídlem Novostavby 126/23, 435 11 Lom (správce dat), za účelem předání dotazu z tohoto formuláře Vámi vybranému inzerentovi a zpětného kontaktování mé osoby. Osobní údaje bude správce zpracovávat manuálně i automaticky přímo prostřednictvím svých zaměstnanců. Informace předané tímto formulářem budou uloženy v databázi správce maximálně po dobu 10 let. Odvolání souhlasu s uložením a zpracováním poskytnutých dat lze e-mailem na info@origo-reality.cz. V případě podezření na neoprávněné použití Vámi poskytnutých údajů máte právo předat podnět k šetření Úřadu pro ochranu osobních údajů. Více informací
Chystáte se prodat nemovitost?
Pomůžeme Vám!

Přihlášení k odběru

Nenechte si ujít nejnovější nabídky prodeje vícegeneračních domů v Roudnici nad Labem.