Prodej bytu 3+kk, Brno, Bystrcká, 75 m2 (ID: 1827121)
Bystrcká, Brno, Komín
/za nemovitost
Cena vč. skladovací kóje, garážového stání a provize!, včetně DPH, včetně poplatků, včetně provize, včetně právního servisu
Parametry bytu
| Adresa | Bystrcká, Brno, Komín | 
|---|---|
| ID | 03593 | 
| Stavba | Cihlová | 
| Stav objektu | Novostavba | 
| Patro | 1. z 7 | 
| Vlastnictví | Osobní | 
| Užitná plocha | 75 m2 | 
| Třída energetické náročnosti | A - Mimořádně úsporná | 
| Ukazatel energetické náročnosti | 50 kWh/m2 za rok | 
| Elektřina | 230V | 
| Odpad | Veřejná kanalizace | 
| Komunikace | Asfaltová | 
| Telekomunikace | Telefon, Internet, Kabelová televize, Kabelové rozvody | 
| Doprava | Silnice, MHD, Autobus | 
| Voda | Vodovod | 
| Sklep | |
| Terasa | |
| Výtah | |
| Bezbarierový přístup | |
| Parkování | 
Popis
Hledáte naprosto unikátní, technologicky výjimečné bydlení v Brně, a přesto chcete žít v prostředí přírody? Dovolte nám představit skutečně ojedinělou stavbu bytového domu Rezidence Diorit, jenž je synonymem pro zdravé a chytré bydlení. Unikátní projekt navržený architekty ze studia DRNH vyroste v atraktivní žádané městské části Brno-Komín. Všechny jednotky splňují svým pojetím a praktickým uspořádáním očekávání každého zájemce.
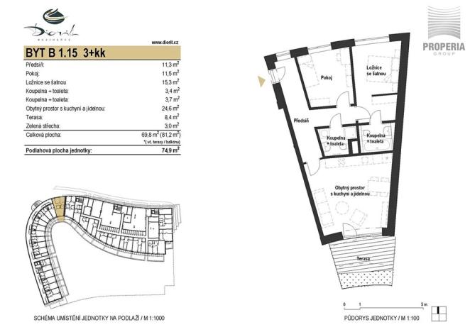
Dovolujeme si Vám nabídnout v tomto nízkoenergetickém bytovém domě ke koupi bytovou jednotku 3+kk, s terasou 8,4 m2 + zelená střecha 3 m2. Bytová jednotka je označena č. B 2.15 a nachází v 1. NP o velikosti 74,8 m2. Cena je uvedena včetně parkovacího stání, skladové kóje 9,4 m2 a další kóje je na patře.
V rezidenci je vyhrazena místnost pro kočárky a kola, příchozí okouzlí vlastní park pro rezidenty. 
Kromě architektury byl kladen velký důraz na zdravé bydlení v kombinaci s chytrou domácností. Čistý vzduch po celý den představuje základní aspekt této unikátní rezidence, a to díky rekuperační jednotce, která je zahrnuta ve standardu každého bytu. Tuto jednotku a podlahové vytápění bude možné ovládat přes inteligentní domácnost od společnosti Loxone.  Využíváme technologii tepelných čerpadel země – voda se soustavou 30 geotermálních vrtů hloubky 150 m, která zajistí ohřev vody, teplo a chlazení. Především ale sníží náklady na provoz budovy a závislost na primárních zdrojích tepla. Všechny střechy jsou navíc pokryté zelení - tzv. extenzivní vegetací. 
V neposlední řadě je třeba uvést, že v těsné blízkosti se nachází veškerá občanská vybavenost (škola, zdravotnické zařízení, obchody, čerpací stanice a MHD).
Zaujala Vás možnost luxusního bydlení v lukrativní části města Brna v blízkosti přírody i města? Zodpovíme Vám veškeré Vaše dotazy a dodáme kompletní informace o tomto skutečně zdařilém projektu. Kontaktujte nás pro více informací, velmi rádi Vám je poskytneme.
Přihlášení k odběru
Nenechte si ujít nejnovější nabídky prodeje bytů 3+kk v Brně.
 
                                                                                     
                                                                                     
                                                                                     
                                                                                     
                                                                                     
                                                                                     
                                                                                     
                                                                                     
                                                                                     
                                                                                     
                                                                                     
                                                                                     
                                                                                     
                                                                                     
                                                                                     
                                                                                     
                                                                                     
                                                                                     
                                                                                     
                                                                                     
                                                                                     
                                                                                     
                         
         
         
         
         
         
        