Prodej bytu 4+kk, Ostopovice, B. Němcové, 90 m2

B. Němcové, Ostopovice

11 760 000 Kč
/za nemovitost
Hypotéka od 52 560 Kč /měs. Chci hypotéku

Parametry bytu

AdresaB. Němcové, Ostopovice
ID27637
StavbaCihlová
Stav objektuNovostavba
Patro1. z 2
VybavenoNe
Lokalita objektuCentrum obce
VlastnictvíOsobní
Užitná plocha90 m2
Podlahová plocha273 m2
Plocha zahrady183 m2
Třída energetické náročnostiA - Mimořádně úsporná
Elektřina230V
PlynPlynovod
OdpadVeřejná kanalizace
KomunikaceAsfaltová
TelekomunikaceInternet
DopravaDálnice, Silnice, MHD, Autobus
VodaVodovod
Bezbarierový přístup
Nízkoenergetický

Origo partneři v Ostopovicích

Popis

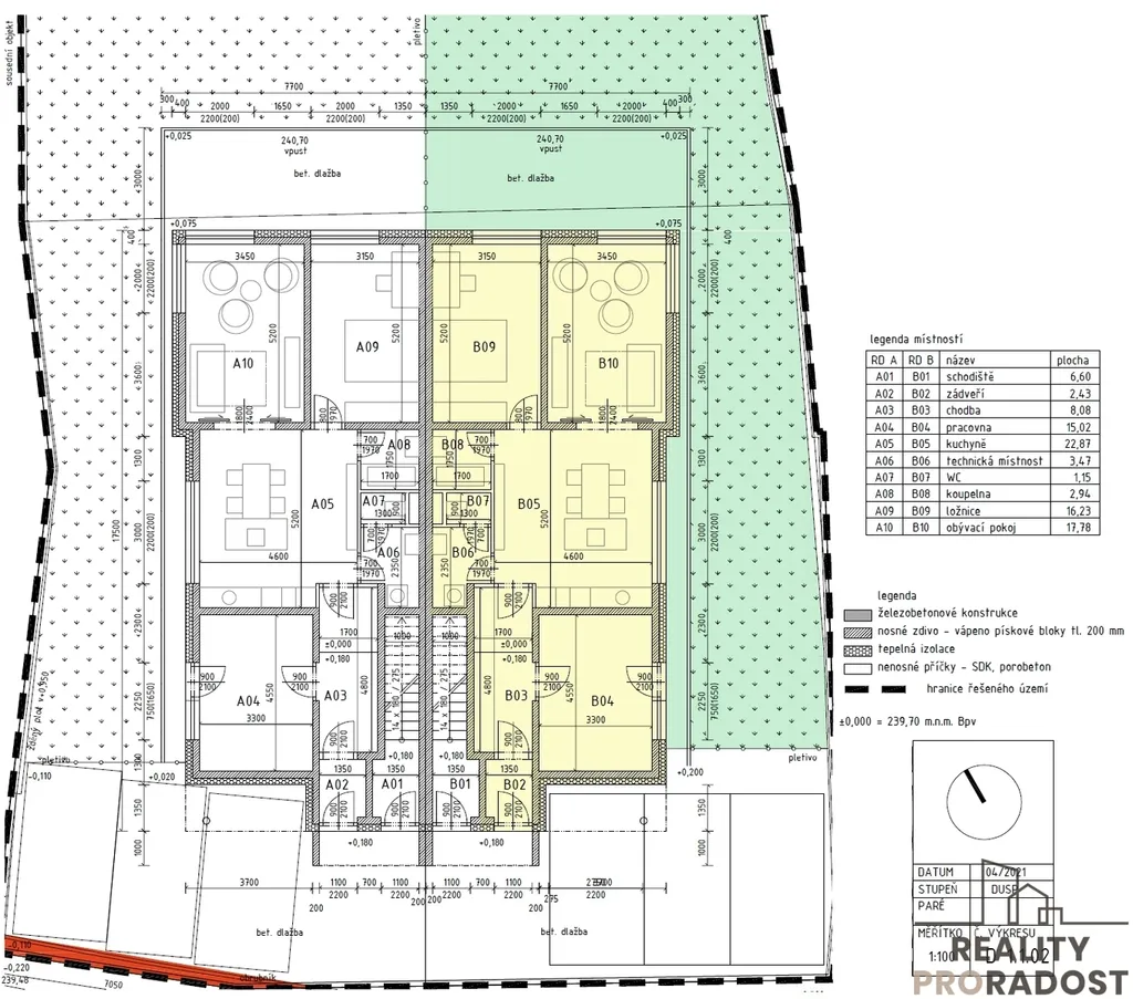
Jako vybraný zástupce majitele Vám exkluzivně nabízíme ke koupi moderní novostavbu bytu 4+kk o ploše 90 m² s prostornou zahradou 183 m², terasou a vlastním parkovacím stáním. Byt se nachází v klidné části obce Ostopovice, v novém komorním domě se čtyřmi bytovými jednotkami.

Tato nabídka kombinuje komfort rodinného domu s praktičností bytu – soukromí, dostatek prostoru i skvělou dostupnost do Brna.

Byt / stav a dispozice
Byt je situován v přízemí s vlastním vstupem ze zahrady a nabízí:
• obývací pokoj s kuchyní a přímým vstupem na terasu i zahradu,
• tři samostatné ložnice - přímým vstupem na zahradu,
• koupelnu, tech. místnost + samostatné WC,
• praktickou šatnu / úložný prostor,
Celková podlahová plocha činí 90 m². Zahrada 183 m² poskytuje prostor pro relaxaci, posezení i rodinné aktivity.

Standard a vybavení
Dům byl dokončen v roce 2025 a stavba splňuje nejvyšší standardy současného bydlení:
• plastová okna s trojskly,
• podlahové vytápění,
• venkovní žaluzie,
• systém rekuperace vzduchu,
• kvalitní vinylové podlahy, dlažby a obklady,
• Součástí bytu je i parkovací stání přímo u domu.

Dům
Novostavba je tvořena čtyřmi samostatnými bytovými jednotkami. Nabízený byt má výhodu vlastního vstupu, předzahrádky a je ideální kombinací rodinného bydlení s nízkými provozními náklady.

Lokalita
Ostopovice jsou velmi vyhledávanou lokalitou pro bydlení v těsné blízkosti Brna – s výbornou dostupností jak autem, tak MHD. V obci se nachází obchod, školka, škola i další občanská vybavenost. Přímé okolí nabízí příjemné prostředí pro procházky i sportovní aktivity, cyklostezky a zeleň.

Výborné je také napojení na dálniční tahy a rychlý dojezd do centra Brna.
Novostavba bytu 4+kk v Ostopovicích tak představuje ideální volbu pro ty, kteří hledají moderní bydlení s vlastním venkovním prostorem, nízkými náklady a klidnou lokalitou jen pár minut od Brna.

Pro více informací, nebo sjednání osobní prohlídky, mě neváhejte kontaktovat.

Makléř

Máte zájem o tento byt?

Tímto, v souladu s nařízením Evropského parlamentu a Rady (EU) 2016/679, v platném znění, prohlašuji, že mi je alespoň 16 let a uděluji tak svůj souhlas se zpracováním zadaných údajů (jméno, telefon, e-mail, ip adresa) společnosti B3 Technology, s.r.o., IČ: 07330600, se sídlem Novostavby 126/23, 435 11 Lom (správce dat), za účelem předání dotazu z tohoto formuláře Vámi vybranému inzerentovi a zpětného kontaktování mé osoby. Osobní údaje bude správce zpracovávat manuálně i automaticky přímo prostřednictvím svých zaměstnanců. Informace předané tímto formulářem budou uloženy v databázi správce maximálně po dobu 10 let. Odvolání souhlasu s uložením a zpracováním poskytnutých dat lze e-mailem na info@origo-reality.cz. V případě podezření na neoprávněné použití Vámi poskytnutých údajů máte právo předat podnět k šetření Úřadu pro ochranu osobních údajů. Více informací
Chystáte se prodat nemovitost?
Pomůžeme Vám!

Přihlášení k odběru

Nenechte si ujít nejnovější nabídky prodeje bytů 4+kk v Ostopovicích.