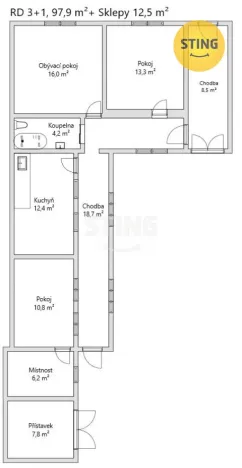
Prodej rodinného domu, Moravská Nová Ves, 110 m2
Moravská Nová Ves
/za nemovitost
sleva
Parametry domu
| Adresa | Moravská Nová Ves | 
|---|---|
| ID | 133425 | 
| Stavba | Smíšená | 
| Stav objektu | Před rekonstrukcí | 
| Typ objektu | Přízemní | 
| Druh objektu | Řadový | 
| Lokalita objektu | Okraj obce | 
| Užitná plocha | 110 m2 | 
| Zastavěná plocha | 98 m2 | 
| Podlahová plocha | 52 m2 | 
| Plocha pozemku | 252 m2 | 
| Třída energetické náročnosti | G - Mimořádně nehospodárná | 
| Elektřina | 230V | 
| Plyn | Plynovod | 
| Odpad | Veřejná kanalizace | 
| Topení | Lokální plynové | 
| Komunikace | Asfaltová | 
| Doprava | Vlak, Silnice, MHD, Autobus | 
| Voda | Vodovod | 
| Sklep | 
Popis
Nabízíme k prodeji přízemní rodinný dům o dispozici 3+1, který se nachází v atraktivní lokalitě mezi Hodonínem a Břeclaví. Dům má zastavěnou plochu 98 m², je částečně podsklepený a stojí na pozemku o výměře 252 m² na kraji obce Moravská Nová Ves. Nemovitost je v původním stavu a nabízí tak ideální možnost rekonstrukce dle vlastních představ, ať už hledáte rodinné bydlení, nebo investiční příležitost.
Dům je napojen na veřejnou kanalizaci, vodovod, plyn i elektřinu. Z nedávných úprav stojí za zmínku nové vstupní dveře a vyměněná okna, která přispívají k lepším tepelným i bezpečnostním vlastnostem domu. Přední část střechy z pálených tašek je ve velmi dobrém stavu a elektroinstalace je již vedena v mědi.
K domu náleží také menší dvorek a hospodářská budova s dílnou a skladem , což může být skvělé zázemí pro kutily či drobné hospodaření.
V obci je k dispozici kompletní občanská vybavenost. Najdete zde školu, školku, obchody i zdravotní služby. O pohodlné spojení s Hodonínem, Břeclaví a dalšími městy se postará vlaková doprava.
V případě zájmu o více informací či domluvení prohlídky mě neváhejte kontaktovat. Ráda Vám nemovitost osobně představím. Do konce listopadu 2025 nabízíme prostřednictvím našeho partnera úrokové sazby od 4,29 % p.a. Více informací Vám sdělí náš specialista na prohlídce.
Přihlášení k odběru
Nenechte si ujít nejnovější nabídky prodeje rodinných domů v Moravské Nové Vsi.
 
                                                                                     
                                                                                     
                                                                                     
                                                                                     
                                                                                     
                                                                                     
                                                                                     
                                                                                     
                                                                                     
                                                                                     
                                                                                     
                                                                                     
                                                                                     
                                                                                     
                         
         
         
         
         
         
         
         
        