Prodej bytu 4+1, Studená, Masná, 105 m2

Masná, Studená

Rezervováno
2 980 000 Kč
/za nemovitost
Hypotéka od 13 319 Kč /měs. Chci hypotéku

Parametry bytu

StavRezervováno
AdresaMasná, Studená
ID24482
StavbaCihlová
Stav objektuDobrý
Patro1. z 3
Typ objektuPatrový
VlastnictvíOsobní
Užitná plocha105 m2
Podlahová plocha105 m2
Třída energetické náročnostiG - Mimořádně nehospodárná
Sklep
Bezbarierový přístup
Parkování

Origo partneři v Studené

Výkup a prodej starého nábytku

Popis

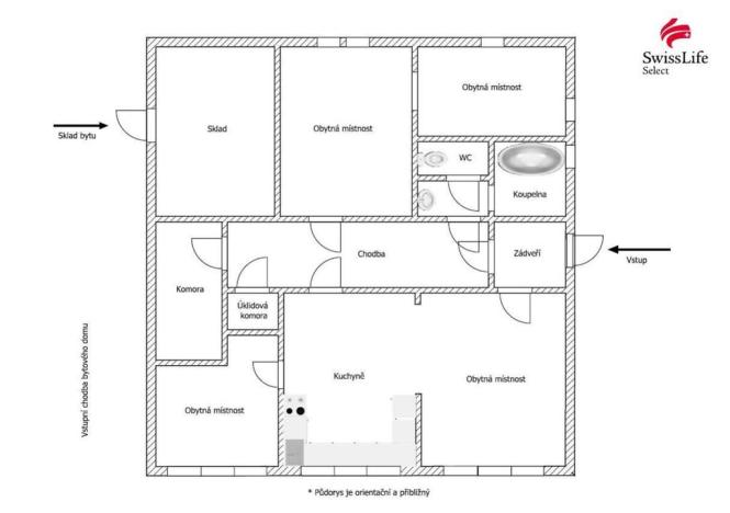
Přináším možnost pořídit si opravdu velký byt o dispozici 4+1 a ploše přibližně 105 m s vlastním vstupem nacházející se v přízemí 3-podlažního bytového domu na ulici Masná v obci Studená.

Bytová jednotka je velmi prostorná a dobře prosvětlená díky pozici větších obytných místností na jihovýchodní stranu. Menší obytné místnosti mají okna na severní a východní stranu. K bytu náleží i sklad 15 m přístupný z chodby bytového domu. Vytápění je centrální teplovodní s měřidly na radiátorech.

Obec Studená se nachází přibližně na půli cesty mezi Jindř. Hradcem a Telčí. Občanská vybavenost je velmi dobrá a zahrnuje např. mateřskou a základní školu, knihovnu, obecní úřad s matričním a stavebním úřadem, poštu, bankomat, obchody s potravinami, oblečením a domácími potřebami, zdravotní středisko, lékárnu, čerpací stanici, sportovní areál s fotbalovým hřištěm a tenisovými kurty atd.

Pro domluvení prohlídky zavolejte nebo vyplňte formulář.

Makléř

Máte zájem o tento byt?

Tímto, v souladu s nařízením Evropského parlamentu a Rady (EU) 2016/679, v platném znění, prohlašuji, že mi je alespoň 16 let a uděluji tak svůj souhlas se zpracováním zadaných údajů (jméno, telefon, e-mail, ip adresa) společnosti B3 Technology, s.r.o., IČ: 07330600, se sídlem Novostavby 126/23, 435 11 Lom (správce dat), za účelem předání dotazu z tohoto formuláře Vámi vybranému inzerentovi a zpětného kontaktování mé osoby. Osobní údaje bude správce zpracovávat manuálně i automaticky přímo prostřednictvím svých zaměstnanců. Informace předané tímto formulářem budou uloženy v databázi správce maximálně po dobu 10 let. Odvolání souhlasu s uložením a zpracováním poskytnutých dat lze e-mailem na info@origo-reality.cz. V případě podezření na neoprávněné použití Vámi poskytnutých údajů máte právo předat podnět k šetření Úřadu pro ochranu osobních údajů. Více informací
Chystáte se prodat nemovitost?
Pomůžeme Vám!

Přihlášení k odběru

Nenechte si ujít nejnovější nabídky prodeje bytů 4+1 v Studené (okr. Jindřichův Hradec).