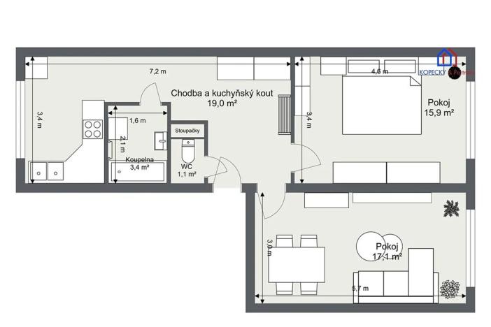
Prodej bytu 2+1, Chomutov, Borová, 62 m2

Borová, Chomutov

2 550 000 Kč
/za nemovitost
včetně DPH, včetně poplatků, včetně provize, včetně právního servisu
Hypotéka od 11 397 Kč /měs. Chci hypotéku

Parametry bytu

AdresaBorová, Chomutov
ID2025002
StavbaPanelová
Stav objektuVelmi dobrý
Patro2.
VybavenoČástečně
Lokalita objektuKlidná část obce
VlastnictvíOsobní
Užitná plocha62 m2
Třída energetické náročnostiC - Úsporná
Ukazatel energetické náročnosti87 kWh/m2 za rok
Elektřina230V
PlynPlynovod
OdpadVeřejná kanalizace
KomunikaceAsfaltová
DopravaVlak, Dálnice, Silnice, MHD, Autobus
VodaMístní zdroj vody
Zdroj topeníÚstřední dálkové
Sklep
Výtah

Origo partneři v Chomutově

Okna a dveře

Rekonstrukce

Zámečnické práce

Popis

Hledáte útulné a pohodlné bydlení v klidné a vyhledávané lokalitě? Pak vám exkluzivně nabízíme prostorný byt o dispozici 2+1 (62 m2), který se nachází ve 2. patře panelového domu v oblíbené ulici Borová v Chomutově. Byt vás zaujme především svou praktickou dispozicí – k dispozici je prostorný obývací pokoj, dvě samostatné ložnice, kuchyň a koupelna. Díky částečnému vybavení se můžete nastěhovat téměř okamžitě a začít si užívat nové bydlení bez zdlouhavých příprav.

Součástí bytu je rovněž sklep (2 m2), který oceníte při ukládání sezónních věcí, sportovního vybavení nebo nářadí. Stav objektu je velmi dobrý, což minimalizuje nutné počáteční investice do rekonstrukcí či úprav. Lokalita Borová vyniká především množstvím zeleně, občanskou vybaveností a klidem, který vyhovuje jak rodinám s dětmi, tak všem, kdo hledají únik od ruchu města.

Díky snadné dostupnosti do centra Chomutova a výhodné poloze je byt vhodný i jako investiční příležitost pro pronájem. Nezmeškejte tuto šanci pořídit si nové, příjemné bydlení nebo zajímavý investiční projekt. Pro více informací či domluvení osobní prohlídky nás neváhejte kontaktovat – rádi vám byt představíme a zodpovíme veškeré dotazy.

Makléř

Máte zájem o tento byt?

Tímto, v souladu s nařízením Evropského parlamentu a Rady (EU) 2016/679, v platném znění, prohlašuji, že mi je alespoň 16 let a uděluji tak svůj souhlas se zpracováním zadaných údajů (jméno, telefon, e-mail, ip adresa) společnosti B3 Technology, s.r.o., IČ: 07330600, se sídlem Novostavby 126/23, 435 11 Lom (správce dat), za účelem předání dotazu z tohoto formuláře Vámi vybranému inzerentovi a zpětného kontaktování mé osoby. Osobní údaje bude správce zpracovávat manuálně i automaticky přímo prostřednictvím svých zaměstnanců. Informace předané tímto formulářem budou uloženy v databázi správce maximálně po dobu 10 let. Odvolání souhlasu s uložením a zpracováním poskytnutých dat lze e-mailem na info@origo-reality.cz. V případě podezření na neoprávněné použití Vámi poskytnutých údajů máte právo předat podnět k šetření Úřadu pro ochranu osobních údajů. Více informací
Chystáte se prodat nemovitost?
Pomůžeme Vám!

Přihlášení k odběru

Nenechte si ujít nejnovější nabídky prodeje bytů 2+1 v Chomutově.