Prodej bytu 4+kk, Brno, Havlíčkova, 82 m2 (ID: 1817248)

Havlíčkova, Brno, Stránice

10 900 000 Kč
/za nemovitost
Hypotéka od 48 716 Kč /měs. Chci hypotéku

Parametry bytu

AdresaHavlíčkova, Brno, Stránice
ID250000801
StavbaCihlová
Stav objektuDobrý
Patro1. z 2
Lokalita objektuKlidná část obce
VlastnictvíOsobní
Užitná plocha82 m2
Podlahová plocha280 m2
Plocha zahrady152 m2
Třída energetické náročnostiG - Mimořádně nehospodárná
PlynPlynovod
OdpadVeřejná kanalizace
TelekomunikaceInternet
DopravaMHD
Zdroj topeníPlynový kondenzační kotel
Zdroj teplé vodyPlynový kondenzační kotel
Balkon
Garáž
Sklep

Origo partneři v Brně

Popis

Realitní kancelář 100klíčů Vám nabízí velice příjemný, cihlový byt o dispozici 4+kk (86 m²) se zahradou, a dvěma prostornými sklepy, nacházející se v jedné z nejatraktivnějších městských částí Brna - Masarykově čtvrti (Stránici).

Byt je umístěn v prvním (prostředním) patře domu a prošel rozsáhlou rekonstrukcí, v rámci které byly vyměněny stupačky, elektřina, voda, nově položena dlažba a celková modernizace jádra a kuchyně. Podlahy v pokojích dřevěné, nově ošetřené. Ohřev vody a vytápění zajištěno vlastním plynovým kotlem.

Jedná se o slunný byt s praktickou a vzdušnou dispozicí - z předsíně vedou vstupy do jednotlivých místností - kuchyně s jídelní či obývací částí, dvou ložnic, koupelny se sprchovým koutem a vanou, toalety s bidetem, technické místnosti / komory a na balkon, orientovaný do vnitrobloku domu.
Třetí pokoj je přístupný z kuchyně.

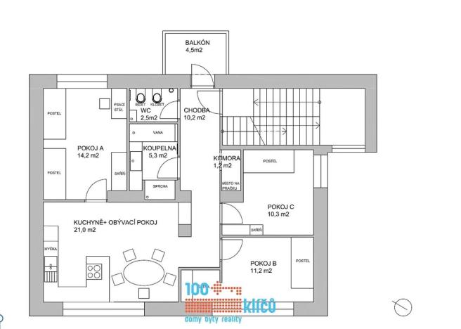
Celková plocha bytu činí 86 m², jednotlivé výměry místností viz přiložený půdorys.

K bytové jednotce lze dále přikoupit garáž nacházející se vedle domu.

K dispozici také sklepní prostor v suterénu domu o výměře 12 m², podkroví 30m2 a zahrada za domem o velikosti 152m2.

V současné chvíli se jedná o převod ideální třetiny vlastnického podílu k domu s jasně vymezenými výměrami jednotlivých částí na základě podepsané většinové dohody.

Nemovitost je v dobrém technickém stavu, nově byla zrekonstruována střecha s výměnou krytiny. Dále je plánována nová fasáda a zateplení domu. S ostatními spolumajiteli je domluva na opravách možná.

Pokud hledáte atraktivní, klidné a prostorné bydlení bez nutnosti dalších investic, možností užívání vlastní zahrady přímo za domem, v neposlední řadě bezproblémovým parkováním v garáži či na jejím vjezdu, je tento byt pro Vás ideální volbou.

Brno - Stránice patří mezi nejvyhledávanější městskou část zejména pro svoje úžasně klidné prostředí (Kraví hora, Wilsonův les) a zároveň nabízí dostupnost veškerých služeb - škol, školek, gymnázií, obchodních, kulturních a sportovních možností. Blízkost centra města.

Doporučuji prohlídku této nemovitosti. Pro více informací prosím volejte.

Makléř

Máte zájem o tento byt?

Tímto, v souladu s nařízením Evropského parlamentu a Rady (EU) 2016/679, v platném znění, prohlašuji, že mi je alespoň 16 let a uděluji tak svůj souhlas se zpracováním zadaných údajů (jméno, telefon, e-mail, ip adresa) společnosti B3 Technology, s.r.o., IČ: 07330600, se sídlem Novostavby 126/23, 435 11 Lom (správce dat), za účelem předání dotazu z tohoto formuláře Vámi vybranému inzerentovi a zpětného kontaktování mé osoby. Osobní údaje bude správce zpracovávat manuálně i automaticky přímo prostřednictvím svých zaměstnanců. Informace předané tímto formulářem budou uloženy v databázi správce maximálně po dobu 10 let. Odvolání souhlasu s uložením a zpracováním poskytnutých dat lze e-mailem na info@origo-reality.cz. V případě podezření na neoprávněné použití Vámi poskytnutých údajů máte právo předat podnět k šetření Úřadu pro ochranu osobních údajů. Více informací
Chystáte se prodat nemovitost?
Pomůžeme Vám!

Přihlášení k odběru

Nenechte si ujít nejnovější nabídky prodeje bytů 4+kk v Brně.