Molík reality

Prodej pozemku pro bydlení, Litvínov - Šumná, 1259 m2

Litvínov, Šumná

4 119 790 Kč
/za nemovitost
Hypotéka od 18 413 Kč /měs. Chci hypotéku

Parametry pozemku

AdresaLitvínov, Šumná
ID918755
Stav objektuVelmi dobrý
VybavenoNe
Lokalita objektuKlidná část obce
VlastnictvíOsobní
Plocha pozemku1259 m2

Origo partneři v Litvínově

Okna a dveře

Rekonstrukce

Zámečnické práce

Popis

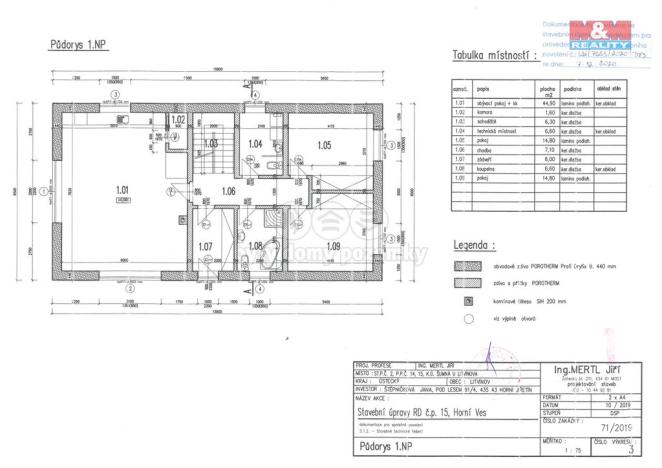
Nabízíme k prodeji jedinečný stavební pozemek o rozloze 1259 m² v klidné části obce Horní Ves v Litvínově. Pozemek je připraven k okamžité výstavbě – platné a prodloužené stavební povolení, projekt na moderní dům 5+kk s dvěma koupelnami, komorou a technickou místností je součástí prodeje. Elektřina zajištěna, vodu řeší vrt (nutno vybudovat), odpad ČOV. Topení podlahové s tepelným čerpadlem. Klidná lokalita v přírodě, ideální pro rodinu – cyklotrasy, běžecké tratě, sport areál Klíny i skiareál Český Jiřetín v dojezdové vzdálenosti. Do centra Litvínova, školy, školky či Tesca dojedete za 5 minut.. Investujte do této perspektivní lokality a začněte stavět svůj vysněný domov!

Makléř

Máte zájem o tento pozemek?

Tímto, v souladu s nařízením Evropského parlamentu a Rady (EU) 2016/679, v platném znění, prohlašuji, že mi je alespoň 16 let a uděluji tak svůj souhlas se zpracováním zadaných údajů (jméno, telefon, e-mail, ip adresa) společnosti B3 Technology, s.r.o., IČ: 07330600, se sídlem Novostavby 126/23, 435 11 Lom (správce dat), za účelem předání dotazu z tohoto formuláře Vámi vybranému inzerentovi a zpětného kontaktování mé osoby. Osobní údaje bude správce zpracovávat manuálně i automaticky přímo prostřednictvím svých zaměstnanců. Informace předané tímto formulářem budou uloženy v databázi správce maximálně po dobu 10 let. Odvolání souhlasu s uložením a zpracováním poskytnutých dat lze e-mailem na info@origo-reality.cz. V případě podezření na neoprávněné použití Vámi poskytnutých údajů máte právo předat podnět k šetření Úřadu pro ochranu osobních údajů. Více informací
Chystáte se prodat nemovitost?
Pomůžeme Vám!

Přihlášení k odběru

Nenechte si ujít nejnovější nabídky prodeje pozemků pro bydlení v Litvínově.