Pronájem bytu 2+1, Horoušany - Horoušánky, Hlavní, 55 m2 (ID: 1810143)

Hlavní, Horoušany - Horoušánky, okres Praha-východ

19 900 Kč
/za měsíc
Nájem nezahrnuje poplatky za energie a služby
Získejte výhodnou HYPOTÉKU Chci hypotéku

Parametry bytu

AdresaHlavní, Horoušany - Horoušánky, okres Praha-východ
IDN1206
StavbaCihlová
Stav objektuNovostavba
Lokalita objektuKlidná část obce
VlastnictvíOsobní
Užitná plocha55 m2
Třída energetické náročnostiB - Velmi úsporná

Origo partneři v Horoušanech

Popis

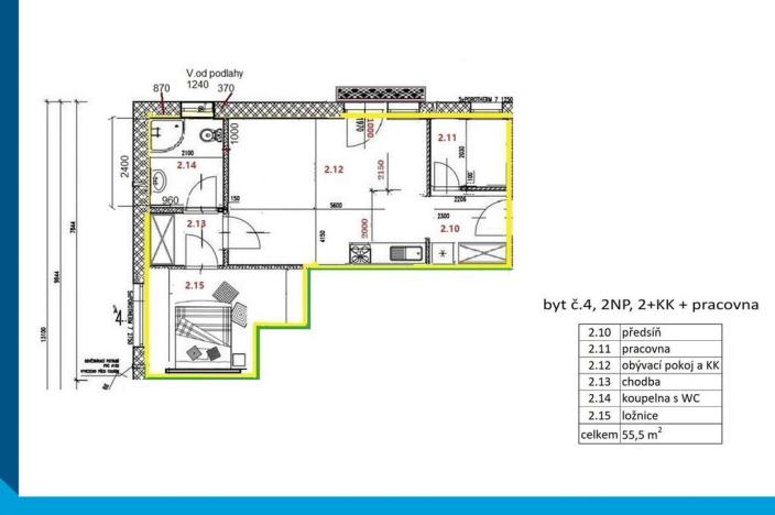
Vítejte doma – v kouzelném bytě, kde se snoubí moderní design, klidné okolí a pohádková atmosféra. Tento nádherný, plně vybavený 2+kk+pracovna byt o rozloze 58 m² + 5 m² sklepní kóje se nachází v exkluzivním viladomě, který ukrývá pouze 3 bytové jednotky – soukromí, klid a pohodlí jsou zde zaručeny.
Váš byt je Stylový a plně vybavený a nabízí maximální soukromí.
Jen pár kroků od Klánovického lesa, na hranici Praha 9 – Praha-východ

Dispozice bytu:
Prostorný obývací pokoj s designovou kuchyní, spotřebiče značky BOSCH, jídelním koutem a přístupem na útulný balkónek;
Světlá a vzdušná ložnice;
Bonusová místnost – ideální jako pracovna nebo herna;
Elegantní koupelna s walk-in sprchou;
Vstupní hala se šatnou a vestavěnými úložnými prostory;
Velká sklepní kóje (5 m²) pro kola, sezónní věci nebo sportovní výbavu.

Byt se nachází v 1. NP a celý dům je bezbariérový s výtahem, což zajišťuje maximální komfort pro všechny generace.
Soukromé venkovní parkování pro rezidenti dumu.

Co dům nabízí navíc?
3 metry vysoké stropy dodávají bytu vzdušnost a objem;
Novostavba je provedena v nadstandardní kvalitě zateplení a s technologií zaměřenou na úsporu energie;
Přímo v přízemí vás čeká luxusní wellness salon, kadeřnictví a kompletní kosmetické služby. Po relaxaci si můžete dopřát skvělou kávu či croissant v elegantním bistru se zahrádkou – a to doslova doma.

Lokalita:
Jen 100 m od autobusové zastávky, přímá dostupnost do centra Prahy. Kousek od Klánovického lesa, ideální místo pro procházky, sport i relax. V blízkosti kompletní občanská vybavenost.

Byt se pronajímá včetně veškerého vybavení, stačí si přinést osobní věci – o vše ostatní je postaráno.
K nastěhování od září 2025.

Zaujalo vás toto místo, kde se snoubí styl, soukromí a komfort? Ozvěte se a domluvte si prohlídku ještě dnes. Takové bydlení se nabízí jen zřídka.

Makléř

Máte zájem o tento byt?

Tímto, v souladu s nařízením Evropského parlamentu a Rady (EU) 2016/679, v platném znění, prohlašuji, že mi je alespoň 16 let a uděluji tak svůj souhlas se zpracováním zadaných údajů (jméno, telefon, e-mail, ip adresa) společnosti B3 Technology, s.r.o., IČ: 07330600, se sídlem Novostavby 126/23, 435 11 Lom (správce dat), za účelem předání dotazu z tohoto formuláře Vámi vybranému inzerentovi a zpětného kontaktování mé osoby. Osobní údaje bude správce zpracovávat manuálně i automaticky přímo prostřednictvím svých zaměstnanců. Informace předané tímto formulářem budou uloženy v databázi správce maximálně po dobu 10 let. Odvolání souhlasu s uložením a zpracováním poskytnutých dat lze e-mailem na info@origo-reality.cz. V případě podezření na neoprávněné použití Vámi poskytnutých údajů máte právo předat podnět k šetření Úřadu pro ochranu osobních údajů. Více informací
Chystáte se prodat nemovitost?
Pomůžeme Vám!

Přihlášení k odběru

Nenechte si ujít nejnovější nabídky pronájmu bytů 2+1 v Horoušanech.