Prodej bytu 2+kk, Karlovy Vary, 68 m2 (ID: 1807132)
Karlovy Vary
/za nemovitost
Parametry bytu
| Adresa | Karlovy Vary | 
|---|---|
| ID | B407 | 
| Stavba | Cihlová | 
| Stav objektu | Projekt | 
| Patro | 4. z 4 | 
| Vybaveno | Částečně | 
| Lokalita objektu | Klidná část obce | 
| Vlastnictví | Osobní | 
| Užitná plocha | 68 m2 | 
| Podlahová plocha | 68 m2 | 
| Třída energetické náročnosti | B - Velmi úsporná | 
| Elektřina | 230V | 
| Odpad | Veřejná kanalizace | 
| Topení | Ústřední dálkové | 
| Telekomunikace | Telefon, Internet, Kabelové rozvody | 
| Doprava | Silnice, MHD, Autobus | 
| Balkon | |
| Garáž | |
| Sklep | |
| Výtah | |
| Bezbarierový přístup | 
Popis
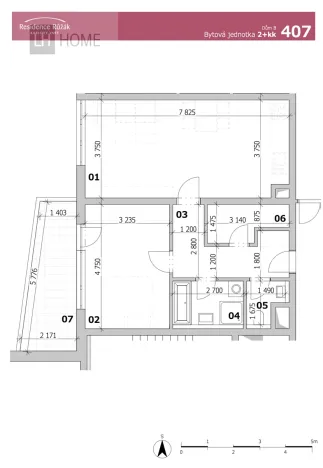
Nabízíme prodej bytu 2+kk - 68,47 m2 + balkón 10,23 m2 ve 4. nadzemním patře budovy B.
Součástí kupní ceny je garážové stání a sklep.
Byt bude situovaný na západní stranu.
Součástí kupní ceny jsou vinylové podlahy, keramické obklady a dlažby v koupelně a na wc. Sprchový kout a vana, skříňka s umyvadlem a zrcadlem + polička, topný žebřík. Interiérové dveře s obložkami -  bílé.
Součástí každého bytu bude videotelefon.
Komora o velikosti 3,83 m2.
Veškeré standardy bude možné vidět v budově C.
Nízké provozní náklady garantuje energetický štítek B.
Předpokládaný termín dokončení 2Q 2027.
Přihlášení k odběru
Nenechte si ujít nejnovější nabídky prodeje bytů 2+kk v Karlových Varech.
 
                                                                                     
                                                                                     
                                                                                     
                                                                                     
                                                                                     
                                                                                     
                                                                                     
                                                                                     
                                                                                     
                                                                                     
                                                                                     
                                                                                     
                                                                                     
                         
         
         
         
         
         
        