Prodej bytu 1+kk, Kralupy nad Vltavou, Přemyslova, 133 m2

Přemyslova, Kralupy nad Vltavou, Mikovice

5 090 000 Kč
/za nemovitost
Hypotéka od 22 749 Kč /měs. Chci hypotéku

Parametry bytu

Náklady na bydleníPoplatky na byt: 3 400,- | Poplatky na prodejnu: 1 280,-
AdresaPřemyslova, Kralupy nad Vltavou, Mikovice
ID164
StavbaCihlová
Stav objektuVelmi dobrý
Patro1.
Typ objektuPřízemní
Lokalita objektuSídliště
VlastnictvíOsobní
Užitná plocha133 m2
Podlahová plocha133 m2
Třída energetické náročnostiG - Mimořádně nehospodárná
Elektřina230V, 400V
PlynPlynovod
OdpadVeřejná kanalizace
TopeníLokální plynové, Lokální elektrické
KomunikaceAsfaltová
TelekomunikaceTelefon, Internet, Satelit, Kabelová televize, Kabelové rozvody
DopravaVlak, Dálnice, Silnice, MHD, Autobus
VodaMístní zdroj vody
Topné tělesoRadiátory
Zdroj topeníPlynový kotel, Elektrokotel
Zdroj teplé vodyPlynový kotel, Elektrokotel
Terasa
Výtah
Bezbarierový přístup
Parkování

Origo partneři v Kralupech nad Vltavou

Popis

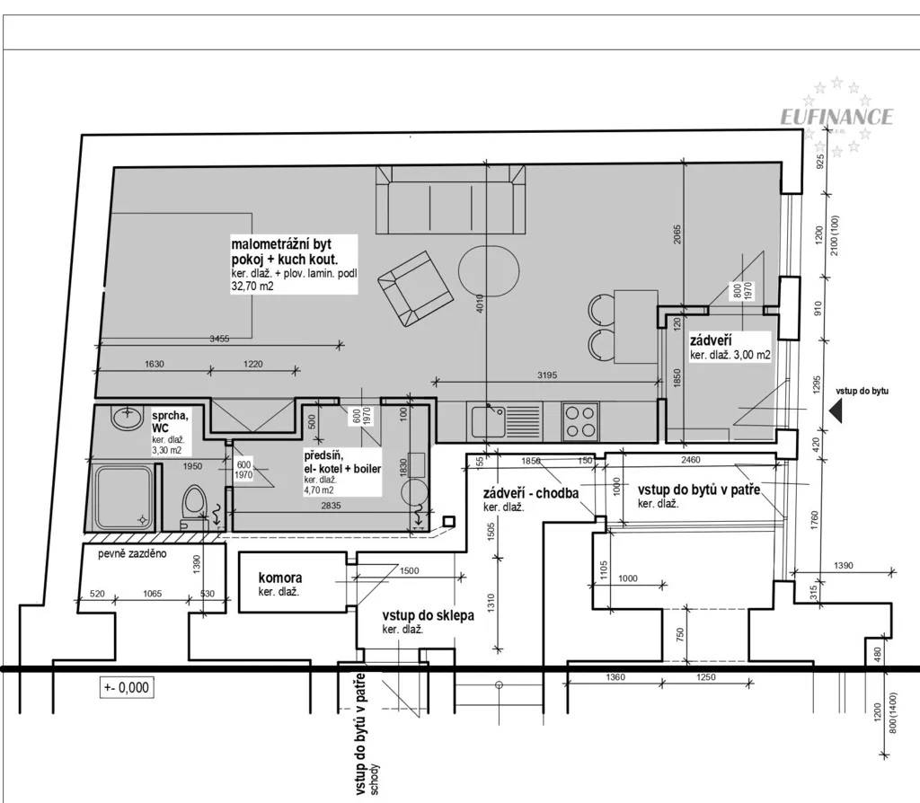
Nabízíme Vám zprostředkování prodeje bytu o dispozici 1+kk v osobním vlastnictví vč. nebytového prostoru (prodejny) o celkové výměře 132,6 m2. Oba prostory se nachází ve stejném 1. NP v bytovém domě v obci Kralupy nad Vltavou, ulice Přemyslova. K bytu a prodejně dále náleží společné sklepní prostory a dvě velké nevyužité místnosti, které lze pronajmout samostatně nebo připojit k bytu či k prodejně. Veškeré dispozice bytu, prodejny a úložných prostorů naleznete v přiloženém půdoryse. Parkování je možné zdarma před domem.
Bytová jednotka i prodejna jsou dlouhodobě pronajaté s čistým měsíčním nájmem 19 600,- slušným, dlouhodobým a platícím nájemcům, tak lze pouze převzít sjednané nájemní smlouvy, popř. obě nájemní smlouvy (byt i prodejna) lze vypovědět s tříměsíční výpovědní lhůtou. Nemovitost je vhodná pro investora, který nemovitost jen převezme nájemní smlouvy.
Celá nemovitost má platné Prohlášení vlastníka a je řádně zkolaudována, na vyžádání pošleme emailem. Na prodejnu je dále Stavebním úřadem schválena změna užívání na kosmetické a nehtové studio, nicméně nadále může zůstat stávající využití prodejny.
Bytová jednotka se nachází v zadní části v 1. NP cihlového domu, tudíž nemá okna do ulice (byt bez oken). Byt má zděné jádro, nové rozvody topení a vody v plastu a elektřiny v mědi. V bytě jsou k dispozici veškeré inženýrské sítě, kabelová televize vč. rychlostního internetu. Byt je vytápěn elektro kotlem do radiátorů. Na podlahách je položena dlažba a plovoucí podlaha.
Prodejna má rovněž zděné jádro a veškeré nové rozvody elektřiny, topení i vody, vytápění je plynovým kotlem do radiátorů.
Ve městě Kralupy n.Vlt. je kompletní občanská vybavenost (10 min pěšky): mateřské i základní školy, supermarkety, zdravotní středisko, nemocnice, pošta, banky. Přímo naproti domu se nachází autobusová zastávka, odkud lze dojet na vlakové nádraží nebo PID do Prahy na metro. 12 min pěšky je vzdálené autobusové a vlakové nádraží s přímým spojem 25 min do centra Prahy na Masarykovo či Hlavní nádraží (3 vlaky za hodinu). Právní servis vč. vyřízení úvěru zdarma.

Makléř

Máte zájem o tento byt?

Tímto, v souladu s nařízením Evropského parlamentu a Rady (EU) 2016/679, v platném znění, prohlašuji, že mi je alespoň 16 let a uděluji tak svůj souhlas se zpracováním zadaných údajů (jméno, telefon, e-mail, ip adresa) společnosti B3 Technology, s.r.o., IČ: 07330600, se sídlem Novostavby 126/23, 435 11 Lom (správce dat), za účelem předání dotazu z tohoto formuláře Vámi vybranému inzerentovi a zpětného kontaktování mé osoby. Osobní údaje bude správce zpracovávat manuálně i automaticky přímo prostřednictvím svých zaměstnanců. Informace předané tímto formulářem budou uloženy v databázi správce maximálně po dobu 10 let. Odvolání souhlasu s uložením a zpracováním poskytnutých dat lze e-mailem na info@origo-reality.cz. V případě podezření na neoprávněné použití Vámi poskytnutých údajů máte právo předat podnět k šetření Úřadu pro ochranu osobních údajů. Více informací
Chystáte se prodat nemovitost?
Pomůžeme Vám!

Přihlášení k odběru

Nenechte si ujít nejnovější nabídky prodeje bytů 1+kk v Kralupech nad Vltavou.