Prodej ubytování, Ostrava - Radvanice, U Lípy, 273 m2 (ID: 1796791)

U Lípy, Ostrava, Radvanice

13 900 000 Kč
/za nemovitost
Hypotéka od 62 125 Kč /měs. Chci hypotéku

Parametry nemovitosti

AdresaU Lípy, Ostrava, Radvanice
ID917161
StavbaCihlová
Stav objektuPo rekonstrukci
VybavenoČástečně
Lokalita objektuKlidná část obce
VlastnictvíOsobní
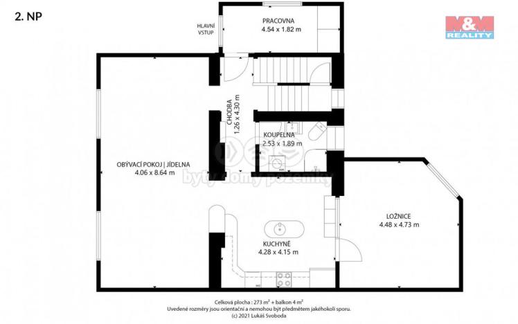
Užitná plocha273 m2
Plocha pozemku1248 m2

Origo partneři v Ostravě

Popis

Nabízíme k prodeji velmi unikátní nemovitost, jejíž styl je naprosto autentický a nekopírovatelný.
Honosné vícegenerační sídlo, rozprostírající se na třech podlažích dosud sloužilo jako rodinný dům.
Možná nastal čas na změnu a využít tuto prodejní příležitost k investici, která následně povede ke krátkodobému pronájmu s výnosem zajímavých částek.
Součástí komplexu je wellness s celoročním vyhřívaným bazénem (solární panely), saunou, společenskou místností a dobře vybaveným barem.
Na famózní zahradě se krom dostatku soukromí i prostoru pro venkovní aktivity nachází také masivní krb, altánek, zastřešené technické zázemí, které lze využít i jinak, stylová garáž, zastřešené stání a mnoho další parády.
Celý pozemek je oplocen. Na přilehlém dvorku je kvalitní a udržovanou zámková dlažba, kde také najdete kryté stání.

Makléř

Máte zájem o tuto nemovistost?

Tímto, v souladu s nařízením Evropského parlamentu a Rady (EU) 2016/679, v platném znění, prohlašuji, že mi je alespoň 16 let a uděluji tak svůj souhlas se zpracováním zadaných údajů (jméno, telefon, e-mail, ip adresa) společnosti B3 Technology, s.r.o., IČ: 07330600, se sídlem Novostavby 126/23, 435 11 Lom (správce dat), za účelem předání dotazu z tohoto formuláře Vámi vybranému inzerentovi a zpětného kontaktování mé osoby. Osobní údaje bude správce zpracovávat manuálně i automaticky přímo prostřednictvím svých zaměstnanců. Informace předané tímto formulářem budou uloženy v databázi správce maximálně po dobu 10 let. Odvolání souhlasu s uložením a zpracováním poskytnutých dat lze e-mailem na info@origo-reality.cz. V případě podezření na neoprávněné použití Vámi poskytnutých údajů máte právo předat podnět k šetření Úřadu pro ochranu osobních údajů. Více informací
Chystáte se prodat nemovitost?
Pomůžeme Vám!

Přihlášení k odběru

Nenechte si ujít nejnovější nabídky prodeje ubytování v Ostravě.