Prodej výrobních prostor, Věžky, 2322 m2

Věžky

Cena na vyžádání
/za nemovitost
cena u makléře
Získejte výhodnou HYPOTÉKU Chci hypotéku

Parametry nemovitosti

AdresaVěžky
ID160-NP02762
StavbaCihlová
Stav objektuDobrý
Typ objektuPřízemní
Lokalita objektuOkraj obce
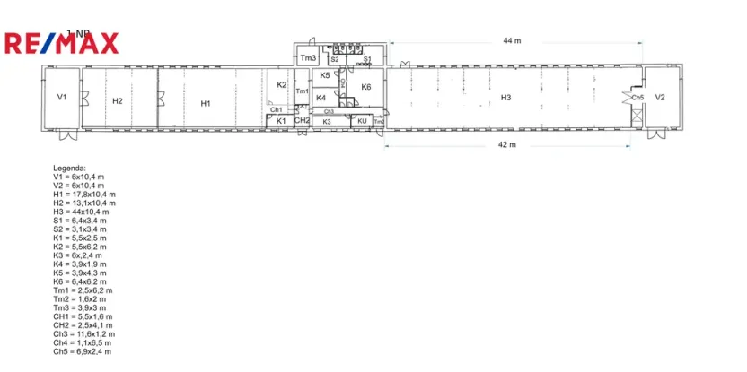
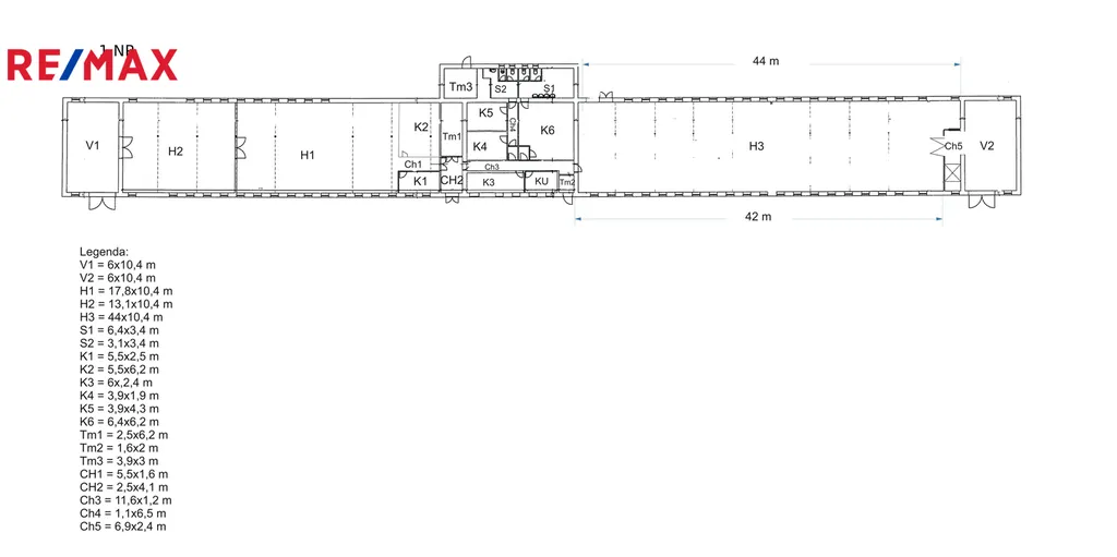
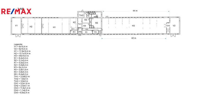
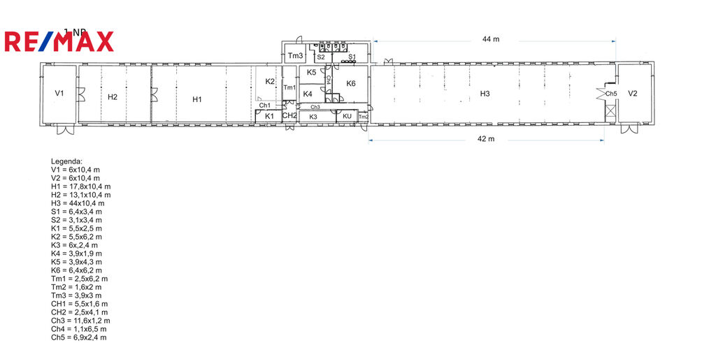
Užitná plocha2322 m2
Zastavěná plocha1342 m2
Třída energetické náročnostiG - Mimořádně nehospodárná
Elektřina230V, 400V
PlynPlynovod
OdpadVeřejná kanalizace
KomunikaceAsfaltová
TelekomunikaceTelefon, Internet
DopravaDálnice, Silnice, Autobus
VodaVodovod
Výtah
Převod do OV
Parkování

Origo partneři v Věžkách

Popis

Hledáte místo pro své podnikání nebo zajímavou investici?

Tato samostatně stojící komerční budova ve Věžkách nabízí široké možnosti využití – ať už pro lehkou výrobu, skladování, logistiku, dílnu, sídlo firmy nebo jako investiční příležitost k pronájmu. Nachází se v okrajové části obce s dobrou dostupností do Kroměříže, Hulína i na dálnici D1 (cca 10 minut jízdy), což z ní dělá strategické místo pro podnikatelskou činnost. Hlavní budova nabízí v 1.NP rozlohu přibližně 1152 m² a je po po rekonstrukci převážné části rozvodů elektřiny, podlah, oken a zateplení stropu. V podkroví se nachází skladové prostory bez vytápění o celkové rozloze cca 1168 m². Do podkroví vede funkční průmyslový výtah, který usnadňuje manipulaci s materiálem i zbožím. Součástí objektu jsou na obou krajních stranách stropní otvory, skrz které lze materiál/zboží snadno dodat do podkroví vysokozdvižným vozíkem. Součástí projede je i přes cestu sousedící budova, která slouží ke skladovým účelům a je celkově v původním stavu se zastavěnou plochou 95 m².

Klíčové vlastnosti nemovitosti:
- Robustní zděná konstrukce v dobrém technickém stavu
- Přímý přístup z obecní komunikace, pohodlné parkování i pro větší vozy
- Zavedena elektřina (včetně 400 V), voda, kanalizace, plyn
- Možnost rozšíření nebo rekonstrukce dle potřeb nového vlastníka
- Vlastní pozemek – vhodný i pro skladování, garáže nebo další výstavbu
- Již zavedená nabíječka pro elektromobily

Potenciál využití:
● Výrobní prostory
● Sklad/dílny/logistika
● E-shop s výdejnou
● Investiční objekt pro pronájem podnikatelům
● Kombinace komerce a kanceláří

Lokalita s potenciálem:
Obec Věžky leží v dojezdové vzdálenosti od Kroměříže a Zlína, s napojením na důležité dopravní tahy. Budova se nachází v klidném prostředí, ale s výbornou dostupností – ideální kombinace pro podnikání bez zbytečných kompromisů.

📞 V případě zájmu mě neváhejte kontaktovat pro více informací či prohlídku nemovitosti.
Tato nemovitost čeká na nové využití – bude to právě váš projekt? Prodávající si vyhrazuje právo vybrat kupujícího na základě jím zvolených kritérií.

Makléř

Máte zájem o tuto nemovistost?

Tímto, v souladu s nařízením Evropského parlamentu a Rady (EU) 2016/679, v platném znění, prohlašuji, že mi je alespoň 16 let a uděluji tak svůj souhlas se zpracováním zadaných údajů (jméno, telefon, e-mail, ip adresa) společnosti B3 Technology, s.r.o., IČ: 07330600, se sídlem Novostavby 126/23, 435 11 Lom (správce dat), za účelem předání dotazu z tohoto formuláře Vámi vybranému inzerentovi a zpětného kontaktování mé osoby. Osobní údaje bude správce zpracovávat manuálně i automaticky přímo prostřednictvím svých zaměstnanců. Informace předané tímto formulářem budou uloženy v databázi správce maximálně po dobu 10 let. Odvolání souhlasu s uložením a zpracováním poskytnutých dat lze e-mailem na info@origo-reality.cz. V případě podezření na neoprávněné použití Vámi poskytnutých údajů máte právo předat podnět k šetření Úřadu pro ochranu osobních údajů. Více informací
Chystáte se prodat nemovitost?
Pomůžeme Vám!

Přihlášení k odběru

Nenechte si ujít nejnovější nabídky prodeje výrobních prostor v Věžkách (okr. Kroměříž).