Prodej činžovního domu, Hlinsko, Poděbradovo náměstí, 1787 m2 (ID: 1792804)

Poděbradovo náměstí, Hlinsko

19 990 000 Kč
/za nemovitost
Hypotéka od 89 343 Kč /měs. Chci hypotéku

Parametry nemovitosti

AdresaPoděbradovo náměstí, Hlinsko
ID874673
StavbaCihlová
Stav objektuDobrý
VybavenoAno
Lokalita objektuCentrum obce
VlastnictvíOsobní
Užitná plocha1787 m2
Plocha pozemku615 m2

Origo partneři v Hlinsku

Popis

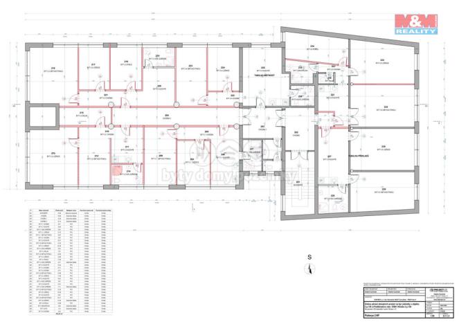
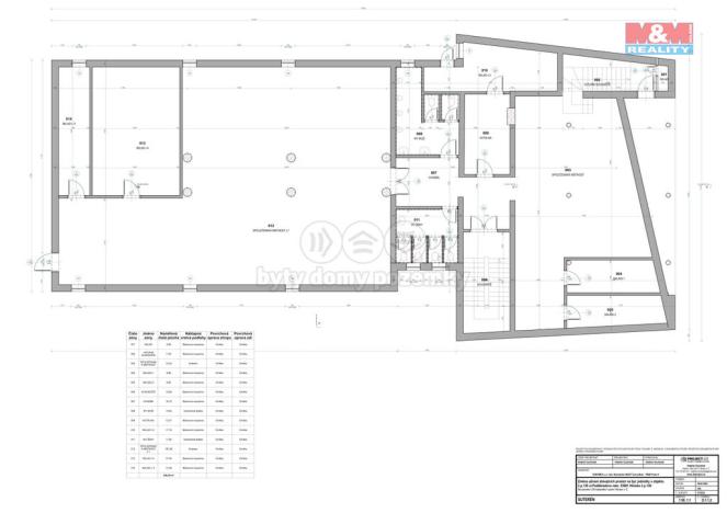
Nabízíme Vám k prodeji dům v Hlinsku, pod který spadá zděný objekt centru sestávající z 10 bytových jednotek, prodejny a většího komerčního prostoru v suterénu (původně diskotéky). Všechny jednotky jsou v podobném stavu po rekonstrukci v r. 2020, kde proběhla výměna rozvodů (voda, odpady, elektřina), okna dvojskla, plyn, topení, PVC, vymalování, koupelna, bojler a WC v každém bytě. Hlavní el. měřidla jsou tři: pro suterén, prodejnu a pro byty, které mají pak podružné měření. Plynový kotel je jeden hlavní. 1. PP suterén, 1. NP prodejna + vedlejší prostory a jeden komerční prostor, 2. NP šest bytů, 3. NP čtyři byty, 4. NP půda viz. plánky dále. Všechny jednotky i prodejna momentálně obsazeny, možné přenechat i s fungujícím správcem. Kolaudace v procesu. Suterén momentálně volný a připravený na další podnikatelskou činnost. Konkrétní čísla můžeme poslat, momentálně čistý výnos 5,5 % p.a. V případě zájmu a možné prohlídky volejte.

Makléř

Máte zájem o tuto nemovistost?

Tímto, v souladu s nařízením Evropského parlamentu a Rady (EU) 2016/679, v platném znění, prohlašuji, že mi je alespoň 16 let a uděluji tak svůj souhlas se zpracováním zadaných údajů (jméno, telefon, e-mail, ip adresa) společnosti B3 Technology, s.r.o., IČ: 07330600, se sídlem Novostavby 126/23, 435 11 Lom (správce dat), za účelem předání dotazu z tohoto formuláře Vámi vybranému inzerentovi a zpětného kontaktování mé osoby. Osobní údaje bude správce zpracovávat manuálně i automaticky přímo prostřednictvím svých zaměstnanců. Informace předané tímto formulářem budou uloženy v databázi správce maximálně po dobu 10 let. Odvolání souhlasu s uložením a zpracováním poskytnutých dat lze e-mailem na info@origo-reality.cz. V případě podezření na neoprávněné použití Vámi poskytnutých údajů máte právo předat podnět k šetření Úřadu pro ochranu osobních údajů. Více informací
Chystáte se prodat nemovitost?
Pomůžeme Vám!

Přihlášení k odběru

Nenechte si ujít nejnovější nabídky prodeje činžovních domů v Hlinsku (okr. Chrudim).