Prodej bytu 4+kk, Praha - Hostivař, Bratislavská, 94 m2

Bratislavská, Praha, Hostivař

16 900 000 Kč
/za nemovitost
Hypotéka od 75 533 Kč /měs. Chci hypotéku

Parametry bytu

AdresaBratislavská, Praha, Hostivař
ID007065
StavbaSkeletová
Stav objektuVelmi dobrý
Patro3. z 6
VlastnictvíOsobní
Užitná plocha94 m2
Podlahová plocha125 m2
Třída energetické náročnostiB - Velmi úsporná
Elektřina230V
VodaVodovod
Topné tělesoRadiátory
Zdroj topeníÚstřední dálkové
Balkon
Garáž
Sklep
Výtah
Parkování

Origo partneři v Praze 10

Stěhovací služby

Výkup a prodej starého nábytku

Popis

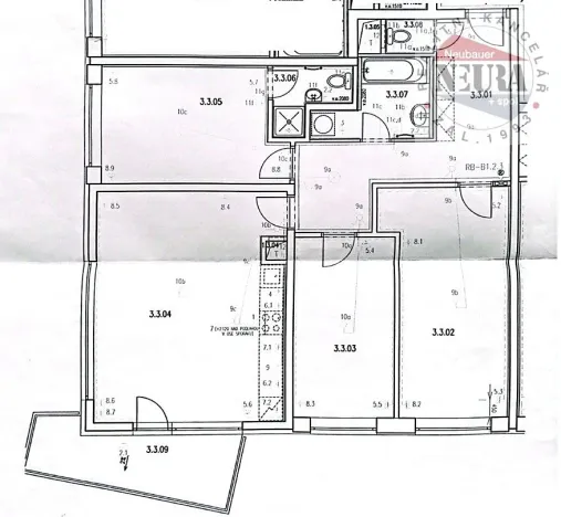
Prodej bytu 4+kk s balkonem, sklepem a garážovým stáním, Praha 10 Hostivař, Bratislavská,

prostorný byt o celkové výměře 93,93 m2 + balkon 7,95 m2 (výměry dle prohlášení vlastníka) ve 3. nadzemním podlaží (2. patře) bytového domu, dům je vyzdívaný skelet, rok výstavby 2006, k bytu dále patří garážové stání cca 18 m2 ve společné garáži a sklep o výměře 5,39 m2 v 1. podzemním podlaží, dům je udržovaný včetně soukromého oploceného parku s dětským hřištěm ve vnitrobloku, bytový areál Slunečný vršek,

výměry místností cca: obývací pokoj s kuchyňským koutem 28,62 m2, pokoje 17,10; 12,10 a 13,46 m2, WC 1,11 m2, koupelna s vanou 4,51 m2, koupelna se sprchovým koutem a WC 2,63 m2, předsíň 14,40 m2,

v bytě jsou dřevěné a laminátové plovoucí podlahy a keramické dlažby, k dispozici je také vysokorychlostní připojení k internetu a kabelová televize, měsíční poplatky SVJ ve výši 6.160 Kč, orientace bytu na jih a západ,

klidná lokalita s dobrou dopravní dostupností (autobusem k zastávce tramvají, ke stanicím metra Skalka a Opatov či na vlakové nádraží Zahradní Město), v těsné blízkosti veškerá občanská vybavenost,

PENB třída B velmi úsporná

Makléř

Máte zájem o tento byt?

Tímto, v souladu s nařízením Evropského parlamentu a Rady (EU) 2016/679, v platném znění, prohlašuji, že mi je alespoň 16 let a uděluji tak svůj souhlas se zpracováním zadaných údajů (jméno, telefon, e-mail, ip adresa) společnosti B3 Technology, s.r.o., IČ: 07330600, se sídlem Novostavby 126/23, 435 11 Lom (správce dat), za účelem předání dotazu z tohoto formuláře Vámi vybranému inzerentovi a zpětného kontaktování mé osoby. Osobní údaje bude správce zpracovávat manuálně i automaticky přímo prostřednictvím svých zaměstnanců. Informace předané tímto formulářem budou uloženy v databázi správce maximálně po dobu 10 let. Odvolání souhlasu s uložením a zpracováním poskytnutých dat lze e-mailem na info@origo-reality.cz. V případě podezření na neoprávněné použití Vámi poskytnutých údajů máte právo předat podnět k šetření Úřadu pro ochranu osobních údajů. Více informací
Chystáte se prodat nemovitost?
Pomůžeme Vám!

Přihlášení k odběru

Nenechte si ujít nejnovější nabídky prodeje bytů 4+kk v Praze 10.