Prodej restaurace, Český Šternberk, 480 m2 (ID: 1788601)

Český Šternberk

26 000 000 Kč

včetně provize RK
Hypotéka od 116 204 Kč /měs. Chci hypotéku

Parametry nemovitosti

AdresaČeský Šternberk
ID00003
StavbaSmíšená
Stav objektuDobrý
VybavenoAno
Lokalita objektuCentrum obce
Užitná plocha480 m2
Zastavěná plocha499 m2
Plocha pozemku801 m2
Třída energetické náročnostiG - Mimořádně nehospodárná

Origo partneři v Českém Šternberku

Popis

Zavedená, prosperující a zisková restaurace Pod Hradem v Českém Šternberku, která nemá v širokém okolí významnou konkurenci.

Návratnost investice nejpozději v rozmezí 10 až 13 let při současném provozu. Znalcem vypracován tržní odhad nemovité věci společně s výnosností, vše bude předloženo. Podrobná roční rozvaha k dispozici.

Představuji vám jedinečnou příležitost převzít celoročně perfektně fungující podnik s dlouhou tradicí a výbornou pověstí. Restaurace Pod Hradem těží ze své strategické polohy v turisticky atraktivní lokalitě přímo pod hradem Český Šternberk (návštěvníků více jak 85 tis/rok). Řeka Sázava zajišťuje další hosty v podobě vodáků během sezony, kolem restaurace vedou tři cyklostezky. Můžete zde pořádat svatby, oslavy, firemní akce. V sezoně se zde stojí fronty na volný stůl.

Restaurace si vybudovala natolik dobrou pověst, že je pravidelně navštěvována i obyvateli z okolí a širokého regionu.

Okamžitá připravenost k provozu, stačí nakoupit suroviny a můžete fungovat bez dalších výrazných investic.

Hlavní budova:
Užitná plocha přízemí 331 m² (restaurace, výčep, dětský koutek, kuchyně s chladícím boxem, sociální zařízení, sklady a chodby). Excelentní, funkčně řešený otevřený prostor hlavní části restaurace s výčepem a navazující kuchyní. Stávající kapacita přes 100 osob. Kompletní náklady na provoz restaurace (elektřina, vytápění, plyn, voda, odpad) činí 380 tis. Kč/rok.

Sklepní prostory pod budovou 56 m², sloužící pro uskladnění, technické zázemí, případně část jako kotelna a další jiné využití.

Letní zahrádka o ploše 250 m², současná kapacita 100 osob.

Samostatná prodejna zmrzliny o 18 m² s výdejním okénkem do ulice, vybavená a připravená k provozu s kompletním zázemím, která výrazně přispívá k celkovému obratu podniku.

Skladovací prostory o velikosti 45 m² v části naproti hlavní budově nabízí možnost vybudování menšího vinného sklípku a třeba i udírny, která zde již v minulosti byla.

Vjezd pro zásobování zajištěn vraty z ulice přímo do dvora.

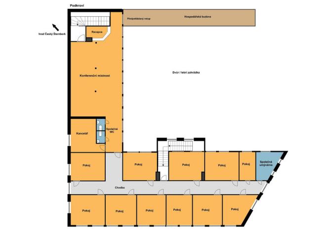
Plocha podkroví 300 m² nabízí možnost vybudování ubytování. Dříve zde pokoje již byly a návrat k využití je realizovatelný. Počítáno s 11 pokoji, konferenční místností, recepcí a společným sociálním zařízením. Vhodné si zde vybudovat vlastní bydlení.

Rekonstrukce stavebních a technických prvků proběhla v letech 2014–2017, zateplení obvodového zdiva, podlah a stropů mezi přízemím a podkrovím, výměna stropních trámů, instalace plastových, dřevěných oken a dveří. Komplet nová elektroinstalace, rozvaděč 3x80A, vodoinstalace. Vytápění elektrickým kotlem s ústředním topením. Vyvložkování komínu, možnost okamžitého napojení kotle na TP. Připojení na obecní vodovod a vlastní studnu (pro užitnou vodu), odpad řešen přes velkokapacitní vlastní ČOV. Zabezpečeno alarmem, kamerami.
Rozšíření kapacity restaurace a dvorku přidáním dalších stolů umožní navýšit počet hostů během nejvytíženějších období, dále pak zprovoznění vinného sklípku v hospodářské budově.

Restaurace je vybavena profesionální technikou z nerezové oceli a ostatním vybavením (komplet vybavení kuchyně, kuchyňské spotřebiče, míchače, konvektomaty, kávovary, zmrzlinovač, platební terminály, stoly, židle atd). Veškeré movité vybavení je udržováno, repasováno, kontrolováno, s revizemi, ve výborném stavu a může být odkoupeno za cenu 2 mil. Kč + DPH. Kompletní seznam zařízení bude předložen vážným zájemcům.

Nemovitost není v povodňovém pásmu ani 100 leté vody, ochranné památkové pásmo.

Parkování zajištěno na obecním parkovišti před restaurací.

Současní majitelé odcházejí s těžkým srdcem, nikoliv však z ekonomických důvodů – podnik je v perfektní kondici, plně fungující a připraven na další provoz a rozvoj. Při prohlídce vám vše rád vysvětlím.

Veškeré stavební projekty, pasporty, revize, opravy, přehled nákladů jsou k dispozici.

Kontaktujte mě ještě dnes, podobné příležitosti jsou velmi vzácné.

Více informací najdete na mém webu, odkaz v profilu makléře.

Makléř

Máte zájem o tuto nemovistost?

Tímto, v souladu s nařízením Evropského parlamentu a Rady (EU) 2016/679, v platném znění, prohlašuji, že mi je alespoň 16 let a uděluji tak svůj souhlas se zpracováním zadaných údajů (jméno, telefon, e-mail, ip adresa) společnosti B3 Technology, s.r.o., IČ: 07330600, se sídlem Novostavby 126/23, 435 11 Lom (správce dat), za účelem předání dotazu z tohoto formuláře Vámi vybranému inzerentovi a zpětného kontaktování mé osoby. Osobní údaje bude správce zpracovávat manuálně i automaticky přímo prostřednictvím svých zaměstnanců. Informace předané tímto formulářem budou uloženy v databázi správce maximálně po dobu 10 let. Odvolání souhlasu s uložením a zpracováním poskytnutých dat lze e-mailem na info@origo-reality.cz. V případě podezření na neoprávněné použití Vámi poskytnutých údajů máte právo předat podnět k šetření Úřadu pro ochranu osobních údajů. Více informací
Chystáte se prodat nemovitost?
Pomůžeme Vám!

Přihlášení k odběru

Nenechte si ujít nejnovější nabídky prodeje restaurací v Českém Šternberku.

Podobné nabídky