Prodej restaurace, Český Šternberk, 480 m2 (ID: 1598624)

Český Šternberk

26 000 000 Kč
/za nemovitost
možnost zakoupení veškerého movitého funkčního vybavení za cenu 2mil. Kč, včetně provize, včetně právního servisu
Hypotéka od 116 204 Kč /měs. Chci hypotéku

Parametry nemovitosti

AdresaČeský Šternberk
ID00003-1
StavbaSmíšená
Stav objektuVelmi dobrý
VybavenoAno
Lokalita objektuCentrum obce
Užitná plocha480 m2
Zastavěná plocha499 m2
Podlahová plocha750 m2
Elektřina230V, 400V
OdpadČOV pro celý objekt, Jímka
KomunikaceAsfaltová
TelekomunikaceTelefon, Internet
DopravaVlak, Dálnice, Silnice, MHD, Autobus
VodaVodovod, Studna
Topné tělesoRadiátory
Zdroj topeníElektrokotel
Garáž
Výtah
Parkování

Origo partneři v Českém Šternberku

Popis

Zavedená, prosperující a zisková restaurace Pod Hradem v Českém Šternberku, která nemá v širokém okolí významnou konkurenci.

Návratnost investice nejpozději v rozmezí 10 až 13 let při současném provozu. Znalcem vypracován tržní odhad nemovité věci společně s výnosností, vše bude předloženo. Podrobná roční rozvaha k dispozici.

Představuji vám jedinečnou příležitost převzít celoročně perfektně fungující podnik s dlouhou tradicí a výbornou pověstí. Restaurace Pod Hradem těží ze své strategické polohy v turisticky atraktivní lokalitě přímo pod hradem Český Šternberk a nedaleko řeky Sázavy. Ročně sem zavítají tisíce návštěvníků, kteří tvoří stabilní klientelu restaurace. V sezoně zde stojí fronty na volný stůl.

Proč právě tato restaurace?
Okamžitá připravenost k provozu, stačí nakoupit suroviny a můžete fungovat bez dalších výrazných investic.
Hrad Český Šternberk přitahuje návštěvníky po celý rok (více jak 85 tis/rok) a většina z nich zavítá do restaurace.
Řeka Sázava zajišťuje další proud hostů v podobě vodáků během sezony.
Kolem restaurace vedou tři cyklostezky. Restaurace si vybudovala natolik dobrou pověst, že je pravidelně navštěvována i obyvateli z okolí a širokého regionu.
A dále pořádání svateb, oslav, firemních akcí.

Prostor a vybavení hlavní budovy:
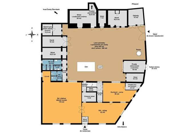
Užitná plocha přízemí 331 m2 (restaurace, výčep, dětský koutek, kuchyně s chladícím boxem, sociální zařízení, sklady a chodby).
Excelentní, funkčně řešený otevřený prostor hlavní části restaurace s výčepem a navazující kuchyní.
Restaurace se stávající kapacitou přes 100 osob.

Sklep o 56 m2 pod hlavní budovou, technické zázemí, případně část jako kotelna a další jiné využití.

Dvůr: Letní zahrádka o rozloze 250 m2, současná kapacita 100 osob.

Prodejna zmrzliny a občerstvení: Samostatný prostor 18 m2 s výdejním okénkem do ulice a dvoru, plně vybavený a připravený k provozu, výrazně přispívá k celkovému obratu podniku

Další skladovací prostory o 45 m2 v samostatné části naproti hlavní budově s možností vybudování menšího vinného sklípku a třeba i udírny, která zde již v minulosti byla.

Vjezd pro zásobování zajištěn vraty z ulice přímo do dvora.

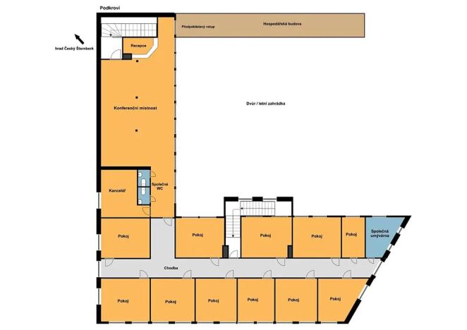
Podkroví nabízí 300 m2 a možnost vybudování ubytování, které zde již v minulosti bylo. Na tento záměr byl vypracován projekt. Počítáno s 11 pokoji, konferenční místností, recepcí, sociálním zařízením. Realizaci může podpořit dotační program, který bude otevřen v roce 2025. A také je k zamyšlení, zda si zde nevybudovat vlastní bydlení.

Spolupráce:
Možnost spolupracovat s místními živnostníky, a především navázat a pokračovat ve spolupráci s hradem.

Technický stav a modernizace:
Rekonstrukce stavebních a technických prvků proběhla v letech 2014–2017.
Zateplení obvodového zdiva, podlah a stropů mezi přízemím a podkrovím.
Výměna stropních trámů, instalace plastových, dřevěných oken a dveří.
Kompletně nová elektroinstalace, vodoinstalace.
Vytápění elektrickým kotlem s ústředním topením.
Kompletní náklady na provoz restaurace (elektřina, vytápění, plyn, voda, odpad) činí 380 tis. Kč/rok.
Vyvložkování komínu, možnost napojení kotle na TP.
Připojení na obecní vodovod a vlastní studnu (pro užitnou vodu), odpad řešen přes velkokapacitní vlastní ČOV.
Zabezpečeno alarmem, kamerami.

Rekapitulace možnosti rozšíření:
Kapacita restaurace a dvorku – přidání dalších stolů umožní navýšit počet hostů během nejvytíženějších období.
Zprovoznění vinného sklípku ve skladové hospodářské budově.
Ubytování v podkrovním prostoru.

Movité vybavení:
Restaurace je vybavena profesionální technikou z nerezové oceli a ostatním vybavením (komplet vybavení kuchyně, kuchyňské spotřebiče, míchače, konvektomaty, kávovary, zmrzlinovač, platební terminály, stoly, židle atd). Veškeré movité vybavení je udržováno, repasováno, s revizemi, ve výborném stavu a může být odkoupeno za cenu 2 mil. Kč + DPH. Kompletní seznam zařízení bude předložen vážným zájemcům.

Pásma:
Nemovitost není v povodňovém pásmu ani 100 leté vody, ochranné památkové pásmo.

Parkování:
Parkování zajištěno na prostorném obecním parkovišti před restaurací.

Historie, která láká:
Restaurace Pod Hradem je místem s bohatou historií sahající až do 18. století. I přes náročná období, si vždy dokázala udržet své místo v srdcích místních obyvatel i turistů. Bývalým majitelem byl i pan Jiří Šternberk.

Prodej z osobních důvodů:
Současní majitelé odcházejí s těžkým srdcem, nikoliv však z ekonomických důvodů – podnik je v perfektní kondici, plně fungující a připraven na další provoz a rozvoj. Při prohlídce vše rád vysvětlím.

Veškeré stavební projekty, pasporty, dokumentace revizí, opravy i detailní přehled nákladů jsou k dispozici. Vážní zájemci mohou počítat s osobní prohlídkou a představením celé nemovitosti i jejího provozu. V případě zájmu může další prohlídka probíhat za účasti majitele.

Kontaktujte mě ještě dnes, podobné příležitosti jsou velmi vzácné. Více najdete na mém webu, odkaz v profilu makléře.

Makléř

Máte zájem o tuto nemovistost?

Tímto, v souladu s nařízením Evropského parlamentu a Rady (EU) 2016/679, v platném znění, prohlašuji, že mi je alespoň 16 let a uděluji tak svůj souhlas se zpracováním zadaných údajů (jméno, telefon, e-mail, ip adresa) společnosti B3 Technology, s.r.o., IČ: 07330600, se sídlem Novostavby 126/23, 435 11 Lom (správce dat), za účelem předání dotazu z tohoto formuláře Vámi vybranému inzerentovi a zpětného kontaktování mé osoby. Osobní údaje bude správce zpracovávat manuálně i automaticky přímo prostřednictvím svých zaměstnanců. Informace předané tímto formulářem budou uloženy v databázi správce maximálně po dobu 10 let. Odvolání souhlasu s uložením a zpracováním poskytnutých dat lze e-mailem na info@origo-reality.cz. V případě podezření na neoprávněné použití Vámi poskytnutých údajů máte právo předat podnět k šetření Úřadu pro ochranu osobních údajů. Více informací
Chystáte se prodat nemovitost?
Pomůžeme Vám!

Přihlášení k odběru

Nenechte si ujít nejnovější nabídky prodeje restaurací v Českém Šternberku.

Origo tipy

Podobné nabídky