Prodej skladu, Pardubice, 5239 m2

Pardubice, Semtín

28 900 000 Kč
/za nemovitost
bez poplatků, včetně provize
Hypotéka od 129 165 Kč /měs. Chci hypotéku

Parametry nemovitosti

AdresaPardubice, Semtín
ID53116
StavbaSmíšená
Stav objektuDobrý
Užitná plocha5239 m2
Třída energetické náročnostiG - Mimořádně nehospodárná

Origo partneři v Pardubicích

Popis

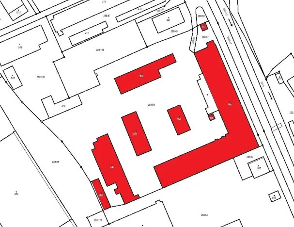
Prodej souboru 8 budov (staveb) ve výrobně skladovacím areálu; podlahová plocha 5.239 m2, průmyslová část Semtín, Pardubice

Jedná se o transparentní prodej formou elektronického výběrového řízení. Více informací na: www.verejnedrazby.cz/A7719

Budovy (stavby) jsou situovány v areálu průmyslové zóny. Stavby jsou umístěny na pozemcích ve vlastnictví třetí strany a tvoří relativně samostatný soubor uvnitř průmyslové zóny, který ale není od okolních staveb v areálu nijak oddělen. Lokalita se nachází v jihozápadní části průmyslové zóny, nedaleko od oblouku komunikace č. 211, která v této části vytváří hranici průmyslové zóny. Komunikace je vedena z Pardubic severozápadním směrem do města Lázně Bohdaneč a následně do Chlumce nad Cidlinou.

Administrativní budova M15/1 - podlahová plocha 888 m2
Hala M15 - podlahová plocha 2899 m2
Hala M15/3 - podlahová plocha 683 m2
Hala M15/10 - podlahová plocha 360 m2
Hala M15/8 - podlahová plocha 290 m2
Hala M15/5 - podlahová plocha 119 m2

Administrativní budova M15/1: Stavba je tvaru dvou na sebe navazujících obdélníků a je s dvěma nadzemními podlažími bez podsklepení.

Dispoziční řešení:
Zúžená část budovy tvoří severovýchodní křídlo. Vstup do budovy je samostatný pro I. a pro II. NP,. V I. NP je hlavním komunikačním prostorem chodba v podélné ose stavby, z které je přístup do většiny místností v podlaží. V I. NP jsou umístěny sprchy, umývárny, šatny zaměstnanců a sociální zařízení. Schodiště do II. NP není z I. NP přístupné, vedle schodišťového prostoru je umístěna výměníková stanice. Vstup do II. NP je samostatný. Dispozice vychází z podobného uspořádání jako v I. NP, většina místností je přístupná z podélné chodby v ose stavby. V zúžené severovýchodní části stavby je umístěna zasedací místnost, druhá menší zasedací místnost se nachází u jihozápadního štítu. Veškeré ostatní místnosti jsou užívány jako kanceláře, které doplňují tři malé sklady, sociální zařízení pro muže a ženy a čajová kuchyně.

Kompletní informace k halám jsou uvedeny ve znaleckém posudku - k dispozici přímo na kartě výběrového řízení.

Jako příslušenství jsou považovány přístřešky:
Přístřešek na pozemku st. 947 - 24 m2
Přístřešek na pozemku st. 955 - 17 m2

Adresa: Semtín 273, 533 53 Pardubice VII - Semtín

Forma prodeje: tříkolové elektronické výběrové řízení
Minimální požadovaná cena: 28.900.000,- Kč
Kauce: 1.445.000,- Kč
Termín složení kauce a doručení podepsané Smlouvy o složení kauce: do 7.10.2025 do 15:00 hod.
Termín podání cenové nabídky (2.kolo): do 8.10.2025 do 12:00 hod.
Termín podání finální nabídky (3.kolo): do 8.10.2025 do 14:00 hod.

Makléř

Máte zájem o tuto nemovistost?

Tímto, v souladu s nařízením Evropského parlamentu a Rady (EU) 2016/679, v platném znění, prohlašuji, že mi je alespoň 16 let a uděluji tak svůj souhlas se zpracováním zadaných údajů (jméno, telefon, e-mail, ip adresa) společnosti B3 Technology, s.r.o., IČ: 07330600, se sídlem Novostavby 126/23, 435 11 Lom (správce dat), za účelem předání dotazu z tohoto formuláře Vámi vybranému inzerentovi a zpětného kontaktování mé osoby. Osobní údaje bude správce zpracovávat manuálně i automaticky přímo prostřednictvím svých zaměstnanců. Informace předané tímto formulářem budou uloženy v databázi správce maximálně po dobu 10 let. Odvolání souhlasu s uložením a zpracováním poskytnutých dat lze e-mailem na info@origo-reality.cz. V případě podezření na neoprávněné použití Vámi poskytnutých údajů máte právo předat podnět k šetření Úřadu pro ochranu osobních údajů. Více informací
Chystáte se prodat nemovitost?
Pomůžeme Vám!

Přihlášení k odběru

Nenechte si ujít nejnovější nabídky prodeje skladů v Pardubicích.