Prodej rodinného domu, Skrbeň, Slunečná, 103 m2 (ID: 1780989)

Slunečná, Skrbeň

8 500 000 Kč
/za nemovitost
Hypotéka od 37 990 Kč /měs. Chci hypotéku

Parametry domu

AdresaSlunečná, Skrbeň
ID895094
StavbaCihlová
Stav objektuVe výstavbě
VybavenoNe
Druh objektuRohový
Lokalita objektuKlidná část obce
VlastnictvíOsobní
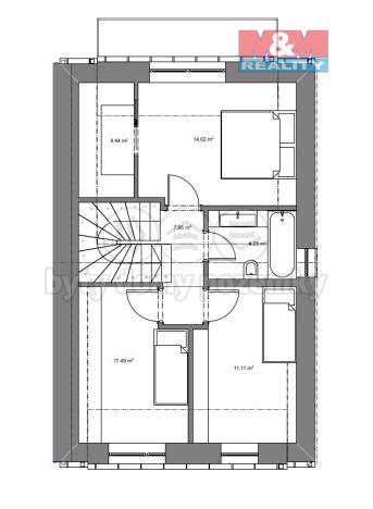
Užitná plocha103 m2
Plocha pozemku302 m2
Balkon

Origo partneři v Skrbni

Popis

Nabízíme k prodeji moderní rodinný dům ve fázi výstavby, který se nachází v klidné části obce Skrbeň. Tento cihlový dům je ideální volbou pro ty, kteří hledají komfortní bydlení v příjemném prostředí. Dům disponuje dvěma nadzemními podlažími a nabízí celkovou užitnou plochu 103 m². Skládá se ze čtyř místností, které poskytují dostatek prostoru pro rodinný život. Celková plocha pozemku činí 302 m² a díky rohové poloze nabízí větší soukromí a možnosti úpravy zahrady podle vlastních představ. Tato nemovitost je skvělou příležitostí pro ty, kteří chtějí bydlet v klidné lokalitě s dobrou dostupností do okolních měst. Neváhejte nás kontaktovat pro více informací či prohlídku.

Makléř

Máte zájem o tento dům?

Tímto, v souladu s nařízením Evropského parlamentu a Rady (EU) 2016/679, v platném znění, prohlašuji, že mi je alespoň 16 let a uděluji tak svůj souhlas se zpracováním zadaných údajů (jméno, telefon, e-mail, ip adresa) společnosti B3 Technology, s.r.o., IČ: 07330600, se sídlem Novostavby 126/23, 435 11 Lom (správce dat), za účelem předání dotazu z tohoto formuláře Vámi vybranému inzerentovi a zpětného kontaktování mé osoby. Osobní údaje bude správce zpracovávat manuálně i automaticky přímo prostřednictvím svých zaměstnanců. Informace předané tímto formulářem budou uloženy v databázi správce maximálně po dobu 10 let. Odvolání souhlasu s uložením a zpracováním poskytnutých dat lze e-mailem na info@origo-reality.cz. V případě podezření na neoprávněné použití Vámi poskytnutých údajů máte právo předat podnět k šetření Úřadu pro ochranu osobních údajů. Více informací
Chystáte se prodat nemovitost?
Pomůžeme Vám!

Přihlášení k odběru

Nenechte si ujít nejnovější nabídky prodeje rodinných domů v Skrbni.